
|
現在回到家鄉蓋房子,我相信你首先考慮的問題一定是成本。所以回家蓋房子是越來越多的人的選擇,但建房子也需要認真考慮,準備好建房子,讓自己和家人過上更好的生活。畢竟,這是一筆辛苦賺來的錢,當然,錢花在刀刃上。就像當今社會的快速發展一樣,每個人的口袋都很富裕,農村建筑的小洋樓也非常漂亮和質地,室內布局也符合當前農村人民的生活習慣,每個家庭都能體驗到住在大別墅里的感覺。今天,我將與大家分享5棟15萬至20萬間的農村別墅。預算不足的朋友可以參考! 別墅圖一展示:占地面積:13.6m*9m,122.4平方米左右; 建筑層高:二層; 建筑高度:10.18米(含屋頂);
別墅效果圖
一層平面圖
二層平面圖 設計功能: 一層戶型:堂屋、客廳、臥室x3、衛生間; 二層戶型:書房、臥室x4、衛生間、陽臺; 別墅圖二展示:占地面積:10.50m*8.90m,98平方米左右; 建筑層高:二層; 建筑高度:9.29米(含屋頂); 設計功能:
正面效果圖
側面效果圖
鳥瞰效果圖
一層平面圖 一層戶型:客廳、神位、餐廳、廚房 、臥室、衛生間;
二層平面圖 二層戶型:娛樂區、書房、臥室x3、衛生間、陽臺; 別墅圖三展示:占地面積:13.0m*10.1m,120平方米左右; 建筑層高:二層; 建筑高度:9.8米(含屋頂);
庭院效果圖
正面效果圖
側面效果圖
鳥瞰效果圖 設計功能:
一層平面圖 一層戶型:堂屋、客廳、餐廳、廚房、衛生間、老人房;
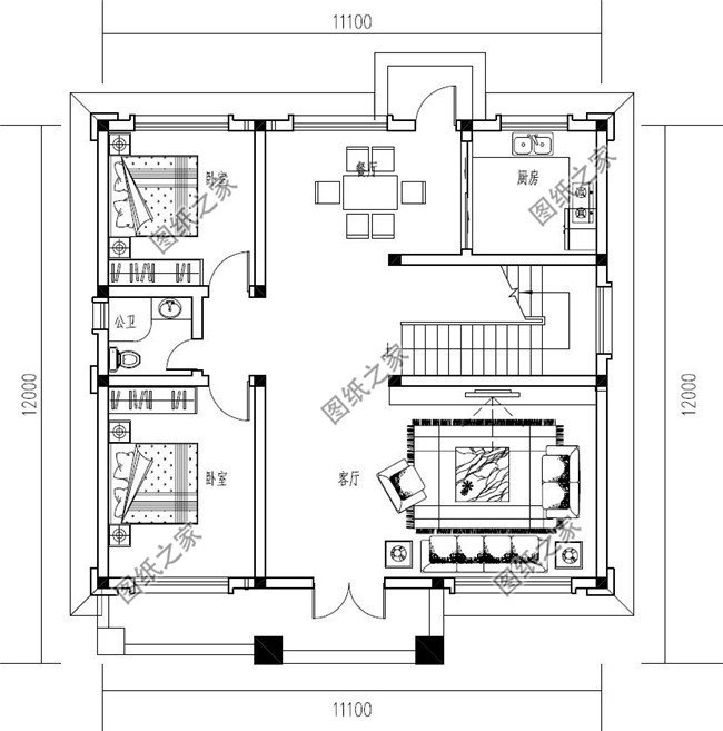
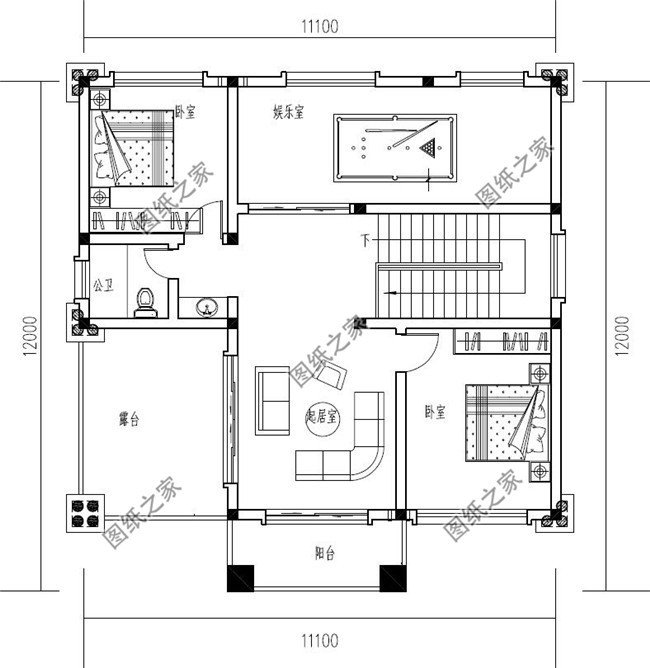
二層平面圖 二層戶型:家庭室、主臥(帶露臺)、臥室x2、書房、衛生間、大露臺; 別墅圖四展示:占地面積:11.1m*12m,125平方米左右; 建筑層高:二層; 建筑高度:9.95米(含屋頂);
正面效果圖
鳥瞰效果圖
側面效果圖 設計功能:
一層平面圖 一層戶型:客廳、廚房、餐廳、臥室x2、衛生間;
二層平面圖 二層戶型:起居室、臥室x2、衛生間、娛樂室、陽臺、露臺 別墅圖五展示:占地面積:12.76m*10.7m,136.04平方米左右; 建筑層高:二層; 建筑高度:9.827米(含屋頂);
別墅效果圖 設計功能:
一層平面圖 一層戶型:客廳、廚房、餐廳、神位、臥室x2、衛生間;
二層平面圖 二層戶型:起居室、書房、臥室x3、衛生間、陽臺; 圖紙之家-專注農村別墅/自建房設計18年,集合國內200余位經驗豐富的設計師,被評為口碑最好的農村建筑設計公司! |

超實用超現代兩層自建小樓圖,純粹極簡風格
占地:184平方米左右
私人二層中式四合院別墅建筑設計圖,新農村經濟實用戶型
占地:145平方米
新農村住宅設計圖集,三層房屋設計圖紙展示
占地:110平方米
四間兩層別墅房屋設計圖,外觀效果圖好看
占地:235平方米
帶電梯農村建房三層小洋樓,樓中樓結構,帶露臺
占地:110平方米
漂亮的二層中式現代別墅圖,配色非常的溫馨淡雅
占地:160平方米
最新設計的農村二層自建房屋設計圖,占地180平米,經濟實用
占地:180平米
獨棟兩層四開間房子施工設計圖紙及效果圖片,大氣時尚
占地:170平方米
農村二層住宅樓房設計圖紙,全套方案(施工圖+效果圖)
占地:113平方米
新中式農村自建房三層設計圖,外觀布局均滿分
占地:142.18平方米
16米乘12米農村二層別墅設計圖,布局舒適寬敞、客廳挑空
占地:188.18平方米
125平自建房設計圖二層戶型,建房選這款準沒錯
占地:124.04平方米
農村三層中式仿古別墅設計圖紙,中國風自建房戶型
占地:158.64平方米
左右對稱的歐式高端三層別墅設計圖,外觀氣派、豪華
占地:200平方米
一層農村三合院別墅設計方案圖,秀氣優美,大氣又實用
占地:191.18平方米
鄉村三層簡單自建房子設計圖,全部建好34萬左右,外觀簡潔
占地:127.912平方米
一層農村三合院平房設計圖,可以倆兄弟或和父母兒女一起住
占地:202.79平方米
豪華大氣三層農村自建房設計圖,經典大氣,百看不厭,新中式風
占地:141.75平方米
現代風格三拼別墅設計圖紙,三兄弟回村自建房戶型
占地:324平方米
經典三層別墅設計圖紙(全套施工圖+效果圖),新農村自建推薦
占地:123平方米
推薦:10套新農村自建房設計圖,2026年最新設計
閱讀次數:4825737次
100套鄉村別墅圖片大全,2026年最新設計
閱讀次數:2492203次
6款農村蓋一層平房的設計圖,10萬元就能建起來
閱讀次數:1852637次
這11個一層農村自建房別墅火爆了朋友圈!我最喜歡戶型十!你呢
閱讀次數:750268次
農村6萬元建一層小別墅圖,你敢相信嗎
閱讀次數:567686次
農村5萬塊就能自建房,6套普通房子設計圖分享,你沒看錯!
閱讀次數:419410次
8套農村漂亮三間平房圖片,非常適合在農村修建!
閱讀次數:411197次
農村自建房化糞池怎么做?附方案及施工過程
閱讀次數:391783次
農村一層三間平房設計圖,告別土氣養老房,讓人忍不住點贊
閱讀次數:350581次
新農村二層樓房圖片造價12萬,挑一套回家建房吧!
閱讀次數:349126次
