
|
歐式住宅的氣質和質感都很討人喜愛,精心的裝飾手法通過磚瓦完美散發出魅力。它還可以使業主在農村生活中更加豐富多彩,形成豐富華麗的歐式風格,成為眾多建筑者的首選之一。在本期中,小編將推薦一種美麗浪漫的歐式鄉村二樓自建住宅設計房屋設計極富有歐式宮殿氛圍,搞好老婆孩子一眼鐘情,感興趣的兄弟們,跟隨我一起來看看吧! 圖紙介紹:農村兩層自建房設計,含外觀效果圖、這款別墅占地方正,約158平方米左右,整體住宅選用當下主流的歐式建筑風格。搭配上左右對稱式的設計不僅大大提升了美感而且能夠更好地將室內空間利用到最大化!住宅在外觀裝飾上不乏缺少富有歐式建筑的外部構造比如,弧形大面積的落地窗使得戶型更為通透,羅馬柱與方柱支持的門廊寬闊高大彰顯豪氣奢華感!外墻主體使用真石漆鋪設,凸顯整棟別墅穩重大氣的同時也能使得后期的墻體維護更加方便。這一抹亮紅色的坡屋頂增添溫馨感充滿了家的味道,適合農村自建感興趣的朋友別錯過呦! 占地面積:13.16米x13.04米 158.50平方米左右 建筑面積:317平方米左右
正面效果圖
鳥瞰效果圖
側面效果圖 建筑層高:兩層半 設計功能:
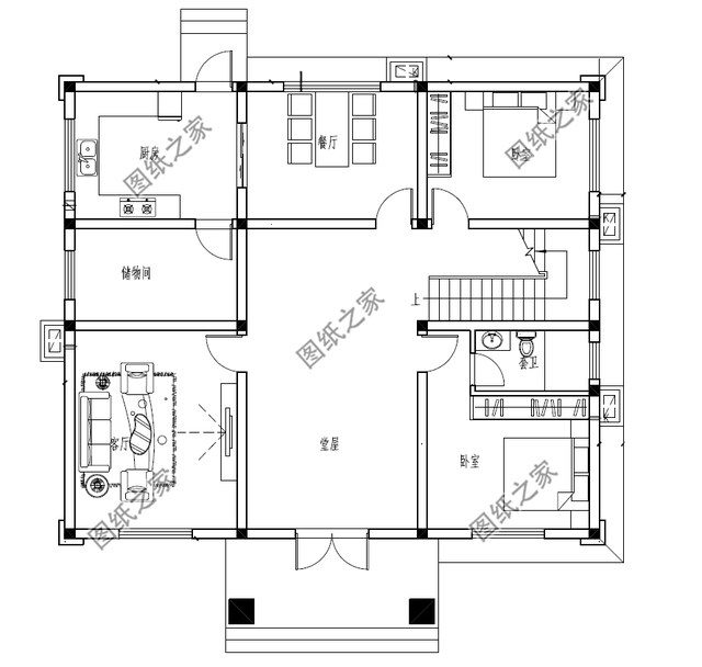
一層戶型圖 一層戶型圖:堂屋、臥室(內衛)、儲物間、臥室、廚房、餐廳、客廳 進入屋內,寬敞的堂屋是必不可少的,是舉辦婚喪嫁娶的重要場所!右側的臥室可作為父母房帶有內衛這樣生活十分方便舒適!廚房與餐廳相鄰中間用推拉門隔斷,避免了做飯時飄入屋內,儲藏間的設計增強了室內的功能使用性!
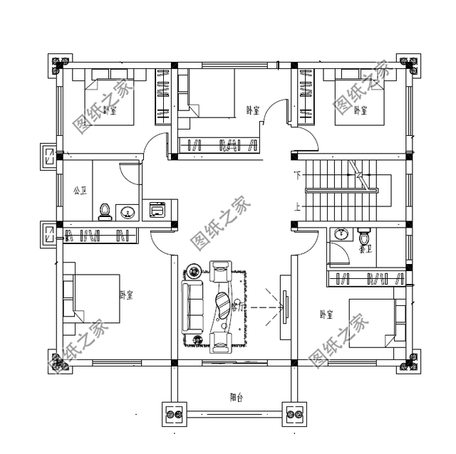
二層戶型圖 二層戶型:陽臺、客廳、臥室x4、臥室、(內衛)公衛 二樓的布局比較注重生活休息功能,設有五間臥室排列在四周每間都配有采光窗使得屋內光線充足,通風效果好。中間寬敞的客廳也是家里聚會的好場地,小型的陽臺除了能夠滿足晾曬功能還可以當做一個觀景臺對周邊的景色一覽無遺!
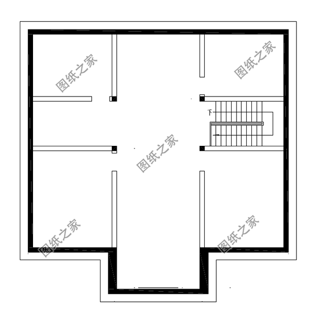
悶頂平面圖 悶頂平面圖:根據戶主安排的布局設計 圖紙之家-專注農村別墅/自建房設計18年,集合國內200余位經驗豐富的設計師,被評為口碑最好的農村建筑設計公司! |

2026年最新三層房屋設計圖紙,12米×11米,實用接地氣
占地:130平方米
中國最美建筑四合院設計圖紙及效果圖,顏值爆棚
占地:152平方米左右
兄弟雙拼別墅設計戶型圖及設計方案圖,帶外觀效果圖,外觀好看
占地:185平方米(單棟)
面寬16米方正實用二層別墅設計圖,中式風格不輸村里的別墅洋房
占地:182.82平方米
獨立餐廳廚房,平屋頂現代風格三層別墅設計圖
占地:159.02平方米
125平方米復式三層別墅房屋設計圖,房間多,采光好
占地:125平方米
100平左右農村一層平房小洋樓建筑設計圖紙,14米×8米
占地:98平方米
農村二層L戶型農村別墅!設計圖簡約時尚又大氣,住著超舒適
占地:170.55平方米
時尚創意型二層小別墅設計圖,占地面積110平方米,外觀清新典雅
占地:110平方米
二層復式農村別墅設計圖,進深12米,戶型堪稱完美
占地:193.2平方米
130平新農村三層房屋設計圖紙,預算30萬以內,蓋房推薦
占地:132平方米
簡歐式三層半(4層)農村自建房別墅設計圖效果圖,帶車庫戶型
占地:127平方米
占地200平米時尚現代三層農村別墅設計圖,簡簡單單百看不厭
占地:202.95平方米
鄉村三層別墅施工圖紙帶效果圖,田園別墅設計圖紙推薦
占地:178平方米
農村一層帶小院房屋設計圖,帶院子一層自建房別墅戶型圖
占地:161.16平方米
農村18萬元二層小樓圖,占地120平面,戶型緊湊合理
占地:120平方米
給爸媽建養老房?100 平人字坡一層房太合適!簡約低調還實用
占地:102.6平方米
實用三層新農村住宅設計圖,鄉村別墅設計圖(含外觀效果圖)
占地:102.34平方米
兄弟雙拼四間三層別墅設計圖,農村自建推薦戶型方案
占地:260平方米
130平米最新氣派農村四層樓房設計圖,四層樓房圖片
占地:130平方米
推薦:10套新農村自建房設計圖,2026年最新設計
閱讀次數:4825737次
100套鄉村別墅圖片大全,2026年最新設計
閱讀次數:2492203次
6款農村蓋一層平房的設計圖,10萬元就能建起來
閱讀次數:1852637次
這11個一層農村自建房別墅火爆了朋友圈!我最喜歡戶型十!你呢
閱讀次數:750268次
農村6萬元建一層小別墅圖,你敢相信嗎
閱讀次數:567686次
農村5萬塊就能自建房,6套普通房子設計圖分享,你沒看錯!
閱讀次數:419410次
8套農村漂亮三間平房圖片,非常適合在農村修建!
閱讀次數:411197次
農村自建房化糞池怎么做?附方案及施工過程
閱讀次數:391783次
農村一層三間平房設計圖,告別土氣養老房,讓人忍不住點贊
閱讀次數:350581次
新農村二層樓房圖片造價12萬,挑一套回家建房吧!
閱讀次數:349126次
