
|
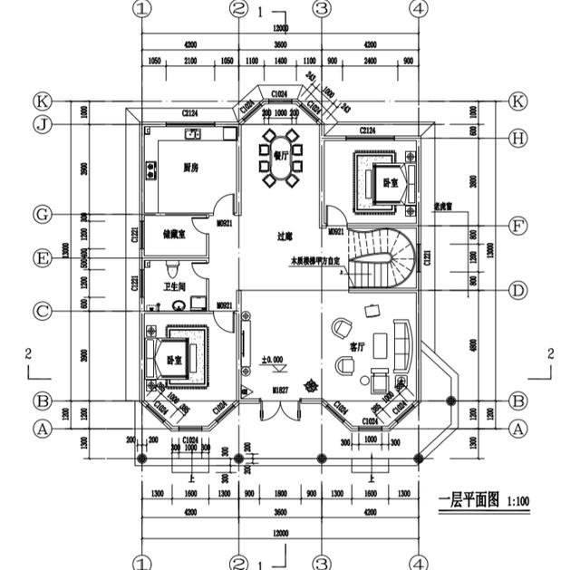
在家鄉建一棟房,對于多數家庭來說,都是人生中的大事,所以要謹慎對待。除了審批宅基地外,選擇一款合適的別墅戶型,就是關鍵的步驟,選擇對了就是事半功倍!選錯了,就要面臨著翻修浪費錢,增加負擔浪費時間。 下面是三款農村復式二層半別墅圖以及戶型圖,看看有沒有你喜歡的。 第一款:歐式二層半別墅效果圖以及戶型圖這款農村二層半,整體采用歐式風格,外觀美觀、獨特,讓人一眼就會喜歡上,戶型布局合理一樓有老人房和休息室,南北通透,采光良好。 占地面積:12.0m*13.0m,占地150平方米左右 建筑層高:二層半(帶悶頂層) 建筑高度:10.8米(含屋頂) ![]() ![]() ![]() 設計功能: 一層戶型:門廳、客廳、餐廳、廚房、衛生間、臥室x2、儲藏間 二層戶型:客廳上空、書房(或娛樂室)、臥室x4(1個臥室含衛生間)、衛生間、露臺 悶頂層:水箱(可不建)、悶頂層
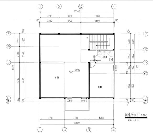
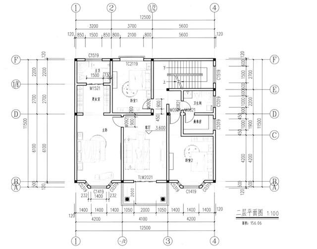
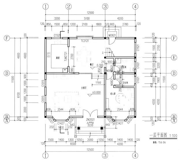
![]() ![]() 第二款:現代簡約式二層半別墅設計圖以及戶型圖這款 農村二層半別墅設計設計圖(帶閣樓),戶型經典實用,外觀精致、美觀,二層主臥寬敞明亮的主臥套間供主人居住,二樓衛生間專門設有洗澡間,生活更舒適,方便。 占地面積:12.5m*11.5m,占地150平方米左右 建筑層高:二層半(帶悶頂層) 建筑高度:9.9米(含屋頂) ![]() ![]() 設計功能: 一層戶型:大客廳、餐廳、廚房、老人房(帶衛生間)、衛生間 二層戶型:客廳、主臥(帶更衣室和衛生間)、臥室x2、衛生間(帶洗澡間) 閣樓層:活動室、儲藏間、衛生間
![]() ![]() ![]() 第三款:新中式三層別墅設計圖以及戶型圖這款新農村三層別墅自建房屋設計圖紙,立面采用白色石材將豪華、大氣展露無遺。窗戶選擇透明玻璃,窗邊采用深褐色裝飾,讓立面統一的顏色具有變化。門樓采用的是方型,比傳統的圓柱讓建筑更具氣勢。精美的花紋和線腳與層次分明的主體相得益彰,整個建筑的精美、豪華與室內大氣相對,整體感很好。 占地面積:11.8m*10.5m,106平方米左右 建筑層高:三層 建筑高度:12.51米(含屋頂) ![]() ![]() ![]() 設計功能: 一層戶型:客廳、餐廳、廚房、臥室、衛生間 二層戶型:客廳上空、起居室、臥室(帶衛生間衣帽間)、臥室、衛生間、露臺 三層戶型:臥室(帶衛生間衣帽間)、棋牌室、衛生間、露臺
![]() ![]() ![]() 有沒有你喜歡的設計,可以評論告訴我哦!關注我帶你看更多自建房設計圖。
圖紙之家-專注農村別墅/自建房設計18年,集合國內200余位經驗豐富的設計師,被評為口碑最好的農村建筑設計公司! |

四層復式別墅設計方案,外觀氣派布局實用,舒適宜居美極了!
占地:204.64平方米
140平方米農村三層復式房屋設計施工圖,開放式廚房
占地:143平方米
120平方米農村經典二層房屋設計圖紙,造型精致好看
占地:121平方米
外觀高檔大氣的三層別墅房屋設計圖,高端別墅設計展示
占地:147平方米
農村一層自建房子設計圖紙及效果圖,戶型方正
占地:多戶型可選
農村一層養老別墅設計圖,14.8x17.9米,戶型對稱,實用布局
占地:193平方米
帶架空層的三層農村別墅設計火了!雨季不怕返潮
占地:147.15平方米
新中式三層別墅,旋轉樓梯+挑空客廳,高級感拉滿
占地:125平方米
農村二層住宅別墅設計圖,貼心實用,12.8米乘14.5米
占地:156.16平方米
農村小洋樓設計圖及效果圖,二層樓房設計圖
占地:120平方米
經典的農村三層小樓房設計圖,外觀圖片時尚、精致
占地:100平方米
三層新農村住宅設計圖及效果圖,三層樓房設計圖展示
占地:140平方米
占地130平方米中式二層小樓房設計圖紙,農村自建戶型實用
占地:136.04平方米
新農村住宅設計圖集,三層房屋設計圖紙展示
占地:110平方米
帶車庫的農村四合院別墅設計圖,富貴人家的象征,日子越過越興
占地:219.24平方米
巴洛克風格別墅設計圖紙及效果圖,農村建一棟想低調都難
占地:256平方米左右
預算10萬左右新農村自建房屋設計圖紙,帶效果圖
占地:82平方米
小型農村二層自建樓房設計圖,面寬10米小占地經濟
占地:78.54平方米
鄉村高檔四層別墅樓設計圖,二三層復式挑空客廳
占地:148.992平方米
新農村兩層帶露臺自建房設計圖,造價30萬內
占地:170平方米
推薦:10套新農村自建房設計圖,2026年最新設計
閱讀次數:4825737次
100套鄉村別墅圖片大全,2026年最新設計
閱讀次數:2492203次
6款農村蓋一層平房的設計圖,10萬元就能建起來
閱讀次數:1852637次
這11個一層農村自建房別墅火爆了朋友圈!我最喜歡戶型十!你呢
閱讀次數:750268次
農村6萬元建一層小別墅圖,你敢相信嗎
閱讀次數:567686次
農村5萬塊就能自建房,6套普通房子設計圖分享,你沒看錯!
閱讀次數:419410次
8套農村漂亮三間平房圖片,非常適合在農村修建!
閱讀次數:411197次
農村自建房化糞池怎么做?附方案及施工過程
閱讀次數:391783次
農村一層三間平房設計圖,告別土氣養老房,讓人忍不住點贊
閱讀次數:350581次
新農村二層樓房圖片造價12萬,挑一套回家建房吧!
閱讀次數:349126次
