
|
如果您感覺城市的生活很壓抑那就來農村吧帶你感受鄉村風情。常年在外打工的你是不是早已被這社會壓得喘不過氣來了,懷念童年時代無憂無慮的農村生活,不妨現在回鄉發展吧!看看多年未見的鄉間景色,擁抱未能陪伴在身邊的父母,在那鄉間深處,建上一棟靜謐洋房。本期小編就給大家介紹一款鄉村一層別墅設計圖,外觀美麗大氣,室內布局合理配套設施豐富感興趣的朋友們一起來看看吧! 圖紙介紹:農村一層別墅設計,造價低又用心打造精致住宅整個別墅采用歐式住宅設計,外觀造型經典氛圍,外墻米色真石漆搭配白線清新自然不精致!藍色的屋頂設計,巧妙地與藍色的天空融為一體,使整個別墅的自然氛圍可以與周圍的風景相輔相成。氛圍簡單,外觀美觀精致,底部有文化石裝飾,搭配清新低調的米色+藍色屋頂充滿了華麗的美,簡單大方,營造出溫暖寧靜的生活氛圍。多窗設計南北透明,真的是一個經典的農村自建住宅。屋頂上兩扇老虎窗的設計也為房子增添了一種可愛的感覺,純白色的花瓶圍欄充滿了浪漫美麗的歐式氣質,成本只有15萬,費用不高,外觀簡單美觀,特別適合農村自制建筑!看完后的你是否被這所房子的顏值所打動,感覺好兄弟們快快收藏起來吧! 占地面積:14米x12米 158.22平方米左右 建筑面積:158.22平方米左右
正面效果圖
側面效果圖
鳥瞰效果圖 建筑層高:一層 設計功能:
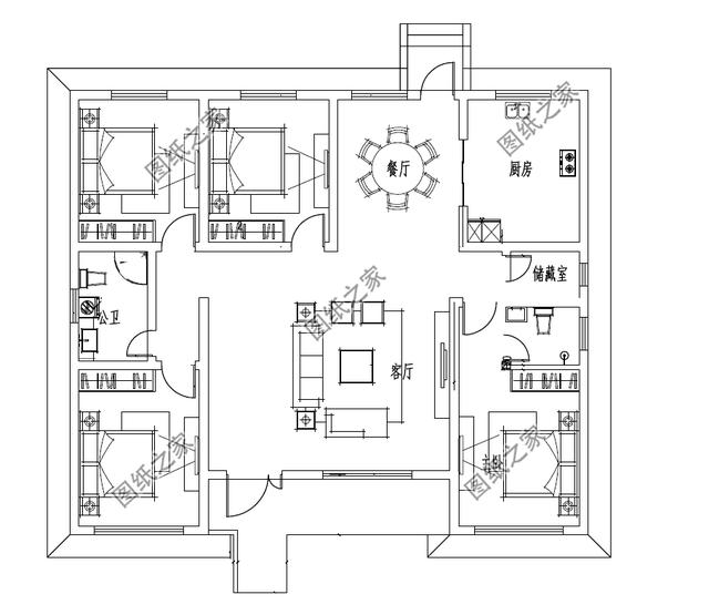
一層平面圖 一層戶型圖:客廳、臥室x3、臥室(帶有內衛)公衛、廚房、餐廳、儲藏室 屋內布局相對簡單但是非常實用,設有四室兩廳,主臥作為父母房帶有內衛使得日常起居生活非常舒適方便!餐廳處開有通往后院的后門使得戶主出入自由便捷。小型的儲藏室可以幫忙儲存一些雜物,提供充足的實用功能! 圖紙之家-專注農村別墅/自建房設計18年,集合國內200余位經驗豐富的設計師,被評為口碑最好的農村建筑設計公司! |

鄉村兄弟二層小戶型雙拼房屋別墅設計圖,造價低,面積小
占地:多種戶型
農村兩層新中式別墅圖紙設計圖,外觀圖片大氣,21萬左右
占地:108平方米
三層新中式別墅設計圖,面寬12米經典漂亮
占地:154.93平方米
對稱型歐式別墅設計圖,穩重實用,開間18米,適合全國農村建
占地:228.2 平方米
150平米二層鄉村小別墅圖,戶型合理,外觀清新淡雅
占地:150平方米
130平帶閣樓兩層半別墅房屋設計圖,含外觀效果圖
占地:130平方米
200平方米農村二層中式四合院設計圖,含外觀圖片
占地:200平方米
三層農村小別墅設計圖,一層帶商鋪,占地110平米,經濟實用
占地:110平方米
農村三層帶車庫、帶露臺別墅設計圖,經典自建別墅設計方案
占地:160平方米
農村建房兄弟雙拼兩層住宅設計圖,單戶150平米左右
占地:300平方米
新農村四層房屋設計圖紙,高端大氣,占地150平方米
占地:150平方米
農村四層樓房外形設計圖,主臥配有陽臺和衣帽間還有衛生間
占地:126平方米
兩層平屋頂帶地下室別墅設計方案(全套自建房施工圖+效果圖)
占地:152.55平方米
農村二層半樓房設計圖及效果圖,歐式風格
占地:150平方米
80平方米三層農村自建民房設計圖,小戶型別墅方案
占地:81平方米
歐式風格三層別墅建筑設計圖,復式樓中樓結構
占地:138平方米
農村簡單雙拼小戶型,簡單適用,客廳中空,總占地210平方米
占地:210平方米
現代三層農村民房設計圖及圖片,外觀高端、大氣
占地:196平方米
35萬內三層自建別墅設計圖,外觀美觀,戶型舒適
占地:135平方米
獨立餐廳廚房,平屋頂現代風格三層別墅設計圖
占地:159.02平方米
推薦:10套新農村自建房設計圖,2026年最新設計
閱讀次數:4825737次
100套鄉村別墅圖片大全,2026年最新設計
閱讀次數:2492203次
6款農村蓋一層平房的設計圖,10萬元就能建起來
閱讀次數:1852637次
這11個一層農村自建房別墅火爆了朋友圈!我最喜歡戶型十!你呢
閱讀次數:750268次
農村6萬元建一層小別墅圖,你敢相信嗎
閱讀次數:567686次
農村5萬塊就能自建房,6套普通房子設計圖分享,你沒看錯!
閱讀次數:419410次
8套農村漂亮三間平房圖片,非常適合在農村修建!
閱讀次數:411197次
農村自建房化糞池怎么做?附方案及施工過程
閱讀次數:391783次
農村一層三間平房設計圖,告別土氣養老房,讓人忍不住點贊
閱讀次數:350581次
新農村二層樓房圖片造價12萬,挑一套回家建房吧!
閱讀次數:349126次
