
|
農村人在城里打工做生意,常年都不在家,所以沒有必要把家里的房子建的非常的豪華大氣,但是如果建的非常土的話又覺得沒有面子。所以,今天就給大家推薦四款農村三室一廳設計圖,雖然只有一層,但是蓋一棟絕對的有面子。如果你家里需要蓋房子找不到好看的戶型,就趕緊往下接著看吧,有喜歡的可以收藏。
第一款:農村一層平房別墅設計圖,占地200平米,主體造價不到20萬
![]() ![]()
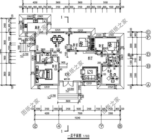
![]() 圖紙介紹:這款別墅戶型藍色的屋頂,素色的墻面,這一切已經完美的襯托出了這款別墅外觀的精致,除此之外內部設計也非常合理。 占地面積:16.2m*12.2m,200平方米左右; 建筑層高:一層; 建筑高度:5.6米(含屋頂); 設計功能:客廳、餐廳、廚房、、臥室(帶衛生間)、臥室×2、書房、衛生間; ![]() 第二款:農村現代風格一層別墅設計圖,帶閣樓設計
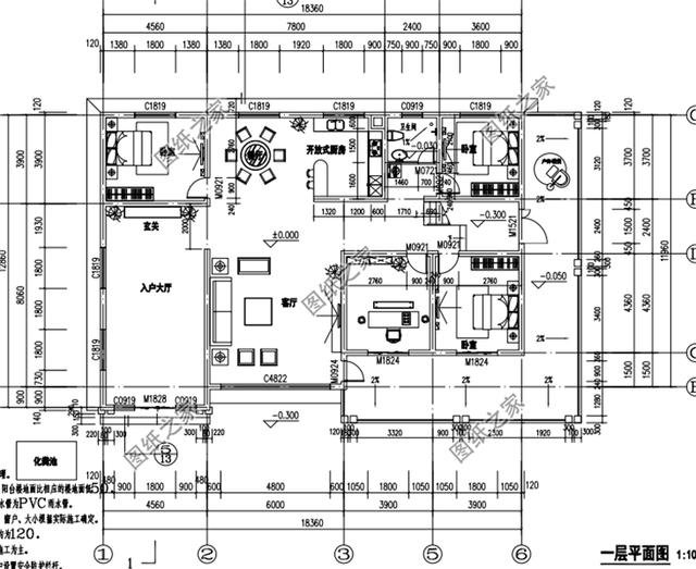
![]() ![]() ![]() 圖紙介紹:本戶型帶閣樓設計,外觀很時尚,沉穩大氣,室內布局也很實用,造價經濟,施工簡單,外立面大氣華麗,大開間門廳上非常有氣勢,室內空間都非常大而注重生活品質,大客廳,大餐廳,大廚房,非常舒適的居家體驗 占地面積:18.36m*12.86m,220平方米左右; 建筑層高:一層半; 建筑高度:9.1米(含屋頂); 設計功能: 一層戶型:入戶大廳、玄關、客廳、餐廳、廚房、臥室x3、書房、衛生間; 閣樓戶型:臥室、衛生間; ![]() 第三款:農村占地12米×10米左右一層平房設計圖,造價15萬左右
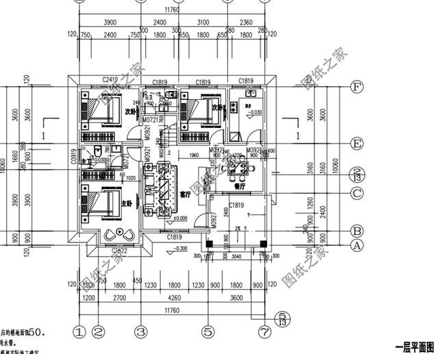
![]() ![]() ![]() 圖紙介紹:這款別墅戶型造價低,占地106平米左右,非常適合建給父母做養老別墅。自己有空多回家看看,陪陪他們。這樣的家庭才美好! 占地面積:11.76m*10.06m,106平方米左右; 建筑層高:一層; 建筑高度:6.225米(含屋頂); 設計功能:客廳、餐廳、廚房、主臥(帶衛生間)、臥室×2、衛生間×; ![]() 第四款:農村建房一層設計圖,占地150平米左右![]() ![]() ![]() 圖紙介紹:這款戶型占地150平米左右,主體造價15我那左右,一層房子在農村也是非常流行的,它結構比較簡單,時尚又實惠。 占地面積:15.2m*9.5m,150平方米左右; 建筑層高:一層; 建筑高度:7.5米(含屋頂); 設計功能:客廳、餐廳、廚房、、主臥(帶衛生間)、臥室×2、衛生間、書房; ![]() 今天介紹的這幾款別墅時尚美觀,平時父母住著也舒適,怎么樣?喜歡趕快收藏。
圖紙之家-專注農村別墅/自建房設計18年,集合國內200余位經驗豐富的設計師,被評為口碑最好的農村建筑設計公司! |

經濟實用二層樓房設計圖紙,功能布局多,12×11米
占地:130平方米
農村蓋房三層自建別墅設計圖紙,11米乘12米戶型方案
占地:132.55平方米
農村二層半雙拼別墅設計圖,客廳中空,帶大露臺
占地:270平方米
鄉村簡約經濟型二層別墅設計圖紙(效果圖+全套施工方案)
占地:145平方米
新農村二層小別墅全套設計圖紙(含外觀效果圖)
占地:85.6平方米
新農村自建三層樓房設計圖紙,外觀簡單大方
占地:137平方米
?13.5x9米這尺寸火了!好多人家照著建這款二層別墅,簡單實用
占地:115.11平方米
帶車庫帶露臺二層農村小別墅設計圖,宅基地大小適中,外觀造型
占地:180平方米
造型對稱的簡約二層別墅設計圖紙,戶型布局好,13x13米5室2廳
占地:151.94平方米
二層農村小別墅自建房設計圖,布局實用,占地150平
占地:149.05平方米
180平米農村二層小別墅設計圖,外觀漂亮,帶露臺
占地:180平方米
占地百平農村三層戶型方案,簡約實用,獨具特色,理想新居等你
占地:105.61平方米
經濟實用二層復式樓房設計圖 ,占地150平方米,造價25萬左右
占地:150平方米
帶車庫,帶露臺的三層復式樓房設計圖,新農村房屋方案推薦
占地:140平方米
新農村住宅設計圖紙含效果圖,方方正正的別墅方案
占地:134平方米左右
帶大套間新農村二層別墅自建房設計圖紙帶效果圖
占地:185平方米
占地80平四層平頂別墅設計圖,現代風房子效果圖
占地:80平方米
12X14米四層農村自建別墅設計圖,功能設計豐富齊全
占地:157平方米
二層新中式小別墅設計圖紙,舒適實用,16米乘12米
占地:189.88平方米
一層合院中式小別院設計圖,白墻灰瓦,愜意十足!
占地:219平方米
推薦:10套新農村自建房設計圖,2026年最新設計
閱讀次數:4825737次
100套鄉村別墅圖片大全,2026年最新設計
閱讀次數:2492203次
6款農村蓋一層平房的設計圖,10萬元就能建起來
閱讀次數:1852637次
這11個一層農村自建房別墅火爆了朋友圈!我最喜歡戶型十!你呢
閱讀次數:750268次
農村6萬元建一層小別墅圖,你敢相信嗎
閱讀次數:567686次
農村5萬塊就能自建房,6套普通房子設計圖分享,你沒看錯!
閱讀次數:419410次
8套農村漂亮三間平房圖片,非常適合在農村修建!
閱讀次數:411197次
農村自建房化糞池怎么做?附方案及施工過程
閱讀次數:391783次
農村一層三間平房設計圖,告別土氣養老房,讓人忍不住點贊
閱讀次數:350581次
新農村二層樓房圖片造價12萬,挑一套回家建房吧!
閱讀次數:349126次
