
|
現在農村的生活是越來越富裕了,很多地方建的農村別墅都越來越時尚,越來越現代,各種風格的都有,歐式的、法式的、美式的等等,但是帶有堂屋的別墅可不多。本期,我們推薦一款簡約風格的農村小別墅,開間12米很實用,保證給你長臉。 外觀效果圖:
現在流行的三層小別墅,建筑戶型設計方正,外觀沒有多余的裝飾,是我們喜歡的極簡風格,建筑基線用淺咖色文化石裝飾,一層和二層用淺色外墻磚裝飾,頂層用淺黃色真石漆裝飾,屋頂用藍色水泥瓦片,采用磚混結構,施工簡單方便。入戶大氣,落地大窗非常時尚,陽臺和露臺錯落有致,非常實用。 立面示意圖:
建筑基本信息:開間11.35米,進深10.8米,建筑占地113.7平米,總建筑(不包括入戶門廳、二層陽臺和三層露臺的面積)面積321.7平米,建筑檐口高度9.9米,總高度11.7米。不管是建筑占地、建筑面積還是建筑高度,都沒有超過現有自建房的政策限制;
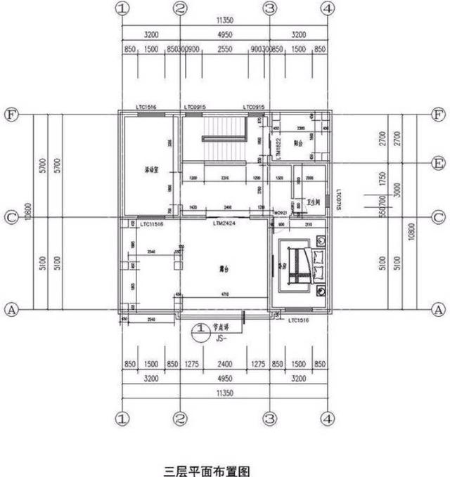
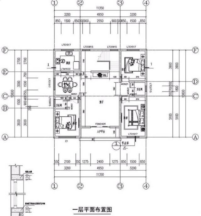
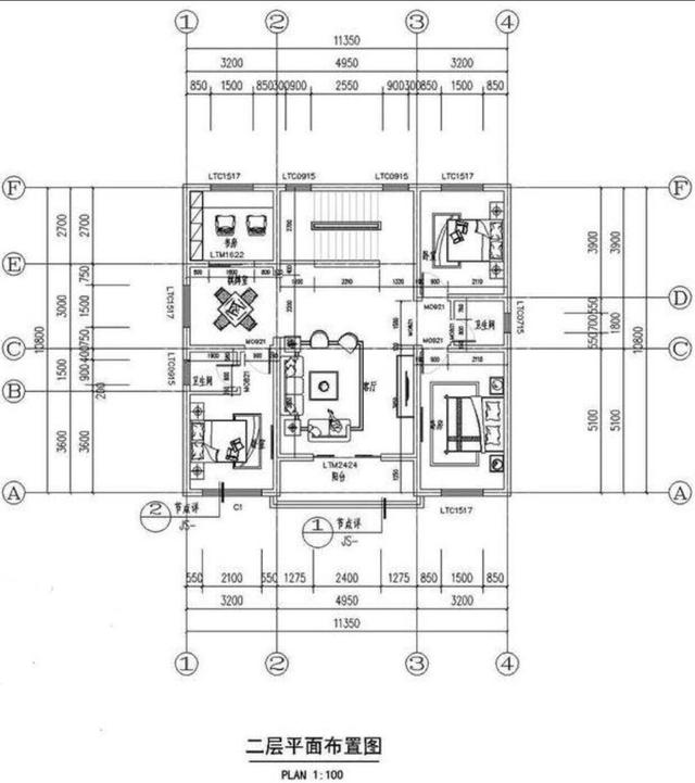
建筑入戶門廳寬度4.95米,正門寬度2.4米,高度2.8米,其余細節尺寸參考示意圖。 平面布局圖:
建筑入戶是進深8米的堂屋,很寬敞,設計有三間臥室、其中一間是套房,另有廚房、餐廳和獨立衛生間;二層設計有帶陽臺的客廳,三間臥室,同樣設計一間套房,另有獨立書房和棋牌室;三層設計一間臥室和寬敞的活動室,室外有小陽臺和大露臺,露臺上設計小涼亭,非常實用。 圖紙之家-專注農村別墅/自建房設計18年,集合國內200余位經驗豐富的設計師,被評為口碑最好的農村建筑設計公司! |

兩層半新農村別墅設計圖紙,CAD設計圖+高清效果圖
占地:90平方米
七字型設計新中式一層別墅設計圖,類合院風格
占地:267.3平方米
新農村三層豪華歐式別墅,復式高端自建房設計圖紙及效果圖
占地:多種戶型
130平方米新農村三層房屋設計圖紙,外觀簡單大方
占地:130平方米
帶閣樓的二層半別墅設計圖和效果圖,外飾簡單但不失奢華
占地:210平方米
帶車庫徽派風格三層別墅房屋設計圖,新農村住宅設計推薦
占地:140平方米
全套三層農村房屋設計圖紙,客廳中空,大大的窗戶,采光極好,
占地:160平米
一層中式七字型房屋設計圖,帶院子經典設計,耐看不過時
占地:163.18平方米
高端三層新中式農村別墅設計圖,仿合院布局,外觀霸氣
占地:133.64平方米
農村120平三層樓房設計圖,造型現代,帶屋頂花園
占地:120平方米
兄弟合建中式一層四合院設計圖,古樸雅致代代相傳,永不過時
占地:468.03平方米
95平米二層別墅必蓋戶型圖,造型洋氣,布局接地氣,趕緊回村建
占地:95.38平方米
造價15萬經濟美觀一層農村別墅設計圖,占地150平米
占地:多戶型可選
帶陽光房的二層簡歐別墅圖紙,戶型經典實用
占地:147.2平方米
農村三層樓房圖造價26萬,客廳中空,占地90平米
占地:90平方米
新農村小戶型4層自建房三層半別墅設計圖,平屋頂設計
占地:95平方米
農村四間房屋設計圖經典戶型,這樣設計美觀、實用
占地:169平方米
復式樓房二層農村別墅圖,村里建一棟絕對人人都羨慕
占地:130.2平方米
獨棟經濟型二層小別墅房屋設計圖,含全套施工圖效果圖
占地:多種戶型
歐式四層(三層半)獨棟別墅設計圖復式,設計豪華時尚
占地:194平方米
推薦:10套新農村自建房設計圖,2026年最新設計
閱讀次數:4825737次
100套鄉村別墅圖片大全,2026年最新設計
閱讀次數:2492203次
6款農村蓋一層平房的設計圖,10萬元就能建起來
閱讀次數:1852637次
這11個一層農村自建房別墅火爆了朋友圈!我最喜歡戶型十!你呢
閱讀次數:750268次
農村6萬元建一層小別墅圖,你敢相信嗎
閱讀次數:567686次
農村5萬塊就能自建房,6套普通房子設計圖分享,你沒看錯!
閱讀次數:419410次
8套農村漂亮三間平房圖片,非常適合在農村修建!
閱讀次數:411197次
農村自建房化糞池怎么做?附方案及施工過程
閱讀次數:391783次
農村一層三間平房設計圖,告別土氣養老房,讓人忍不住點贊
閱讀次數:350581次
新農村二層樓房圖片造價12萬,挑一套回家建房吧!
閱讀次數:349126次
