
|
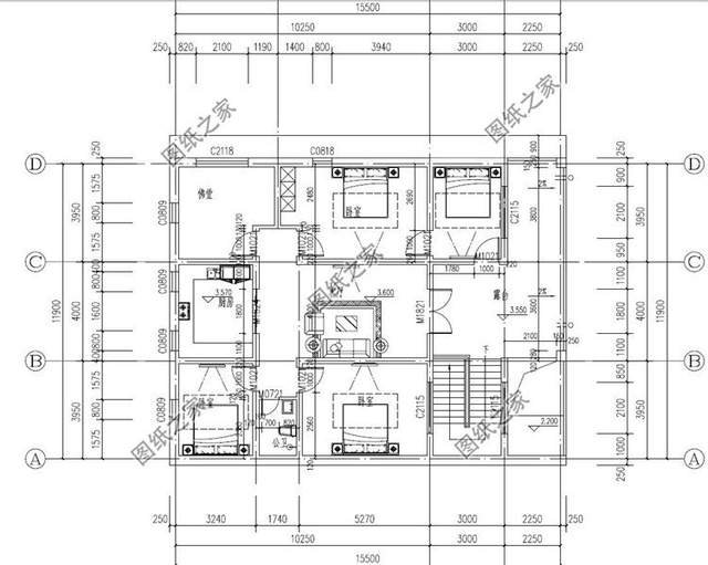
部分農村地區因青山綠水,景色宜人成為了許多人自駕游的首選。農村建設越來越好,交通更加便利吸引更多人在閑暇之余帶著家人來到農村體驗一番。使得許多農村人開始建造帶有商鋪的房屋,這樣可以增加一份收入也可以自住一舉兩得并且在小地方生活更加輕松自在再加上安居樂業這難道不就是人生的終極目標嗎?本期小編就讓大家分享幾款帶有商鋪的農村別墅設計,覺得不錯的可以同我一起來瞧瞧吧! 別墅圖一展示:占地面積:15.5m*11.9m,198.4平方米左右;
正面效果圖
鳥瞰效果圖
側面效果圖
一層戶型圖
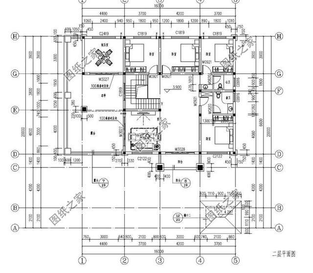
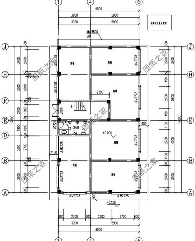
二層戶型圖 二層戶型:佛堂、客廳、廚房、臥室(帶書房)、臥室x4、衛生間、露臺; 別墅圖二展示;占地面積:10.76m*10m,102平方米左右;
正面效果圖
鳥瞰效果圖
側面效果圖
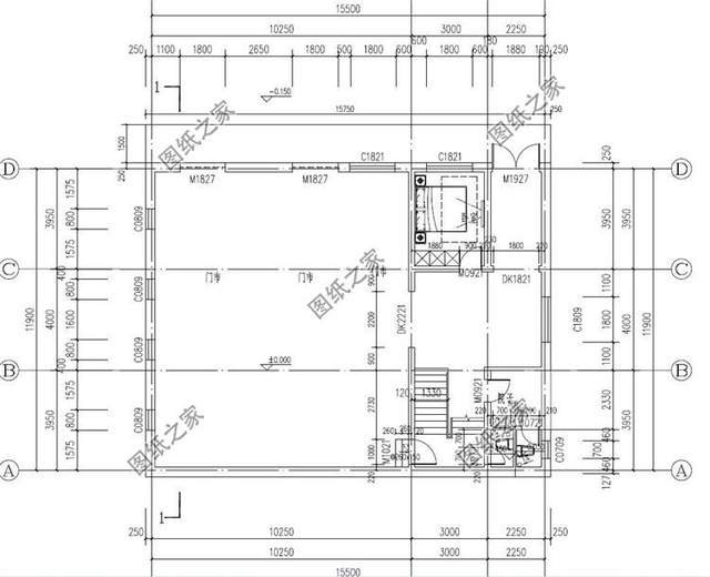
一層平面圖
二層平面圖 二層戶型:臥室(帶書房)、茶室、臥室x2、衛生間、露臺、陽臺; 別墅圖三展示:占地面積:14.8m*22.815m,340.4平方米左右;
正面效果圖
鳥瞰效果圖
側面效果圖
一層戶型圖
二層戶型圖 二層戶型:客廳、廚房、餐廳、臥室x5、衛生間; 別墅圖四展示;占地面積:16m*20m,196.8平方米左右;
正面效果圖
鳥瞰效果圖
側面效果圖
一層平面圖
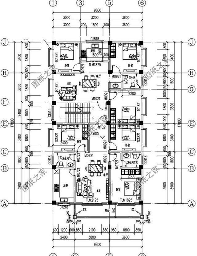
二層平面圖 二層戶型:客廳、臥室(帶衛生間)、臥室x3、娛樂室、衛生間、露臺; 別墅圖五展示:占地面積:9.8m*17.8m,180平方米左右;
正面效果圖
鳥瞰效果圖
側面效果圖
一層戶型圖
二層戶型圖 二層戶型:客廳x2、廚房x2、餐廳x2、臥室(帶衛生間)、臥室x4、衛生間、陽臺; 圖紙之家-專注農村別墅/自建房設計18年,集合國內200余位經驗豐富的設計師,被評為口碑最好的農村建筑設計公司! |

農村中式一層三合院自建房戶型方案圖,帶庭院設計
占地:222平方米
小戶型兄弟雙拼別墅房屋設計圖,帶外觀效果圖
占地:150平方米
新中式一層別墅設計圖紙,農村自建平房戶型方案圖
占地:183.7平方
預算30萬三層樓房設計圖含效果圖,戶型經典
占地:125平方米
帶地下室三層新農村房屋設計圖紙,外觀效果大氣
占地:220平方米
鄉村三層簡單自建房子設計圖,全部建好34萬左右,外觀簡潔
占地:127.912平方米
260平方米仿歐式二層別墅設計圖紙及效果圖,22X12米
占地:260平方米
新中式二層雙拼樓房設計圖,單戶面積100平米左右,實用美觀
占地:200平方米
農村小別墅設計圖二層,占地不大顏值高,最適合農村建造。
占地:108.66平方米
最接農村地氣的二層農村小別墅,造價30萬左右,經濟實用
占地:170平方米
占地90平米四層超現代風別墅設計圖,享受高品質生活
占地:3.76平方米
2026年新款別墅外觀圖,新中式風格,比簡歐大氣,時尚
占地:135平方米
95平經濟適用三層農村小別墅設計圖,二開間推薦爆款戶型
占地:95.31平方米
100平二層精致小別墅房屋設計圖,外觀精致、漂亮
占地:100平方米
帶開放式車庫的二層別墅!配土灶、室外樓梯,新穎還顯品味
占地:127.2平方米
高顏值又實用的一層雙拼鄉村別墅設計圖,舒適度堪比豪宅
占地:217.3平方米
3款簡單舒適二層別墅設計圖,低調配色,造型簡單大氣
占地:多戶型可選
高端大氣三層別墅設計圖,建好就是村里最靚的
占地:120平方米
帶配房的二層農村小別墅設計圖,大方適用,耐看經濟
占地:152.28平方米
復式客廳挑空三層別墅設計圖,帶外觀效果圖片,推薦
占地:150平方米
推薦:10套新農村自建房設計圖,2026年最新設計
閱讀次數:4825737次
100套鄉村別墅圖片大全,2026年最新設計
閱讀次數:2492203次
6款農村蓋一層平房的設計圖,10萬元就能建起來
閱讀次數:1852637次
這11個一層農村自建房別墅火爆了朋友圈!我最喜歡戶型十!你呢
閱讀次數:750268次
農村6萬元建一層小別墅圖,你敢相信嗎
閱讀次數:567686次
農村5萬塊就能自建房,6套普通房子設計圖分享,你沒看錯!
閱讀次數:419410次
8套農村漂亮三間平房圖片,非常適合在農村修建!
閱讀次數:411197次
農村自建房化糞池怎么做?附方案及施工過程
閱讀次數:391783次
農村一層三間平房設計圖,告別土氣養老房,讓人忍不住點贊
閱讀次數:350581次
新農村二層樓房圖片造價12萬,挑一套回家建房吧!
閱讀次數:349126次
