圖紙介紹:本方案為小戶型兄弟雙拼別墅房屋設計圖,帶外觀效果圖,本方案以實用為主,造價低,小戶型,滿足大部分家庭自建。
占地面積:15.0m*10.0m,150平方米左右;
建筑層高:三層;
建筑高度:12.30米(含屋頂);
設計功能:
一 層:客廳、廚房、餐廳、衛生間、儲藏室;
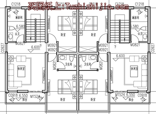
二 層:臥室x2(帶衛生間)、書房、衛生間、陽臺;
三 層:客廳、主臥(帶衛生間)、臥室、衛生間;
圖紙目錄:
建 筑 圖:建筑設計說明、一層平面圖、二層平面圖、三層平面圖、屋頂平面圖、正立面圖、背立面圖、左立面圖、右立面圖、1-1剖面圖、樓梯大樣圖、節點大樣圖、門窗大樣圖、門窗表等;
結 構 圖:結構設計說明、大樣圖、基礎平面布置圖、一層柱配筋圖、二層柱配筋圖、三層柱配筋圖、一層頂梁平法施工圖、二層頂梁平法施工圖、頂層梁平法施工圖、一層頂板結構平面圖、二層頂板結構平面圖、頂層板結構平面圖、樓梯配筋圖等;
給排水圖:給排水設計說明、一層給排水平面圖、二層給排水平面圖、三層給排水平面圖、衛生間大樣圖、給排水系統圖等;
電 氣 圖:電氣設計說明、一層照明平面圖、二層照明平面圖、三層照明平面圖、一層插座平面圖、二層插座平面圖、三層插座平面圖、一層弱電平面圖、二層弱電平面圖、三層弱電平面圖、基礎接地平面圖等;
包含全套A3設計圖+高清效果圖,直接可以施工。





























































































