
|
在快速發展的現在,各行各業都與時俱進在各個方面緊跟時代的腳步,農村自建房也是如此。隨著建筑技術的日益成熟,越來越多的人選擇回到家鄉建造房屋。村里隨處可見的小建筑并不新鮮。生活水平的提高也表明,農村生活已經擺脫了原來的貧困帽。作為農村建筑風格的主流之一,精致的歐式別墅一直受到農村人的青睞。本期小編就與大家分享5套經典美觀的歐式別墅,感興趣的兄弟朋友們可以一起來看看! 別墅圖一展示:占地面積:10.76m*11.06m,115.798平方米; 建筑層高:二層; 建筑結構:磚混結構; 建筑高度:9.5米(含屋頂);
別墅效果圖 設計功能:
一層戶型圖 一層戶型:客廳、餐廳、廚房、臥室、衛生間;
二層戶型圖 二層戶型:起居室、儲藏室、臥室X3、衛生間、陽臺;
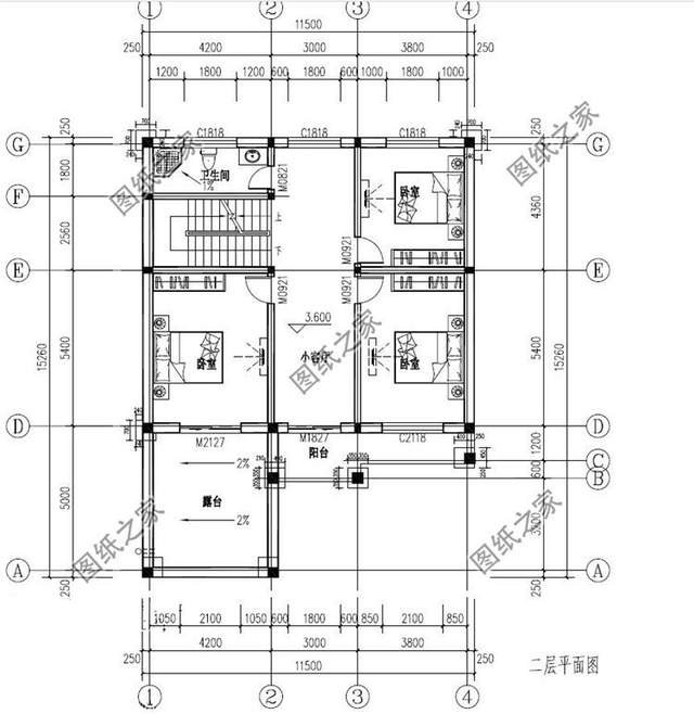
閣樓布局 閣樓布局:露臺; 別墅圖二展示:占地面積:11.5m*15.26m,150.49平方米左右;
正面效果圖
鳥瞰效果圖
側面效果圖
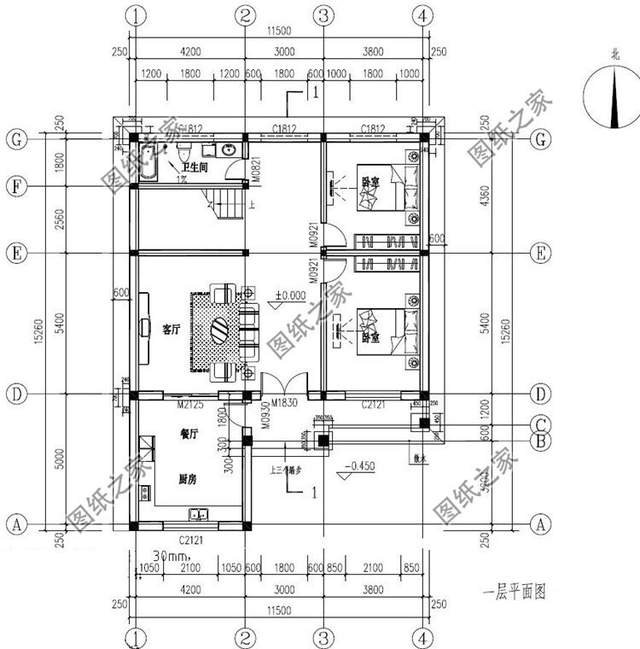
一層戶型圖
二層戶型圖 二層戶型:小客廳、臥室x3、衛生間、露臺、陽臺; 別墅圖三展示:占地面積:16.0m*13.0m,180平方米左右; 建筑層高:二層; 建筑高度:9.59米(含屋頂);
正面效果圖
側面效果圖
鳥瞰效果圖 設計功能:
一層戶型圖 一層戶型:客廳、餐廳、廚房、衛生間、主臥(帶衛生間,衣帽間)、儲藏間;
二層戶型圖 二層戶型:客廳、主臥(帶衛生間,衣帽間)、臥室x4、衛生間、陽臺、露臺; 別墅圖四展示:占地面積:10.36m*9.26m,92.12平方米左右; 建筑層高:二層; 建筑高度:9.454米(含屋頂);
別墅效果圖
一層戶型圖 設計功能: 一層戶型:客廳、廚房、餐廳、臥室、衛生間;
二層戶型圖 二層戶型:客廳、書房、臥室(帶衣帽間、衛生間)、臥室x2、衛生間、陽臺; 別墅圖五展示:占地面積:16.8m*11.2m,160.28平方米; 建筑層高:二層; 建筑高度:10.6米(含屋頂);
別墅效果圖 設計功能:
一層戶型圖 一層戶型:玄關、客廳、廚房、餐廳、臥室(帶衛生間)、KTV(可自由安排)、衛生間;
二層戶型圖 二層戶型:起居室、臥室(帶衛生間)、臥室x2、衛生間、露臺、陽臺; 圖紙之家-專注農村別墅/自建房設計18年,集合國內200余位經驗豐富的設計師,被評為口碑最好的農村建筑設計公司! |

140平四層復式別墅房屋設計圖,帶外觀效果圖
占地:140平方米
豪華二層別墅設計圖紙及效果圖,帶車庫,歐式別墅方案
占地:170平方米
100平方建房子設計圖及效果圖,簡單實用的戶型設計
占地:97.3平方米
帶小院新農村房屋設計圖紙,三層別墅推薦
占地:115平方米
2026新中式農村三層別墅圖,外觀漂亮,看一眼就愛上
占地:240平方米
150平米簡單大方的三層農村自建房設計圖,坡層頂,色彩鮮明,布
占地:150平方米
180平方米漂亮大氣三層雙拼別墅設計圖,自建房圖片
占地:186平方米
農村大戶型中式二層四合院別墅設計圖含外觀效果圖,戶型經典、
占地:464平方米
農村最漂亮二層歐式別墅設計圖,面寬16.5米(含車庫)
占地:180.366
鄉下一層自建養老平房戶型圖及全套圖紙,占地面積200左右
占地:200平方米
120平米簡單實用型農村小別墅設計圖,二層屋頂為全露臺,小開間
占地:120平方米
簡約實用農村自建房戶型圖,美觀經濟又通透,南北通透住得爽!
占地:160.6平方米
兩層平屋頂帶地下室別墅設計方案(全套自建房施工圖+效果圖)
占地:152.55平方米
一層農村自建房別墅設計方案,左右對稱布局好
占地:154平方米
復式別墅新農村二層房屋設計圖紙,屋頂錯落有致
占地:多戶型可選
農村60萬別墅款式設計圖及外觀效果圖,客廳中空
占地:150平方米
好看又簡單的二層樓房設計,經濟實用型的農村小別墅
占地:135平方米
開間13米左右新農村2層自建房別墅戶型設計圖,簡潔實用
占地:170平方米
最新三層農村別墅設計圖紙,推薦農村自建
占地:106平方米
現代新中式四層復式別墅房屋設計圖,旋轉樓梯,含效果圖
占地:150平方米
推薦:10套新農村自建房設計圖,2026年最新設計
閱讀次數:4825737次
100套鄉村別墅圖片大全,2026年最新設計
閱讀次數:2492203次
6款農村蓋一層平房的設計圖,10萬元就能建起來
閱讀次數:1852637次
這11個一層農村自建房別墅火爆了朋友圈!我最喜歡戶型十!你呢
閱讀次數:750268次
農村6萬元建一層小別墅圖,你敢相信嗎
閱讀次數:567686次
農村5萬塊就能自建房,6套普通房子設計圖分享,你沒看錯!
閱讀次數:419410次
8套農村漂亮三間平房圖片,非常適合在農村修建!
閱讀次數:411197次
農村自建房化糞池怎么做?附方案及施工過程
閱讀次數:391783次
農村一層三間平房設計圖,告別土氣養老房,讓人忍不住點贊
閱讀次數:350581次
新農村二層樓房圖片造價12萬,挑一套回家建房吧!
閱讀次數:349126次
