
|
現在農村建房大部分會選擇坡屋頂設計,因為這樣蓋出的房子,給人們呈現出來的效果格外的美觀大方。在實用方面可以在梅雨天氣不積水,防水性能好。在夏天聚熱于頂部.冬天又不感覺室內冷。因此坡屋頂受到許多建房者的喜愛,今天小編就與大家分享幾款不僅好看還實用的坡屋頂別墅設計,幫助各位建房朋友解鎖農村建房新姿勢,希望大家能夠喜歡,覺得不錯的朋友們可以一起來看看。 別墅圖一展示:占地面積:13.9m*15.5m,179.355平方米左右;
正面效果圖
鳥瞰效果圖
側面效果圖
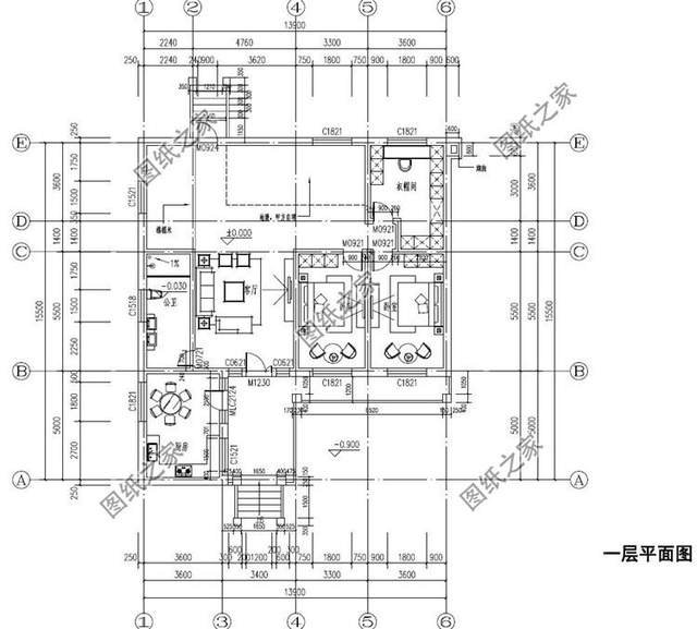
一層戶型圖
別墅圖二展示:占地面積:16.56m*12.36m,180.366平方米; 建筑層高:二層; 建筑高度:11.398米(含屋頂);
別墅效果圖 設計功能:
一層戶型圖 一層戶型:客廳、廚房、餐廳、臥室(帶衛生間)、臥室、衛生間;
二層戶型圖 二層戶型:小客廳、棋牌室、臥室(帶衛生間)x2、臥室x3、衛生間、露臺、陽臺; 別墅圖三展示:占地面積:14.06m*13.56m,171.6平方米左右; 建筑層高:二層; 建筑高度:11.203米(含屋頂);
別墅效果圖 設計功能:
一層戶型圖 一層戶型:堂屋、客廳、廚房、餐廳、臥室(帶衣帽間)、棋牌室、衛生間;
二層戶型圖 二層戶型:客廳、臥室(帶衣帽間)x2、臥室x2、陽臺; 別墅圖四展示:占地面積:11.16m*10.76m,122.679平方米左右; 建筑層高:三層; 建筑高度:12.631米(含屋頂);
別墅效果圖 設計功能:
一層戶型圖 一層戶型:客廳、廚房、餐廳、臥室x2、衛生間;
二層戶型圖 二層戶型:客廳上空、小客廳、休閑區、臥室x3、陽臺;
三層戶型圖 三層戶型:小客廳、書房、休閑區、臥室x2、衛生間、露臺; 別墅圖五展示:占地面積:11.76m*11.29m,138平方米左右; 建筑層高:三層; 建筑高度:12.58米(含屋頂);
別墅效果圖
鳥瞰效果圖
側面效果圖 設計功能:
一層平面圖 一層戶型:客廳、餐廳、廚房、臥室(帶衛生間)、儲藏室、衛生間;
二層平面圖 二層戶型:客廳上空、起居室、臥室(帶衛生間)、臥室x2、書房、衛生間、陽臺;
三層平面圖 三層戶型:臥室(帶衛生間)、臥室x2、棋牌室、衛生間、露臺; 圖紙之家-專注農村別墅/自建房設計18年,集合國內200余位經驗豐富的設計師,被評為口碑最好的農村建筑設計公司! |

125平自建房設計圖二層戶型,建房選這款準沒錯
占地:124.04平方米
100平方米自建房二層設計圖紙及效果圖,12x9米
占地:100平方米
好看精致的三層自建房別墅設計圖,開間12米進深12米左右
占地:125.73平方米
農村最漂亮平頂三層別墅設計圖,10.5乘11.5米
占地:119.35平方米
普通簡單的平屋頂二層房子設計,造價低施工簡單
占地:151.04平方米
12米×10米左右一層別墅平房戶型圖及設計圖,造價低
占地:110平方米
二層帶車庫歐式尊貴別墅圖,客廳中空,美觀,大氣,實用
占地:300平方米
農村二層L戶型農村別墅!設計圖簡約時尚又大氣,住著超舒適
占地:170.55平方米
農村三層兄弟雙拼別墅設計圖及效果圖片,14X12米自建戶型
占地:154平方米
爆款農村一層別墅圖紙設計,看過的都說漂亮實用
占地:144.91平方米
適合回鄉建的三合院平房設計圖,舒適又接地氣
占地:213.96平方米
現代三層復式小別墅設計圖及外觀圖片,25萬造價
占地:105平方米
簡歐風格別墅設計圖帶外觀效果圖,三層140平米戶型方案
占地:140平方米
好看又簡單的二層樓房設計圖紙,戶型還實用
占地:150平方米
110平預算20萬內三層別墅設計圖,含效果圖
占地:110平方米
農村三層帶電梯小別墅設計施工圖,120平方米左右12.2x10.8米
占地:123平方米
農村60萬三層別墅新款式設計圖,外觀和實用性并駕齊驅
占地:170平方米
新農村小洋樓三層別墅戶型設計圖,開間9米,造價25萬
占地:94平方米
110平方米新農村二層別墅設計圖及效果圖,12.36x9.36米
占地:115平方米
時尚耐看現代二層農村別墅設計圖,14米×11米,年輕人建房的不二
占地:138.125平方米
推薦:10套新農村自建房設計圖,2026年最新設計
閱讀次數:4825737次
100套鄉村別墅圖片大全,2026年最新設計
閱讀次數:2492203次
6款農村蓋一層平房的設計圖,10萬元就能建起來
閱讀次數:1852637次
這11個一層農村自建房別墅火爆了朋友圈!我最喜歡戶型十!你呢
閱讀次數:750268次
農村6萬元建一層小別墅圖,你敢相信嗎
閱讀次數:567686次
農村5萬塊就能自建房,6套普通房子設計圖分享,你沒看錯!
閱讀次數:419410次
8套農村漂亮三間平房圖片,非常適合在農村修建!
閱讀次數:411197次
農村自建房化糞池怎么做?附方案及施工過程
閱讀次數:391783次
農村一層三間平房設計圖,告別土氣養老房,讓人忍不住點贊
閱讀次數:350581次
新農村二層樓房圖片造價12萬,挑一套回家建房吧!
閱讀次數:349126次
