
|
新中式風格經常出現在各種產品設計中,就拿當前的農村住宅建筑風格為例,散發出古老的魅力和詩意,滲透到中式住宅的磚瓦中;樸實的墻面主體,雕刻裝飾等等,這些古老而迷人的中國建筑元素,重新煥發光彩,在時間的流逝中賦予了新的靈魂。吸引了一波又一波的建房者選擇了新中式農村自建別墅設計,今天小編將與大家分享四款新中式自建別墅設計感興趣的朋友可以看一看~! 別墅圖一展示:占地面積:12.76m*12.06m,151.836平方米左右; 建筑層高:三層; 建筑高度:12.765米(含屋頂);
別墅效果圖 設計功能:
一層平面圖 一層戶型:堂屋、客廳、餐廳、廚房、棋牌室、臥室(帶衛生間)、臥室、衛生間;
二層平面圖 二層戶型:客廳上空、客廳、影音室、臥室(帶衛生間)、臥室、衛生間、陽臺;
三層平面圖 三層戶型:娛樂區、臥室(帶書房、衛生間)、臥室(帶書房)、臥室、衛生間、露臺; 別墅圖二展示:占地面積:13.2m*15.7m,194平方米左右; 建筑層高:三層; 建筑高度:13.068米(含屋頂);
正面效果圖
鳥瞰效果圖
側面效果圖 設計功能:
地下室戶型圖 地下室:家庭影院KTV、酒窖、健身房、棋牌室、儲物間、臥室;
一層戶型圖 一層戶型:神位、客廳、餐廳、廚房、茶室、臥室、儲物間、衛生間;
二層平面圖 二層戶型:過廳、臥室(帶衣帽間衛生間)x2、儲物間、陽臺、露臺;
三層戶型圖 三層戶型:小客廳、臥室(帶衛生間)x2、臥室x2、衛生間、陽臺、露臺; 別墅圖三展示:占地面積:15.76m*9.76m,144平方米左右; 建筑層高:二層; 建筑高度:8.66米(含屋頂);
正面效果圖
鳥瞰效果圖
側面效果圖 設計功能:
一層戶型圖 一層戶型:客廳、堂屋、廚房、餐廳、父母房(帶衛生間)、臥室x2、衛生間;
二層戶型圖 二層戶型:茶室、父母房(帶衛生間)、臥室x4、衛生間、涼亭、露臺; 別墅圖四展示:占地面積:15.8m*11.8m,175平方米左右; 建筑層高:二層; 建筑高度:10.2米(含屋頂);
正面效果圖
鳥瞰效果圖
側面效果圖 設計功能:
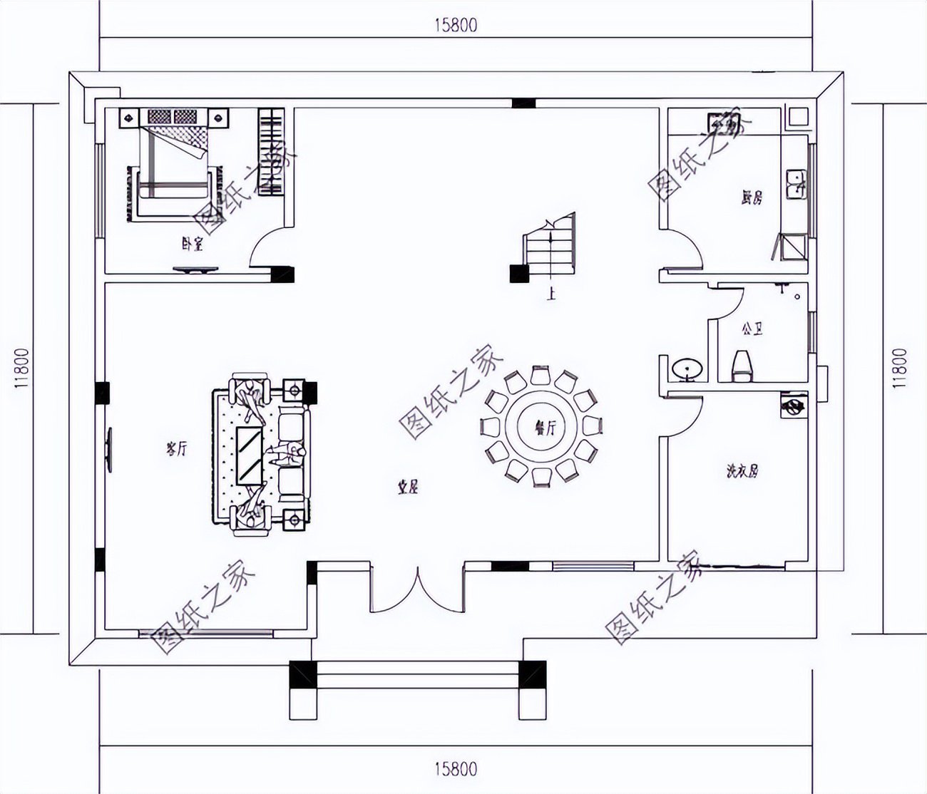
一層平面圖 一層戶型:堂屋、客廳、廚房、餐廳、臥室、衛生間、洗衣房;
二層平面圖 二層戶型:客廳、臥室(帶衛生間)、臥室x2、衛生間、露臺 圖紙之家-專注農村別墅/自建房設計18年,集合國內200余位經驗豐富的設計師,被評為口碑最好的農村建筑設計公司! |

四開間一層自建房設計圖,四臥二廳+棋牌室+書房
占地:181.29平方米
漂亮實用三層新農村小別墅設計圖紙,占地150平米,帶露臺,從哪
占地:150平方米
中國最美的四合院別墅設計圖方案,復式挑空客廳戶型
占地:343.57平方米
時尚二層現代風別墅設計圖紙,平屋頂方案13×10米
占地:98平方米
最美中式合院別墅圖,這才是中國農村該建的房子,如此精美絕倫
占地:380平方米
新中式二層農村住宅設計圖,戶型方正,主體造價21萬
占地:135.81平方米
適合7字型宅基地蓋的一層別墅,中式風格設計
占地:163平方米
農村三合院設計圖及效果圖,自建三合院圖紙
占地:470平方米
農村三層半自建房子效果圖及設計圖,戶型占地90平方米左右
占地:92.17平方米
帶配房的農村三層別墅設計圖,全家享精致生活
占地:167.29平方米
豪華雙拼三層別墅設計圖,在農村建一棟,將是最靚的風景!
占地:186.85平方米
經濟實用二層農村自建房設計圖,新中式風格12x11米
占地:114平方米
七字型設計新中式一層別墅設計圖,類合院風格
占地:267.3平方米
三層新中式別墅設計圖,面寬12米經典漂亮
占地:154.93平方米
農村兩層新中式別墅圖紙設計圖,外觀圖片大氣,21萬左右
占地:108平方米
農村四層樓房設計圖,含外觀圖片,自建四層房屋推薦
占地:140平方米
五十萬二層半鄉村別墅,客廳挑空設計,占地200平米左右
占地:200平方米
農村18萬元二層小樓圖,帶開放式車庫
占地:110平方米
150平米左右歐式三層鄉村別墅設計圖,客廳中空
占地:150平方米
50萬農村自建三間三層別墅設計圖,占地130平米左右
占地:135平方米
推薦:10套新農村自建房設計圖,2026年最新設計
閱讀次數:4825737次
100套鄉村別墅圖片大全,2026年最新設計
閱讀次數:2492203次
6款農村蓋一層平房的設計圖,10萬元就能建起來
閱讀次數:1852637次
這11個一層農村自建房別墅火爆了朋友圈!我最喜歡戶型十!你呢
閱讀次數:750268次
農村6萬元建一層小別墅圖,你敢相信嗎
閱讀次數:567686次
農村5萬塊就能自建房,6套普通房子設計圖分享,你沒看錯!
閱讀次數:419410次
8套農村漂亮三間平房圖片,非常適合在農村修建!
閱讀次數:411197次
農村自建房化糞池怎么做?附方案及施工過程
閱讀次數:391783次
農村一層三間平房設計圖,告別土氣養老房,讓人忍不住點贊
閱讀次數:350581次
新農村二層樓房圖片造價12萬,挑一套回家建房吧!
閱讀次數:349126次
