
|
農村人最讓人羨慕的莫過于有自己的宅基地,可以建自己喜歡的房子,并且還可以有個自家的小院了。網上這樣的戶型很多,因為農村的宅基地有限,所以小戶型還是比較受歡迎的,小編今天就為大家分享一個小戶型,一個8X15米的獨棟別墅設計。
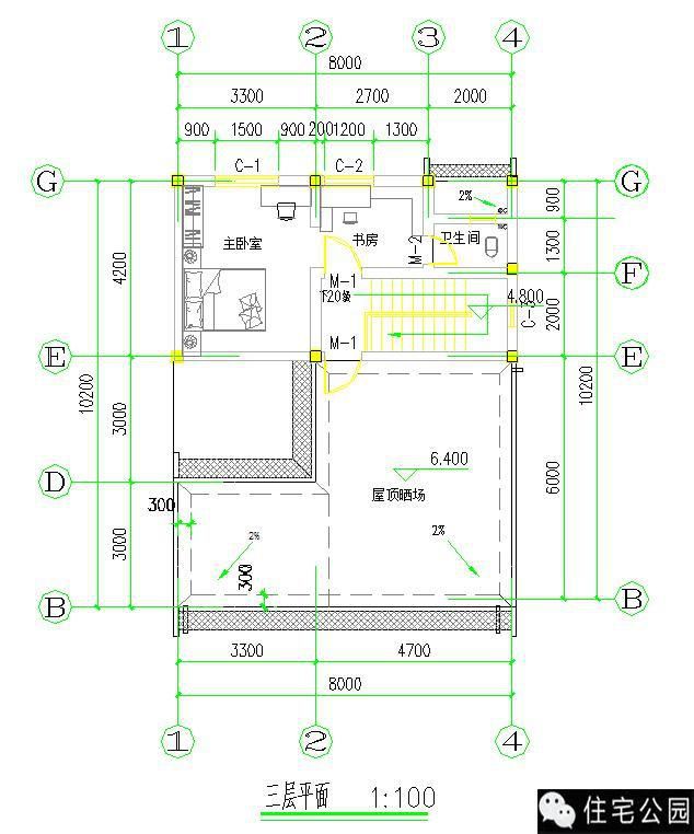
此宅基地8X15米,房子坐北朝南,東西長8米,進深10.2米,為三層建筑,磚混結構建造,外墻貼有瓷磚,建造簡單經濟,干凈又實用。 平面布局圖: 此小院庭院入口和機車入口分開,互不干擾,庭院有一條可以通往室內的小路,小路兩側的庭院可以整理出小菜園和花園。進入室內是待客廳和起居室,旁邊是廚房和餐廳,最北側是臥室、糧食存放廳、衛生間和儲藏室。空間利用率高。
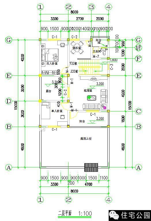
二層設有2臥室、1娛樂室、1起居室、1衛生間。在單人臥室、起居室、單人臥室中間設計露臺,并多處設計陽臺,以保證每個居室都能通風換氣,保證室內的日照率。
三層是一個套間設計,室內設有書房和衛生間,私密性很好,南側是一個曬場,方便老百姓晾曬。
這樣的農家小院獨棟別墅你喜歡嗎? 圖紙之家-專注農村別墅/自建房設計18年,集合國內200余位經驗豐富的設計師,被評為口碑最好的農村建筑設計公司! |

一層田園風坡屋頂平房設計圖,造型漂亮時尚
占地:134.9平方米
140平方米新農村四層房屋設計圖紙,農村自建推薦
占地:140平方米
歐式大氣新農村三層別墅豪宅設計圖,外觀高端,對稱設計
占地:225平方米左右
新中式風格農村自建房二層設計圖,15.5米乘12米
占地:186平方米
120平方米農村一層平房別墅設計圖紙,含外觀效果圖
占地:125平方米
兩層農村自建二層樓設計圖紙,面寬12米左右
占地:131.2平方米
給爸媽建養老房?100 平人字坡一層房太合適!簡約低調還實用
占地:102.6平方米
二層復式樓房設計圖,平實接地氣的平面布局
占地:180平方米
三層帶車庫樓中樓建房別墅圖紙,占地130平米左右,戶型室內布局
占地:130平方米
面寬9米的三層農村自建房設計圖,適合鄉下地區自建
占地:121.94平方米
鄉村二層簡歐小戶型別墅圖設計,占地90平方米左右
占地:92.12平方米
農村兩層新中式別墅圖紙設計圖,外觀圖片大氣,21萬左右
占地:108平方米
130平方米復式三層別墅房屋設計圖,含外觀效果圖
占地:130平方米
150平歐式別墅房屋設計圖,外觀精美、氣派
占地:150平方米
農村中式二層4開間別墅圖紙設計方案圖,帶車庫戶型
占地:198平方米
農村四間二層別墅設計圖,七室二廳帶車庫,室內寬敞鄰居都羨慕
占地:217.1平方米
100平新農村三層復式房屋別墅設計圖紙,造價30萬左右
占地:106平方米
2026年新款別墅外觀圖,新中式風格,比簡歐大氣,時尚
占地:135平方米
新農村一層小別墅設計方案,四臥二廳耐看實用,方便打掃更便捷
占地:153.55平方米
110平左右二層小洋樓設計圖,含效果圖片
占地:108平方米
推薦:10套新農村自建房設計圖,2026年最新設計
閱讀次數:4825737次
100套鄉村別墅圖片大全,2026年最新設計
閱讀次數:2492203次
6款農村蓋一層平房的設計圖,10萬元就能建起來
閱讀次數:1852637次
這11個一層農村自建房別墅火爆了朋友圈!我最喜歡戶型十!你呢
閱讀次數:750268次
農村6萬元建一層小別墅圖,你敢相信嗎
閱讀次數:567686次
農村5萬塊就能自建房,6套普通房子設計圖分享,你沒看錯!
閱讀次數:419410次
8套農村漂亮三間平房圖片,非常適合在農村修建!
閱讀次數:411197次
農村自建房化糞池怎么做?附方案及施工過程
閱讀次數:391783次
農村一層三間平房設計圖,告別土氣養老房,讓人忍不住點贊
閱讀次數:350581次
新農村二層樓房圖片造價12萬,挑一套回家建房吧!
閱讀次數:349126次
