
|
效果圖
一層平面圖
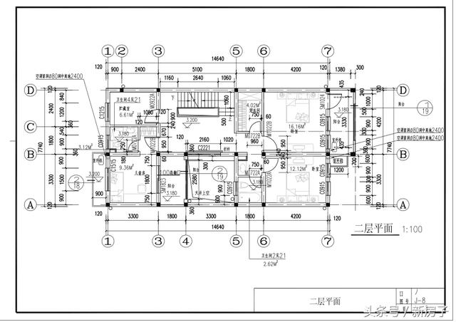
二層平面圖
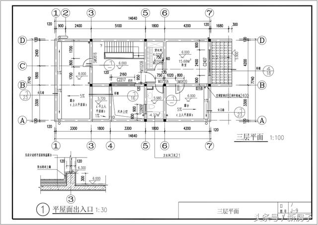
三層平面圖
屋頂平面圖
立面圖
以后會有更多在作品與大家分享,并免費提供300套圖紙、設計咨詢及技術服務 圖紙之家-專注農村別墅/自建房設計18年,集合國內200余位經驗豐富的設計師,被評為口碑最好的農村建筑設計公司! |

帶堂屋新農村三層房屋別墅設計圖紙,帶外觀效果圖
占地:214平方米
網紅農村一層小別墅設計圖,建一層的必看
占地:多戶型可選
開間20米雙拼別墅三層設計圖,兄弟合建省時省力又省心
占地:205.8平方米
人氣最旺的二層半別墅設計圖紙,復式挑空二層半自建房
占地:122.679平方米
12.5乘12米大氣優雅二層自建房設計圖,精美舒適布局實用
占地:149.27平方米
16米X12米四開間二層別墅設計圖,造型美觀經濟實用
占地:198平方米
豪華新中式兩層半農村別墅設計圖,繁華之外,心之所向
占地:290.4平方米
兩層半樓房設計圖及效果圖,農村二層房屋設計圖推薦
占地:135平方米
私人自建三層別墅設計圖紙帶效果圖,歐式風格、外觀大氣
占地:209.44平方米
11×10米農村二層別墅圖,百平占地經典實用舒適大氣
占地:103.47平方米
帶堂屋設計一層5間平房新農村自建別墅效果圖全套施工圖
占地:198.41平方米
五開間農村豪華三層別墅設計圖,大格局大氣派,大家庭建房首選
占地:227.04平方米
80平方米三層農村自建民房設計圖,小戶型別墅方案
占地:81平方米
進深15米新農村三層房屋設計圖紙,農村住宅設計圖集
占地:128平方米
農村10萬元一層小別墅設計圖,農村一層自建房屋設計圖
占地:多種戶型
新中式二層別墅設計圖,農村最適合建的兩層小樓,13×12米
占地:143平方米
平屋頂二層自建房帶商鋪別墅設計圖紙及外觀圖
占地:225平方米
2026新款農村三層雙拼自建房設計圖,占地150平米左右
占地:150平方米
140平三層別墅房屋設計圖,含外觀圖片,外觀現代時尚
占地:143平方米
人字坡房屋一層別墅設計圖,簡約低調超實用,、
占地:101.17平方米
推薦:10套新農村自建房設計圖,2026年最新設計
閱讀次數:4825737次
100套鄉村別墅圖片大全,2026年最新設計
閱讀次數:2492203次
6款農村蓋一層平房的設計圖,10萬元就能建起來
閱讀次數:1852637次
這11個一層農村自建房別墅火爆了朋友圈!我最喜歡戶型十!你呢
閱讀次數:750268次
農村6萬元建一層小別墅圖,你敢相信嗎
閱讀次數:567686次
農村5萬塊就能自建房,6套普通房子設計圖分享,你沒看錯!
閱讀次數:419410次
8套農村漂亮三間平房圖片,非常適合在農村修建!
閱讀次數:411197次
農村自建房化糞池怎么做?附方案及施工過程
閱讀次數:391783次
農村一層三間平房設計圖,告別土氣養老房,讓人忍不住點贊
閱讀次數:350581次
新農村二層樓房圖片造價12萬,挑一套回家建房吧!
閱讀次數:349126次
