
|
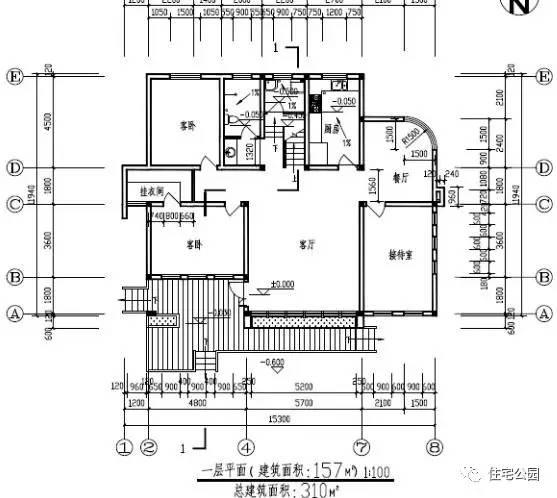
農村生活好,蓋個好房子生活簡直太舒適,現在網上的戶型圖如此多,細心挑選總能找到合適的,再加上國家對農業政策的大力扶持,想必再過不久,新農村的面貌一定會吸引眾多人到此生活居住。 平面布局圖: 別墅占地15X11米,平面布局細致有序,首層空間設有客廳臥房,同時還單獨設計了一間接待室,不過有點多余,如果家里有車的話,可以將這個接待室改造成車庫使用。
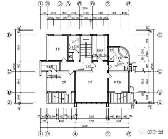
二層布局兩間臥室一間書房,主臥面積最大帶有獨立衣帽間設計與衛生間,同時連接外向陽光房,居室生活更舒適。次臥居北,雖說面積不如主臥,但是也很有自己的味道,適合家人在此生活休息。
圖紙之家-專注農村別墅/自建房設計18年,集合國內200余位經驗豐富的設計師,被評為口碑最好的農村建筑設計公司! |

農村10萬元一層小別墅設計圖,農村一層自建房屋設計圖
占地:多種戶型
三層三間別墅設計圖方案,含外觀圖片,自建推薦
占地:125平方米
二層簡歐農房!經濟實惠+大氣耐看,20年后不落后
占地:120平方米
三層新農村自建小型別墅設計圖及效果圖,三間三層樓房戶型
占地:114平方米
兩層中式三合院別墅設計圖紙,堂屋套臥全都有,蓋一棟面子十足
占地:181.93平方米
155平方米自建二層CAD房屋設計圖紙及效果圖,13X12米
占地:156平方米
8×12米農村三層別墅自建房設計圖,小開間精選方案
占地:103平方米
二層門面房自建小樓設計圖紙及效果圖,占地150平
占地:151.83平方米
最美中式合院別墅圖,這才是中國農村該建的房子,如此精美絕倫
占地:380平方米
時尚一層別墅圖,一層這樣蓋房最漂亮
占地:160平方米
農村新中式別墅設計圖及效果圖,造價25萬左右
占地:95平方米
新農村兩層半小洋樓房設計圖,預算33萬左右
占地:多種戶型
180平方現代風三層別墅設計圖,經典大氣,百看不厭
占地:180.48平方米
四開間二層別墅設計圖,造型精美經典舒適,火爆全村的戶型
占地:150.882平方米
大氣的三層鄉村別墅設計方案圖,小面積建出豪宅感
占地:104.9平方米
農村蓋平房設計大全圖,鄉下建房一層戶型圖及效果圖
占地:160平方米
地中海風格二層別墅設計圖及效果圖,外觀有格調
占地:125平方米
90平小戶型四層房屋設計圖,農村自建別墅推薦
占地:90平方米
200平米左右二層樓房設計圖,外觀看著舒服、布局住著坦然
占地:190平方米
13×10米現代簡約風格三層別墅圖,坡屋頂和平屋頂完美結合
占地:120平方米
推薦:10套新農村自建房設計圖,2026年最新設計
閱讀次數:4825737次
100套鄉村別墅圖片大全,2026年最新設計
閱讀次數:2492203次
6款農村蓋一層平房的設計圖,10萬元就能建起來
閱讀次數:1852637次
這11個一層農村自建房別墅火爆了朋友圈!我最喜歡戶型十!你呢
閱讀次數:750268次
農村6萬元建一層小別墅圖,你敢相信嗎
閱讀次數:567686次
農村5萬塊就能自建房,6套普通房子設計圖分享,你沒看錯!
閱讀次數:419410次
8套農村漂亮三間平房圖片,非常適合在農村修建!
閱讀次數:411197次
農村自建房化糞池怎么做?附方案及施工過程
閱讀次數:391783次
農村一層三間平房設計圖,告別土氣養老房,讓人忍不住點贊
閱讀次數:350581次
新農村二層樓房圖片造價12萬,挑一套回家建房吧!
閱讀次數:349126次
