
|
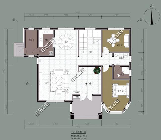
農村自建房由于宅基地面積和建房高度限制的原因,很多朋友都選擇歐式風格,偶有現代風格。北方農村建房大多平房加小院,南方3層為主, 更高的也有,總體來說還是二層最多,一層生活,二層休息。今天給大家來兩套15米面寬的歐式農村小豪宅,兩套房型尺寸有區別,但都來源于一個圖紙之家標準戶型的改版,都有挑空客廳,主臥套間,第一套還帶柴火灶。大家說說看那個戶型是你的菜?你覺得建歐式農村別墅,單加一個柴火灶好不好? 戶型一:如果對照戶型一,戶型二你就會發現,這兩個戶型有點對稱。進門都是玄關,一左一右分別為帶衛生間的主臥和客廳,客廳與餐廳貫通。歐式外觀,內部廚房帶柴火灶,我覺得這才是接地氣的歐式別墅,你覺得呢?
戶型二:
平面圖:與戶型一基本左右對稱,只是一樓娛樂室改為臥室,柴火灶和廚房合并成一個更大的廚房。進門的玄關戶型一計劃擺的是神位,戶型二改為了衣帽柜。
還有一點改進是二樓所有房間都有衛生間,所以沒有公衛。
圖紙之家-專注農村別墅/自建房設計18年,集合國內200余位經驗豐富的設計師,被評為口碑最好的農村建筑設計公司! |

農村二層樓簡單大氣的樓房設計圖紙,帶車庫,帶露臺
占地:150平方米
時尚一層別墅圖,一層這樣蓋房最漂亮
占地:160平方米
12X14米四層農村自建別墅設計圖,功能設計豐富齊全
占地:157平方米
小戶型徽派建筑別墅設計方案大全,三層別墅設計圖推薦
占地:95平方米
新農村實用三層帶露臺房屋設計圖紙,占地110平方米
占地:109平方米
農村一層平房別墅設計圖紙,130平米左右,主體十幾萬
占地:130平方米左右
2026年新款別墅外觀圖,新中式風格,比簡歐大氣,時尚
占地:135平方米
2026最受歡迎的三層農村小別墅設計圖紙,占地155平方米
占地:155平方米
140平米一層農村自建房設計圖,好看不貴簡約耐看
占地:141.12平方米
中式二層對稱別墅設計圖,帶地下室設計,整體造價經濟
占地:171.6平方米
100-140平多戶型二層經典新農村小別墅設計建筑圖紙
占地:多種戶型
偏徽派風格民居三層農村住宅設計圖,白墻黛瓦的古雅簡潔
占地:101.01平方米
簡約L型一層平房自建房設計圖,經濟實用
占地:145.283平方米
二層歐式別墅設計圖,挑空客廳+柴火灶,12.5米乘12米
占地:131.25平方米
10米×13米最好看的農村三層樓房圖,客廳中空
占地:124平方米
120平方米農村漂亮實用的兩層別墅設計圖紙,含外觀圖片
占地:120平方米
農村小洋樓設計圖及效果圖,二層樓房設計圖
占地:120平方米
歐式二層小別墅設計圖紙(含外觀效果圖)
占地:141平方米
鄉村典型自建房中式二層四合院別墅設計圖,左右對稱設計
占地:430平方米
14x12.5米二層農村別墅設計圖,布局完美獨立,顏值高又實用
占地:153.95平方米
推薦:10套新農村自建房設計圖,2026年最新設計
閱讀次數:4825737次
100套鄉村別墅圖片大全,2026年最新設計
閱讀次數:2492203次
6款農村蓋一層平房的設計圖,10萬元就能建起來
閱讀次數:1852637次
這11個一層農村自建房別墅火爆了朋友圈!我最喜歡戶型十!你呢
閱讀次數:750268次
農村6萬元建一層小別墅圖,你敢相信嗎
閱讀次數:567686次
農村5萬塊就能自建房,6套普通房子設計圖分享,你沒看錯!
閱讀次數:419410次
8套農村漂亮三間平房圖片,非常適合在農村修建!
閱讀次數:411197次
農村自建房化糞池怎么做?附方案及施工過程
閱讀次數:391783次
農村一層三間平房設計圖,告別土氣養老房,讓人忍不住點贊
閱讀次數:350581次
新農村二層樓房圖片造價12萬,挑一套回家建房吧!
閱讀次數:349126次
