
|
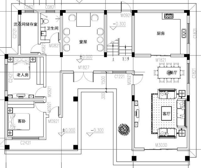
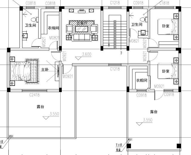
農村3合院戶型16.5X12.5米,有堂屋,有露臺,還有獨立的衣帽間,這才是農村獨棟別墅設計!
外觀效果圖
鳥瞰效果圖
一樓
二樓 本案例開間:16.5米、進深:12.5米;該戶型為為成都一客戶定制設計,因為地基的限制原因,進入大門時需要從左側的廂房外面步入。 占地面積:195.42平米; 一樓面積:195.42平米; 二樓面積:180.6平米; 建筑面積:376.02 結構類型:框架結構 圖紙之家-專注農村別墅/自建房設計18年,集合國內200余位經驗豐富的設計師,被評為口碑最好的農村建筑設計公司! |

130平米新農村自建房屋施工建筑圖紙及效果圖
占地:132平米
120平方米三層歐式別墅設計圖,進門就是旋轉樓梯
占地:119.76平方米
農村二層住宅樓房設計圖紙,全套方案(施工圖+效果圖)
占地:113平方米
農村20萬元二層小樓房設計圖,經典新農村自建房戶型
占地:120平方米
帶車庫二層165平別墅房屋設計圖,含效果圖
占地:165平方米
2026最新款50萬左右農村三層別墅設計圖,客廳中空
占地:160平方米
高端歐式四層別墅房屋施工圖紙及效果圖,圓弧大窗
占地:170平方米
小型雙拼一層平房設計圖,外觀古樸
占地:100平方米
農村七字形獨棟一層別墅設計圖,設計感十足
占地:274.51平方米
面寬20米農村自建房設計圖一層設計圖,五開間養老戶型
占地:194平方米
農村三層帶電梯小別墅設計施工圖,120平方米左右12.2x10.8米
占地:123平方米
農村三層雙拼別墅戶型圖設計圖,整體外觀氣派
占地:220平方米
最耐看的二層別墅設計圖,15米寬12米深,方正大氣經濟美觀!
占地:180平方米
130平方米農村兩層別墅圖紙及效果圖12X11米
占地:133平方米
150平米左右歐式三層鄉村別墅設計圖,客廳中空
占地:150平方米
農村二層半別墅設計圖,簡單實用,造價低
占地:140平方米
歐式漂亮農村三層自建房設計圖紙,兩個戶型方案可選
占地:多戶型可選
160平米三層別墅設計圖,功能齊全,外觀漂亮,適合和父母同住
占地:160平方米
帶KTV的四開間的二層別墅設計圖,造型美觀經濟實用
占地:240.22平方米
時尚耐看現代二層農村別墅設計圖,14米×11米,年輕人建房的不二
占地:138.125平方米
推薦:10套新農村自建房設計圖,2026年最新設計
閱讀次數:4825737次
100套鄉村別墅圖片大全,2026年最新設計
閱讀次數:2492203次
6款農村蓋一層平房的設計圖,10萬元就能建起來
閱讀次數:1852637次
這11個一層農村自建房別墅火爆了朋友圈!我最喜歡戶型十!你呢
閱讀次數:750268次
農村6萬元建一層小別墅圖,你敢相信嗎
閱讀次數:567686次
農村5萬塊就能自建房,6套普通房子設計圖分享,你沒看錯!
閱讀次數:419410次
8套農村漂亮三間平房圖片,非常適合在農村修建!
閱讀次數:411197次
農村自建房化糞池怎么做?附方案及施工過程
閱讀次數:391783次
農村一層三間平房設計圖,告別土氣養老房,讓人忍不住點贊
閱讀次數:350581次
新農村二層樓房圖片造價12萬,挑一套回家建房吧!
閱讀次數:349126次
