
|
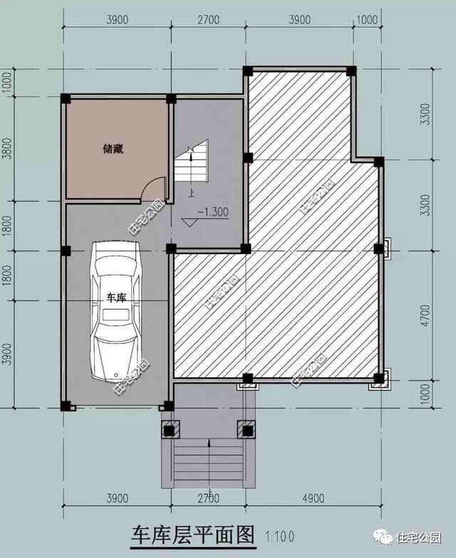
農村蓋房子宅地都是有限制的,自家那么大的一塊宅基地不能再往大了弄,而且還不能變更購買,如果家里人不多,倒也還行,蓋一棟二三層小房子出來很是實用;但萬一要是家里人多還有車,總不可能在這么小的一塊宅基地上又設計了車庫吧,不實用,要我說,還是弄個地下車庫最好,不占地又實用,還劃算,特別適合農村人自建房。 平面布局圖: 地下車庫層沒有什么好說的,就是一個停靠車輛的地方,重點在于地面空間。
別墅占地12x13.6米,占地面積133平方米,建筑面積431平方米,不算地下層的話是三層的戶型設計,對農村人來說的確夠用了,臥室數量也多,不怕出現家里人多不夠住的情況。
戶型二:
平面布局圖: 第二套戶型的地下層設計,比戶型一布局要更加精致,戶型一只是單純的車庫設計,戶型二則是以車庫為主要元素,并伴隨多種儲藏空間設計,一點都不浪費這點空間,很是經典。
圖紙之家-專注農村別墅/自建房設計18年,集合國內200余位經驗豐富的設計師,被評為口碑最好的農村建筑設計公司! |

簡單的復式住宅設計圖,客廳挑高,帶外觀效果圖片
占地:148平方米
面寬13米二層鄉村自建別墅戶型圖,帶堂屋和露臺
占地:135.47平方米
100平內簡單精致的小戶型自建房二層設計圖,旋轉樓梯
占地:97.08平方米
農村四間兩層樓房設計圖,帶車庫,時尚經濟,最適合農村施工的
占地:180平方米
人字坡房屋一層別墅設計圖,簡約低調超實用,、
占地:101.17平方米
35萬左右的農村小別墅設計圖及效果圖,新中式風格
占地:137平方米
200平方米穩重大氣三層雙拼別墅建筑設計圖紙,含效果圖19.04米
占地:200平方米
新中式二層農村住宅設計圖,戶型方正,主體造價21萬
占地:135.81平方米
三層兄弟雙拼別墅設計圖,外觀大氣漂亮,顏色搭配協調,一層為
占地:270平方米
兩層半新農村別墅設計圖紙,CAD設計圖+高清效果圖
占地:90平方米
160平方米農村三層別墅CAD設計圖紙及效果圖,13.7x12.6米
占地:160平方米
辦公居住共用的一層別墅設計圖,簡約優雅,精致生活新體驗
占地:265.3平方米
農村20萬元二層小樓房設計圖,經典新農村自建房戶型
占地:120平方米
新農村復試兩層半樓房設計圖,帶大露臺,簡單經濟實用大氣
占地:190平方米
兩戶250平方米農村豪華歐式三層兄弟雙拼別墅設計圖
占地:251平方米
農村16萬一層平房小院設計圖,左右對稱布局好,南北方都能建
占地:195.9平方米
鄉村中式四合院二層別墅設計圖,中式韻味十足
占地:223平方米左右
180平方米新農村自建二層小別墅設計圖及效果圖,15X13米
占地:183平方米
農村別墅220-240平米的雙拼自建房設計圖,屋頂帶老虎窗
占地:220平方米
實用三層新農村住宅設計圖,鄉村別墅設計圖(含外觀效果圖)
占地:102.34平方米
推薦:10套新農村自建房設計圖,2026年最新設計
閱讀次數:4825737次
100套鄉村別墅圖片大全,2026年最新設計
閱讀次數:2492203次
6款農村蓋一層平房的設計圖,10萬元就能建起來
閱讀次數:1852637次
這11個一層農村自建房別墅火爆了朋友圈!我最喜歡戶型十!你呢
閱讀次數:750268次
農村6萬元建一層小別墅圖,你敢相信嗎
閱讀次數:567686次
農村5萬塊就能自建房,6套普通房子設計圖分享,你沒看錯!
閱讀次數:419410次
8套農村漂亮三間平房圖片,非常適合在農村修建!
閱讀次數:411197次
農村自建房化糞池怎么做?附方案及施工過程
閱讀次數:391783次
農村一層三間平房設計圖,告別土氣養老房,讓人忍不住點贊
閱讀次數:350581次
新農村二層樓房圖片造價12萬,挑一套回家建房吧!
閱讀次數:349126次
