
|
給大家推薦一款簡單實用的三層農村自建房,主體造價在20萬以內。一般的農村家庭都建的起,而且室內功能非常的齊全,合理舒適,空間利用率高。
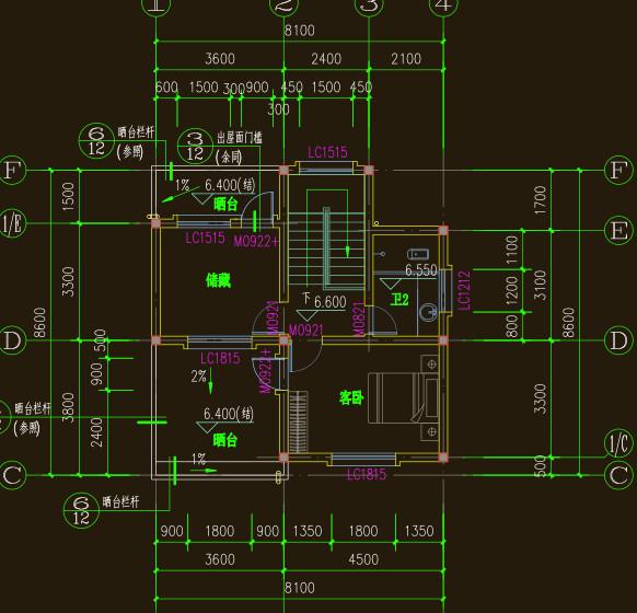
這款農村自建房開間8米,進深10.5米,建筑高度為9.7米,占地面積89.6平方米,建筑面積為194.94平方米,采用的是三層磚混結構。
房子有三層,一層為生活區,設計有堂屋,老人房、廚房、衛生間、儲藏間。
二層為休息區,設計有起居室,2間臥室和衛生間;三層設計有臥室,儲藏室、衛生間和屋頂露臺。
圖紙之家-專注農村別墅/自建房設計18年,集合國內200余位經驗豐富的設計師,被評為口碑最好的農村建筑設計公司! |

2026新款農村15萬元二層小樓圖,占地90平米左右
占地:多種戶型
高端大氣三層歐式別墅設計圖,客廳中空,旋轉樓梯
占地:150平方米
2026最新款獨棟中西雙餐廳三層別墅設計圖,精巧實用好看不貴
占地:226.12平方米
農村三層歐式別墅豪宅戶型圖設計方案,復式中空客廳+旋轉樓梯
占地:134.84平方米
農村三層半別墅設計圖及外觀效果圖,三層半樓房設計方案推薦
占地:100平方米
農村25萬別墅款式二層自建房設計圖,外觀圖時尚
占地:115平方米
二層歐式小別墅設計方案,全套建筑設計圖紙+外觀效果圖
占地:146平方米
鄉下一層自建養老平房戶型圖及全套圖紙,占地面積200左右
占地:200平方米
面寬不到8米的農村二層半別墅建筑圖紙及效果圖
占地:96平方米左右
平屋頂現代風格三層蓋別墅設計圖紙,面寬18米
占地:235.34平方米
歐式三層樓中樓別墅設計圖紙帶車庫(含外觀效果圖)
占地:130平方米
氣派的帶旋轉樓梯三層別墅房屋設計圖,戶型很好
占地:150平方米
最美中式農村別墅二層三間的房子圖,帶土灶房,娛樂室,大露臺
占地:180平方米
農村二層樓簡單大氣的樓房設計圖紙,帶車庫,帶露臺
占地:150平方米
時尚的農村二層別墅圖紙設計,現代風格,簡約的外觀
占地:152平方米左右
260平方米仿歐式二層別墅設計圖紙及效果圖,22X12米
占地:260平方米
120平方米三層歐式別墅設計圖,進門就是旋轉樓梯
占地:119.76平方米
2026農村漂亮的一層平房圖片平面圖與全套施工圖紙,戶型周正
占地:150平方米
農村兩間三層房屋設計圖,含外觀圖片
占地:120平方米
農村實用型一層半樓房圖片效果圖,占地140平米左右
占地:140平方米
推薦:10套新農村自建房設計圖,2026年最新設計
閱讀次數:4825737次
100套鄉村別墅圖片大全,2026年最新設計
閱讀次數:2492203次
6款農村蓋一層平房的設計圖,10萬元就能建起來
閱讀次數:1852637次
這11個一層農村自建房別墅火爆了朋友圈!我最喜歡戶型十!你呢
閱讀次數:750268次
農村6萬元建一層小別墅圖,你敢相信嗎
閱讀次數:567686次
農村5萬塊就能自建房,6套普通房子設計圖分享,你沒看錯!
閱讀次數:419410次
8套農村漂亮三間平房圖片,非常適合在農村修建!
閱讀次數:411197次
農村自建房化糞池怎么做?附方案及施工過程
閱讀次數:391783次
農村一層三間平房設計圖,告別土氣養老房,讓人忍不住點贊
閱讀次數:350581次
新農村二層樓房圖片造價12萬,挑一套回家建房吧!
閱讀次數:349126次
