
|
很多人都考慮過攢了大半生的積蓄到底是該在城市買商品房,還是回農村自建房,想了半天,發現魂牽夢繞的依舊是故土。咱們農村人不管離鄉多久,不管外面的世界多繁華,對家鄉的那份情永遠不變,永遠藏在內心的最深處。 今天我們的主角也是同樣,放不下與家鄉的那份羈絆,選擇回鄉自建房。
遠看這套3層小別墅還是十分大氣,規劃了個前院栽種綠植,可見房主對生活品質的追求。 簡歐式的別墅風格在農村來說十分普見,也能被大部分農村人接受。拱形門廳與窗戶、花瓶式弧形陽臺圍欄、羅馬柱、歐式浮雕的裝飾,使別墅既大氣又不乏時尚感。
內部布局上1樓設置門廳、客廳、廚房、餐廳、儲藏間、公衛還有雙臥室,其中一間朝陽臥室設置了獨衛,另一間也緊挨公衛,生活上比較方便。
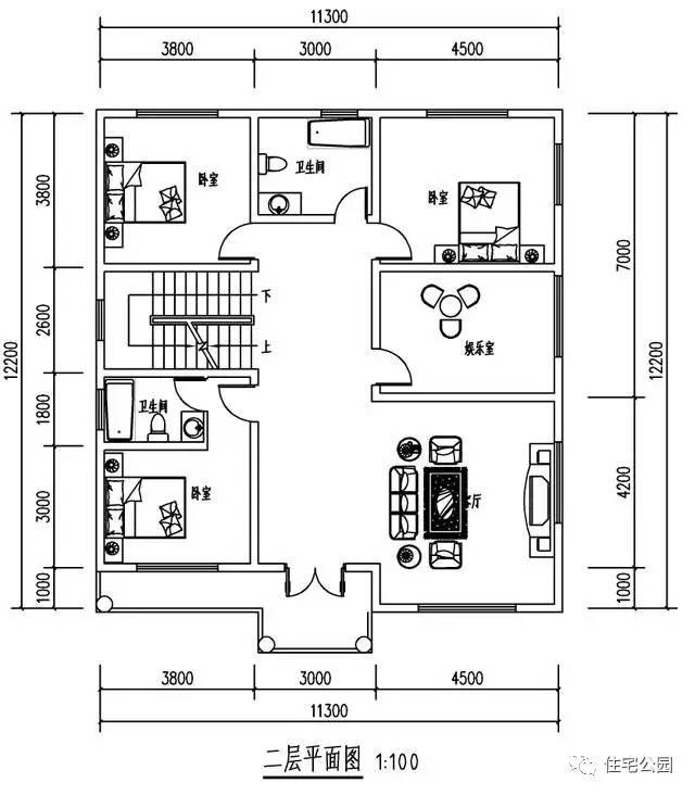
2樓作為主要的居住空間,設置了3間臥室,客廳、娛樂室和公衛。
3樓與2樓布局無異,這樣布置可供宅基地不夠但兄弟姊妹多的農村家庭居住,或是供子女日后居住使用。 圖紙之家-專注農村別墅/自建房設計18年,集合國內200余位經驗豐富的設計師,被評為口碑最好的農村建筑設計公司! |

農村一層中式三合院別墅設計圖,戶型經典實用,19米乘15米
占地:243.21平方米
面寬18米二層農村大別墅設計圖,可帶電梯,舒適又實用
占地:138.29平方米
農村現代新中式三合院設計圖及效果圖片,外觀好看極了
占地:多戶型可選
農村自建二層樓房設計圖及效果圖,二層房屋圖推薦
占地:105平方米
二層樓房設計圖,占地120平米左右,符合現代農村的建房政策
占地:120平方米
七字型設計新中式一層別墅設計圖,類合院風格
占地:267.3平方米
新款農村三層雙拼聯體別墅戶型圖,客廳中空,單戶120平米左右
占地:240平方米
帶閣樓的二層半別墅設計圖和效果圖,外飾簡單但不失奢華
占地:210平方米
帶小院新農村房屋設計圖紙,三層別墅推薦
占地:115平方米
農村40萬房子圖片外觀設計效果圖,帶地下室,外觀時尚大氣
占地:110平方米
對稱設計二層歐式別墅設計圖,優雅時尚有品位
占地:151.85平方米
新農村三層帶露臺自建房設計施工圖,農村自建別墅推薦
占地:112平方米
實用三層新農村住宅設計圖,鄉村別墅設計圖(含外觀效果圖)
占地:102.34平方米
超漂亮的二層別墅設計圖,外觀對稱設計,建好很大氣
占地:255平方米
110平左右二層小洋樓設計圖,含效果圖片
占地:108平方米
中式一層仿古自建平房設計圖,灰墻青瓦,外觀古香古色
占地:168.48平方米
鄉村高檔四層豪華別墅自建房設計圖,一層不帶餐廳廚房戶型
占地:147平方米
三層帶車庫農村別墅設計圖紙(含外觀效果圖)
占地:147.7平方米
二層半大客廳復式別墅房屋設計圖,客廳寬闊明亮
占地:125平方米
帶閣樓的一層半平房設計圖,比樓房還舒適,12米×13米
占地:170.1平方米
推薦:10套新農村自建房設計圖,2026年最新設計
閱讀次數:4825737次
100套鄉村別墅圖片大全,2026年最新設計
閱讀次數:2492203次
6款農村蓋一層平房的設計圖,10萬元就能建起來
閱讀次數:1852637次
這11個一層農村自建房別墅火爆了朋友圈!我最喜歡戶型十!你呢
閱讀次數:750268次
農村6萬元建一層小別墅圖,你敢相信嗎
閱讀次數:567686次
農村5萬塊就能自建房,6套普通房子設計圖分享,你沒看錯!
閱讀次數:419410次
8套農村漂亮三間平房圖片,非常適合在農村修建!
閱讀次數:411197次
農村自建房化糞池怎么做?附方案及施工過程
閱讀次數:391783次
農村一層三間平房設計圖,告別土氣養老房,讓人忍不住點贊
閱讀次數:350581次
新農村二層樓房圖片造價12萬,挑一套回家建房吧!
閱讀次數:349126次
