
|
記得以前農村基本上家家戶戶都養豬,會留一頭豬等過年的時候殺。豬是自己家養的,吃的都是純天然的食物,所以豬肉也特別的香,每次殺豬的時候,村子里家家戶戶都會過來幫忙,或著等著稱點土豬肉,好回家過年。但是現在農村都很少有人家養豬了,而以前村子里家家戶戶有豬圈也將成為了歷史。如果你的家里還養了豬,如果以后想養豬,吃到正宗的土豬肉,這套小別墅圖紙的戶型可以看看,帶豬圈,還有一個小小的院子,足夠農村過自給自足的生活。
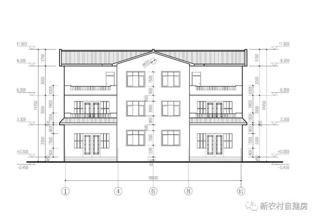
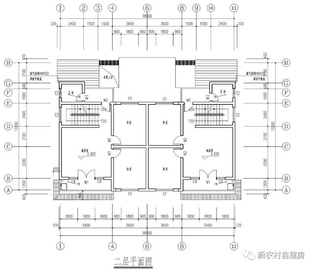
開間18米,進深13.2米,占地面積238平方米,建筑面積529平方米,三層磚混結構,主體造價35萬左右。
平面布局 一層:臥室、客廳、儲藏室、衛生間、雞舍、豬圈、后院; 二層:2臥室、起居室(帶陽臺)、衛生間; 三層:臥室、糧倉、衛生間、曬臺。
圖紙之家-專注農村別墅/自建房設計18年,集合國內200余位經驗豐富的設計師,被評為口碑最好的農村建筑設計公司! |

?13.5x9米這尺寸火了!好多人家照著建這款二層別墅,簡單實用
占地:115.11平方米
中式徽派二層農村別墅設計圖,白墻黛瓦馬頭墻,永不過時
占地:171平方米
適合回鄉建的三合院平房設計圖,舒適又接地氣
占地:213.96平方米
2026二層農村新款別墅戶型圖,占地不到110平米
占地:110平方米
二層美式自建別墅設計圖,全套施工圖+外觀效果圖
占地:145平方米
農村三層別墅設計圖紙,造價50萬左右,中式風格,沉穩內斂
占地:160平方米
150平米簡歐三層農村別墅設計圖,低調又奢華
占地:151.2平方米
四合院別墅設計效果圖及平面圖,全套施工圖紙
占地:220平方米
160平方米農村二層別墅設計效果圖帶CAD建筑圖
占地:160平方米
170平方米新農村實用的三層雙拼設計圖紙,帶公用堂屋!
占地:173.62平方米
小型四合院二層別墅設計圖方案,對稱設計,頂層大露臺
占地:114平方米
農村三層私人住宅設計圖紙及效果圖,帶車庫,帶露臺
占地:150平方米
預算10萬左右新農村自建房屋設計圖紙,帶效果圖
占地:82平方米
面寬16米方正實用二層別墅設計圖,中式風格不輸村里的別墅洋房
占地:182.82平方米
二開間二層別墅設計圖,面寬9米,不可多得的好選擇!
占地:93.24平方米
20萬左右普通農村房子設計圖,二層簡約小別墅
占地:140平方米
農村一層四開間養老別墅設計圖,造型美布局佳
占地:164.27平方米
農村小戶型二層房屋別墅設計圖,帶外觀效果圖
占地:95平方米
好看的三層樓別墅圖片及全套建筑施工設計圖紙
占地:多種戶型
農村一層平房別墅設計圖,18米乘9米,實實在在的好戶型
占地:162平方米
推薦:10套新農村自建房設計圖,2026年最新設計
閱讀次數:4825737次
100套鄉村別墅圖片大全,2026年最新設計
閱讀次數:2492203次
6款農村蓋一層平房的設計圖,10萬元就能建起來
閱讀次數:1852637次
這11個一層農村自建房別墅火爆了朋友圈!我最喜歡戶型十!你呢
閱讀次數:750268次
農村6萬元建一層小別墅圖,你敢相信嗎
閱讀次數:567686次
農村5萬塊就能自建房,6套普通房子設計圖分享,你沒看錯!
閱讀次數:419410次
8套農村漂亮三間平房圖片,非常適合在農村修建!
閱讀次數:411197次
農村自建房化糞池怎么做?附方案及施工過程
閱讀次數:391783次
農村一層三間平房設計圖,告別土氣養老房,讓人忍不住點贊
閱讀次數:350581次
新農村二層樓房圖片造價12萬,挑一套回家建房吧!
閱讀次數:349126次
