
|
在農村房子設計圖建造過程中,門窗是房屋重要的組成部分。門窗按照制作材料分為:木門窗、鋼門窗、鋁合金門窗、塑鋼門窗等。其中木門窗制作方便,價格較低,但是防火性能和耐久性較差。其他材料的門窗也各有優缺點,因根據不同的實用部位進行選擇。 第一套別墅設計圖:
圖紙編號:TC3101;建筑層數:3層;占地面積:131.74平方米;建筑面積:361.85平方米;開間尺寸:12.5米;進深尺寸:11米;
第二套別墅設計圖:
圖紙編號:TC3118;建筑層數:3層;占地面積:127.21平方米;建筑面積:318.46平方米;開間尺寸:11.1米;進深尺寸:13.3米
鋁合金門窗強度高,透光面積大,單推拉形式的密閉性能較差,而平開形式比推拉形式構造復雜。塑鋼門窗密閉性能高于鋁合金,但是容易老化。在建房采購的時候要根據自己實際情況選購。 第三套別墅設計圖:
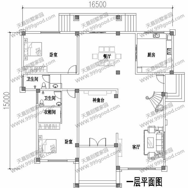
圖紙編號:TC395;建筑層數:3層;占地面積:215.83平方米;建筑面積:569.36平方米;開間尺寸:16.5米;進深尺寸:15米
圖紙之家-專注農村別墅/自建房設計18年,集合國內200余位經驗豐富的設計師,被評為口碑最好的農村建筑設計公司! |

11.5米乘 11.5米自建房:兩層設計 + 戶型方正,誰看誰心動
占地:128.77平方米
農村七字形獨棟一層別墅設計圖,設計感十足
占地:274.51平方米
帶露臺陽光房二層建房別墅設計圖,13米乘12米,享受農村悠然慢
占地:143.54平方米
210平左右三層(兩層半)雙拼新農村別墅設計圖紙及外觀效果圖
占地:206.712平方米
占地70平米一層小戶型別墅設計圖,功能齊全造價低,耐看實用
占地:70.19平方米
漂亮實用的新農村二層小樓圖,造價20萬左右,超大景觀露臺
占地:130平方米
歐式農村三層小別墅設計圖,占地120平米,客廳中空,空間利用率
占地:120平方米
五間兩層農村自建房設計圖,大門居中真氣派,空間寬敞生活質量
占地:219.94平方米
簡潔大氣140平方三層房子設計圖,帶車庫戶型極佳
占地:140平方米
中式復古四層別墅房屋設計圖紙,含外觀效果圖
占地:90平方米
三層農村小別墅設計圖,一層帶商鋪,占地110平米,經濟實用
占地:110平方米
新中式帶露臺30萬左右農村三層別墅,客廳中空
占地:110平方米
小型雙拼一層平房設計圖,外觀古樸
占地:100平方米
50萬左右農村三層別墅設計圖,歐式的外觀大氣沉穩
占地:150平方米
現代風平屋頂三層半農村小別墅設計圖,面寬僅7米
占地:90平方米
簡約精致的二層房子設計圖,農村自建經濟實用
占地:89.76平方米
新中式農村自建三層別墅房屋施工,12x10米簡潔雅致
占地:121.77平方米
最新小別墅設計圖,復式三層,外觀非常漂亮
占地:158平方米
新中式一層合院別墅圖,15米×15.8米,主體造價低至15萬
占地:183.08平方米
自建二層獨棟別墅建筑施工圖,含效果圖和全套設計圖紙
占地:198.72平方米
推薦:10套新農村自建房設計圖,2026年最新設計
閱讀次數:4825737次
100套鄉村別墅圖片大全,2026年最新設計
閱讀次數:2492203次
6款農村蓋一層平房的設計圖,10萬元就能建起來
閱讀次數:1852637次
這11個一層農村自建房別墅火爆了朋友圈!我最喜歡戶型十!你呢
閱讀次數:750268次
農村6萬元建一層小別墅圖,你敢相信嗎
閱讀次數:567686次
農村5萬塊就能自建房,6套普通房子設計圖分享,你沒看錯!
閱讀次數:419410次
8套農村漂亮三間平房圖片,非常適合在農村修建!
閱讀次數:411197次
農村自建房化糞池怎么做?附方案及施工過程
閱讀次數:391783次
農村一層三間平房設計圖,告別土氣養老房,讓人忍不住點贊
閱讀次數:350581次
新農村二層樓房圖片造價12萬,挑一套回家建房吧!
閱讀次數:349126次
