
|
中式建筑即具有中國傳統建筑特色的建筑,具有悠久的歷史,經久不衰。中式建筑帶有復古色彩,喜歡這種建筑形式的往往是比較戀舊的人,建一棟這樣的別墅建筑圖紙,再配上古色古香的裝飾,恍然有種回到古代的感覺。 效果圖
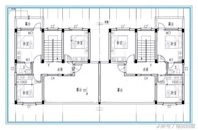
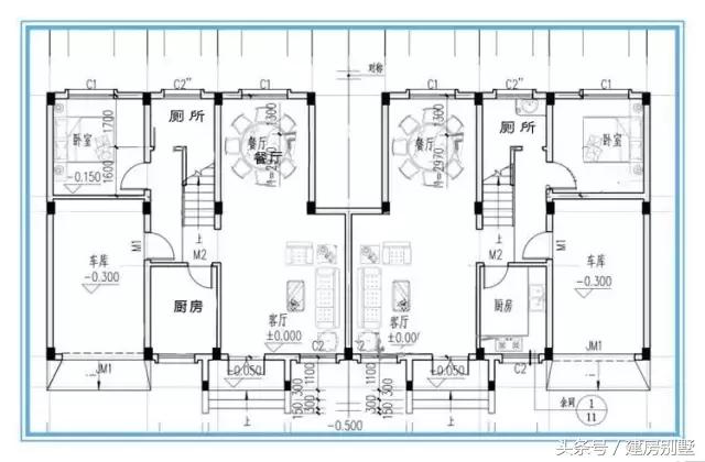
戶型基本信息 開間:20米,進深:9.8米; 占地面積:160.6平方米 建筑面積:434.96平方米 建筑高度:10.7米 結構類型:磚混結構 戶型特點: 1、青磚黛瓦白墻,既復古又經濟; 2、一層廁所放在樓梯下面,空間利用率極高; 3、房間數量多,極好的滿足農村生活需求; 4、二層設有小客廳,符合中國傳統建筑設計風格; 一層平面圖:
二層平面圖:
三層平面圖:
中式建筑,造型不夠復雜、色彩不夠絢麗,但是自有一股氣質,哪怕是淡雅的色調也自成一派,如果再搭配個院子,那就真有大隱隱于市的感覺了。 圖紙之家-專注農村別墅/自建房設計18年,集合國內200余位經驗豐富的設計師,被評為口碑最好的農村建筑設計公司! |

居家養老一層別墅設計圖,面寬20米,農村建一棟不吃虧
占地:259.7平方米
帶KTV的四開間的二層別墅設計圖,造型美觀經濟實用
占地:240.22平方米
對稱型歐式別墅設計圖,穩重實用,開間18米,適合全國農村建
占地:228.2 平方米
農村一層平房設計圖,人字坡戶型簡單大方,養老自住都不錯
占地:139.2平方米
三層樓房設計圖紙含效果圖,外觀造型高低錯落,別致大方
占地:152.4平方米
125平方米新農村三層自建別墅施工設計圖,13x10米
占地:125平方米
新農村自建三層復式結構房屋別墅設計圖紙及效果圖
占地:138平方米
100平內的三層豪華歐式別墅房屋設計圖紙 ,簡歐風格
占地:94平方米左右
13米開間的獨棟經濟型二層小別墅房屋設計圖,現代簡約
占地:150.39平方米
帶地下室的農村三層雙拼別墅設計圖,復式戶型,面寬23米
占地:261.6平方米左右
高端大氣的農村四層樓房別墅設計圖,戶型真不錯,占地130多平
占地:135.31平方米
占地80平四層平頂別墅設計圖,現代風房子效果圖
占地:80平方米
回村蓋一層養老房別墅設計圖紙,面寬16米四開間戶型圖
占地:127平方米左右
80多平米二層小型自建房設計圖,經濟舒適別具一格
占地:84.48平方米
私人二層中式四合院別墅建筑設計圖,新農村經濟實用戶型
占地:145平方米
120平現代實用三層別墅房屋設計圖,含外觀效果圖
占地:120平方米
80平方米三層農村自建民房設計圖,小戶型別墅方案
占地:81平方米
11x9三層別墅房屋設計圖,含效果圖片
占地:97平方米
農村15萬元二層小樓設計圖,造價低,簡潔、好看
占地:90平方米
140平方米現代偏中式實用型三層房屋設計圖紙,新農村建房推薦
占地:142平方米
推薦:10套新農村自建房設計圖,2026年最新設計
閱讀次數:4825737次
100套鄉村別墅圖片大全,2026年最新設計
閱讀次數:2492203次
6款農村蓋一層平房的設計圖,10萬元就能建起來
閱讀次數:1852637次
這11個一層農村自建房別墅火爆了朋友圈!我最喜歡戶型十!你呢
閱讀次數:750268次
農村6萬元建一層小別墅圖,你敢相信嗎
閱讀次數:567686次
農村5萬塊就能自建房,6套普通房子設計圖分享,你沒看錯!
閱讀次數:419410次
8套農村漂亮三間平房圖片,非常適合在農村修建!
閱讀次數:411197次
農村自建房化糞池怎么做?附方案及施工過程
閱讀次數:391783次
農村一層三間平房設計圖,告別土氣養老房,讓人忍不住點贊
閱讀次數:350581次
新農村二層樓房圖片造價12萬,挑一套回家建房吧!
閱讀次數:349126次
