
|
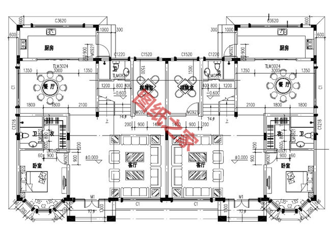
現在的農村,宅基地審批越來越嚴,不少家里有2個兄弟的家庭,只能審批一塊宅基地,這種情況下,大部分家里會選擇建造一棟雙拼別墅,既節約宅基地,兄弟倆住又不會互相影響。 小編這次給大家介紹的是一棟高端、氣派的三層雙拼別墅,外觀高端、大氣,戶型布局合理、實用,漂亮的歐式構件和經典低調的配色帶給人強烈的視覺沖擊,一句話:太氣派啦。 占地面積:21.4m*13.9m,300平方米左右,單棟150平左右; 建筑層高:三層; 建筑高度:12.57米(含屋頂); 設計功能: 其中一棟的戶型 一 層:客廳、餐廳、廚房、主臥(帶衛生間和衣帽間)、棋牌室、衛生間; 二 層:客廳、主臥(帶衛生間和衣帽間)、臥室x2、衛生間、露臺; 三 層:臥室、書房、衣帽間(或儲藏間)、衛生間、大露臺;
歐式風格的外觀,藍色的屋頂,黃色的墻面,配合在一起非常耐看,整體看起來大氣,漂亮。
一層的大客廳可以招待客人,客廳面積較大,空間充足,有面子,大餐廳和廚房的位置也很好。
二層主要用于居住,起居室+3個臥室,其中1個臥室帶衣帽間和衛生間,主人居住。
三層的大露臺,提供多種生活場景,豐富農村生活,書房可以做為大臥室,小臥室改成書房也是比較好的方案。
兄弟,簡單的兩個字卻承載著無法割舍的感情,血脈的相連更是無法切割的親情,漫漫人生路,彼此相扶相伴,也是人生一件美事。 圖紙之家-專注農村別墅/自建房設計18年,集合國內200余位經驗豐富的設計師,被評為口碑最好的農村建筑設計公司! |

造價40萬內三層別墅房屋設計方案,設計圖+外觀效果圖
占地:150平方米
新農村一層平屋頂簡單自建房別墅設計圖紙,全套設計
占地:130平方米
230平方米新農村二層自建別墅設計圖紙帶外觀圖,20X11米
占地:227平方米
最實用中式一層三合院別墅設計圖,簡約精致布局實用
占地:162.49平方米
三層新中式別墅建筑設計圖紙及圖片,11.66m*9.76m,典雅耐看
占地:114平方米
一層農村自建房設計,背面不開窗,15乘10米,內部布局實用
占地:多戶型可選
挑空客廳戶型歐式二層別墅設計圖紙,高端大氣帶車庫
占地:236.09平方米
農村二層半別墅設計圖,簡單實用,造價低
占地:140平方米
四層巴洛克別墅設計圖,旋轉樓梯搭配超大挑空客廳,很有氣勢
占地:146平方米
最新款二層半別墅圖片,占地115平米左右,帶地下室,帶露臺
占地:115平方米
農村三間二層別墅設計圖,外觀簡約左右對稱
占地:170.06平方米
100平米兩間三層樓房設計圖,農村蓋房舒服實用最重要
占地:100平方米
農村二層舒適好房,這款四開間別墅設計圖真的很不錯
占地:220.46平方米
農村四層樓房設計圖,含外觀圖片,自建四層房屋推薦
占地:140平方米
復式三層雙拼別墅設計圖,客廳中空,旋轉樓梯
占地:350平方米
農村二層半新中式小別墅設計圖(帶閣樓層),二層半自建房戶型
占地:144平方米
140平方米兩層別墅CAD設計圖紙及效果圖,13x11米
占地:138平方米
簡單經濟一層自建養老房,12米乘9.5米,溫暖舒適施工簡單
占地:103.2平方米
帶地下室三層復式別墅設計方案,全套設計圖+效果圖
占地:168平方米
15×12米一層農村寶藏戶型,適合養老房,看完鄰居直接要圖紙!
占地:180平方米
推薦:10套新農村自建房設計圖,2026年最新設計
閱讀次數:4825737次
100套鄉村別墅圖片大全,2026年最新設計
閱讀次數:2492203次
6款農村蓋一層平房的設計圖,10萬元就能建起來
閱讀次數:1852637次
這11個一層農村自建房別墅火爆了朋友圈!我最喜歡戶型十!你呢
閱讀次數:750268次
農村6萬元建一層小別墅圖,你敢相信嗎
閱讀次數:567686次
農村5萬塊就能自建房,6套普通房子設計圖分享,你沒看錯!
閱讀次數:419410次
8套農村漂亮三間平房圖片,非常適合在農村修建!
閱讀次數:411197次
農村自建房化糞池怎么做?附方案及施工過程
閱讀次數:391783次
農村一層三間平房設計圖,告別土氣養老房,讓人忍不住點贊
閱讀次數:350581次
新農村二層樓房圖片造價12萬,挑一套回家建房吧!
閱讀次數:349126次
