
|
農村自建房中面積太大和太小的都不多,面積小了住著不舒服,面積大了房屋造價也高,所以一般的房子都是120、130平米左右。所以農村中這個大小的戶型是最多的,如果能設計得簡約實用、美觀實惠就更受歡迎了。今天給大家分享5套實用美觀的120平農村三層別墅,分別是10X12、12X10米兩種尺寸,造價只要30多萬! 第一套
正面效果圖
背面效果圖
鳥瞰效果圖 占地面積:10.0m*12.0m,一層占地120平方米左右(含外門庭); 建筑層高:三層; 建筑高度:12.0米(含屋頂); 設計功能: 一 層:客廳、廚房、餐廳、臥室(帶衛生間)、臥室、儲藏室、衛生間; 二 層:客廳、臥室(帶衛生間)、臥室x2、書房、衛生間、露臺; 三 層:臥室x3、書房、衛生間、大露臺;
一層平面圖
二層平面圖
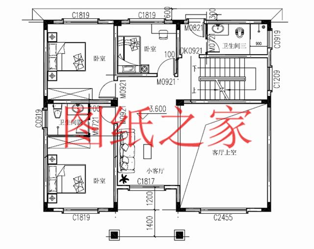
三層平面圖 第二套
正面效果圖
背面效果圖
鳥瞰效果圖 占地面積:11.8m*9.9m,一層占地120平方米左右; 建筑層高:三層; 建筑高度:12.7米(含屋頂); 設計功能: 一 層:客廳、廚房、餐廳、臥室(帶衛生間)衛生間; 二 層:客廳上空、小客廳、臥室(帶衛生間)、臥室x2、衛生間; 三 層:小客廳、臥室(帶衛生間)、臥室x2、衛生間、大露臺、陽臺;
一層平面圖
二層平面圖
三層平面圖 第三套
正面效果圖
背面效果圖
鳥瞰效果圖 占地面積:10.6m*12.2m,一層占地120平方米左右; 建筑層高:三層; 建筑高度:14.03米(含屋頂); 設計功能: 一 層:客廳、廚房、餐廳、臥室、衛生間、儲藏間、車庫(不需要車庫可以做成臥室); 二 層:客廳、臥室(帶衛生間)、臥室x2、書房、衛生間、陽臺; 三 層:客廳、臥室(帶書房、衛生間、陽臺)、臥室、書房、衛生間、陽臺; 閣 樓:功能自定義;
一層平面圖
二層平面圖
三層平面圖
四層平面圖 第四套
正面效果圖
背面效果圖
鳥瞰效果圖 占地面積:12.5m*11.0m,一層占地110平方米左右; 建筑層高:三層; 建筑高度:12.48米(含屋頂); 設計功能: 一 層:客廳、廚房、餐廳、臥室(帶衛生間)、洗衣間、衛生間; 二 層:客廳上空、家庭室、臥室(帶衣帽間、衛生間、露臺)、臥室(帶衛生間)、露臺; 三 層:臥室(帶衣帽間、衛生間)、臥室(帶衛生間、衣帽間、書房、露臺)、露臺;
一層平面圖
二層平面圖
三層平面圖 第五套
別墅效果圖 占地面積:10m*11.9m,120平方米左右; 建筑層高:三層; 建筑高度:12.35米(含屋頂); 設計功能: 一 層:客廳、廚房、餐廳、老人房、衛生間、庭院; 二 層:客廳、主臥室、臥室x2; 三 層:臥室x3、衛生間、露臺;
一層平面圖
二層平面圖
三層平面圖 這幾套別墅的設計圖,你最喜歡哪一套? 圖紙之家-專注農村別墅/自建房設計18年,集合國內200余位經驗豐富的設計師,被評為口碑最好的農村建筑設計公司! |

私家二層農村自建房設計圖及效果圖,造價20萬左右
占地:125平方米
一層帶地下室雙拼別墅設計圖,理想鄉村生活的標配
占地:416平方米
三層現代簡約農村雙拼小別墅圖,好看精致,開間17米
占地:187平方米
農村簡單雙拼小戶型,簡單適用,客廳中空,總占地210平方米
占地:210平方米
農村自建三間三層樓房設計圖,帶露臺,經典實用
占地:135平方米
新農村住宅設計圖紙含效果圖,方方正正的別墅方案
占地:134平方米左右
大戶型三層別墅設計圖,高貴大氣,占地面積將近300平
占地:273.33平方米
簡單大氣的農村二層樓設計圖,二層歐式農村別墅設計圖
占地:180平方米
帶架空層的三層農村別墅設計火了!雨季不怕返潮
占地:147.15平方米
140平方米兩層別墅CAD設計圖紙及效果圖,13x11米
占地:138平方米
被包工頭夸爆的二層別墅戶型!建好未來幾年必火
占地:189.98平方米
帶地下室的一層別墅設計圖,農村自建房比較合適
占地:206平方米
大二間三層別墅戶型圖,三層新農村自建房設計圖紙及效果圖
占地:116平方米
農村帶地下室二層半自建房屋設計圖,樓中樓設計,歐式風格
占地:140平方米
農村2026新式好看又簡單的二層樓房設計圖,外形美觀,家用足夠
占地:200平方米
新農村四層獨棟復式別墅設計圖,設計豪華時尚
占地:140平方米
面寬13米二層新農村別墅自建房設計圖,功能實用,外觀大氣
占地:168.96平方米
地中海風格二層別墅設計圖及效果圖,外觀有格調
占地:125平方米
2026新款農村15萬元二層小樓圖,占地90平米左右
占地:多種戶型
堂屋共用五間雙拼別墅設計圖,適合二兄弟的二層別墅
占地:292.5平方米左右
推薦:10套新農村自建房設計圖,2026年最新設計
閱讀次數:4825737次
100套鄉村別墅圖片大全,2026年最新設計
閱讀次數:2492203次
6款農村蓋一層平房的設計圖,10萬元就能建起來
閱讀次數:1852637次
這11個一層農村自建房別墅火爆了朋友圈!我最喜歡戶型十!你呢
閱讀次數:750268次
農村6萬元建一層小別墅圖,你敢相信嗎
閱讀次數:567686次
農村5萬塊就能自建房,6套普通房子設計圖分享,你沒看錯!
閱讀次數:419410次
8套農村漂亮三間平房圖片,非常適合在農村修建!
閱讀次數:411197次
農村自建房化糞池怎么做?附方案及施工過程
閱讀次數:391783次
農村一層三間平房設計圖,告別土氣養老房,讓人忍不住點贊
閱讀次數:350581次
新農村二層樓房圖片造價12萬,挑一套回家建房吧!
閱讀次數:349126次
