
|
在迅速發展的現在,農村建房已經發生了翻天覆地的變化,破舊漏雨的磚瓦房早已經被一棟棟嶄新別致的別墅替代。如果你也眼紅、羨慕別人家的房子,那么明年開春天氣好的時候抓緊建一棟。今天要推薦的就是4套南北都適用的別墅,看看能不能吸引你的眼球呢? 戶型一
大氣雍容的歐式三層別墅,整體采用深色系外墻裝飾,簡約又生動。戶型設計尺寸:開間14.4米,進深16.15米,占地面積185平方米。室內一共設計7個臥室,二層有帶內衛的套間,同時設有棋牌室和儲藏室,一層設計有堂屋,三層有公共露臺,整體布局清晰明了,豐富生活。
戶型二
傳承經典的中式風格,將黛瓦白墻、木藝窗棱等元素符號,用別具一格的現代手法表現出來,成了更適合現代人居住的新中式別墅。戶型設計:開間13.5米,進深11米,占地面積126.8平方米。一共設計6間臥室,上下兩個客廳,一層帶有車庫和農具間,老人房帶有內衛。二層主臥帶有內衛,兩個次臥,客廳非常大寬敞明亮,三層有二間臥室和衛生間,另有一個超大的屋頂露臺。
戶型三
這個戶型配色鮮明,給人眼前一亮的感覺,外墻用文化石和瓷磚裝飾,屋頂和外墻的顏色分明,入戶設計了一個高挑的門廊。戶型尺寸:開間11米,進深13.2米,占地面積145平方米。上下三層一共有6間臥室,一層功能多樣化,設計了廚房、餐廳、客廳、臥室和儲藏室,二層設計有3間臥室,屋頂還有超大露臺和精致小陽臺,注重生活品質的人一定不能錯過這一款。
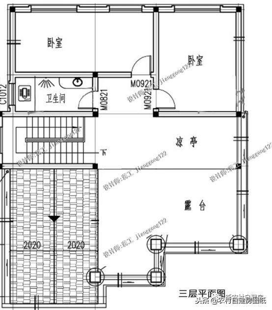
戶型四
這款別墅不管是造型還是配色都十分注重質感和設計感,坡屋頂和斜屋頂的結合,陽臺間豐富立面造型,讓整棟建筑層次感豐富。配色上給人溫馨舒適的、典雅大氣之感。
戶型設計:開間11.94米,進深13.64米,占地面積142.18平方米。進門就是大堂,旁邊連接客廳和休閑廳,整個空間利用恰當,旋轉樓梯大氣上檔次,另有棋牌室豐富娛樂生活。
二樓的主臥帶有衣帽間和衛生間,另有次臥室帶有書房。三樓的多功能大廳非常實用,健身室或者影音室功能可以根據每個家庭的需要來布局。 圖紙之家-專注農村別墅/自建房設計18年,集合國內200余位經驗豐富的設計師,被評為口碑最好的農村建筑設計公司! |

獨立餐廳廚房,平屋頂現代風格三層別墅設計圖
占地:159.02平方米
130平方米現代簡約農村兩層樓房施工設計圖紙帶外觀圖
占地:126平方米
占地130平方米中式二層小樓房設計圖紙,農村自建戶型實用
占地:136.04平方米
帶地下室設計三層自建房別墅設計圖,復式挑空客廳
占地:192平方米
豪華歐式三層別墅住宅設計圖紙,占地面積150平方米
占地:150平方米
2026年簡單實用二層農村別墅,經典大氣真的香
占地:165.98平方米
鄉村典型自建房中式二層四合院別墅設計圖,左右對稱設計
占地:430平方米
漂亮實用三層自建別墅設計圖紙,超高的性價比
占地:160平方米
南方新農村三層房屋設計圖大全,預算30萬內
占地:145平方米
農村一層中式三合院戶型設計圖,造型古香古色
占地:215平方米左右
90平-100平小戶型一層三間平房農村別墅設計圖方案戶型
占地:多戶型可選
現代別墅設計圖紙帶效果圖,85平、100平、145平三個戶型方案
占地:多種戶型
最漂亮的農村二層小樓房自建別墅設計圖紙及效果圖
占地:168平方米
小型三層別墅cad建筑圖紙帶效果圖,帶屋頂露臺
占地:101平方米左右
農村現代三層建房子設計圖及圖片,平屋頂的設計
占地:150平方米
兩層半新農村別墅設計圖紙,CAD設計圖+高清效果圖
占地:90平方米
獨棟歐式三層農村實用樓房設計圖,外觀圖大氣,13×13米
占地:144.75平方米
高端農村三層歐式房屋設計圖紙,帶車庫,帶露臺
占地:163平方米
一層農村自建房設計,背面不開窗,15乘10米,內部布局實用
占地:多戶型可選
現代三層農村民房設計圖及圖片,外觀高端、大氣
占地:196平方米
推薦:10套新農村自建房設計圖,2026年最新設計
閱讀次數:4825737次
100套鄉村別墅圖片大全,2026年最新設計
閱讀次數:2492203次
6款農村蓋一層平房的設計圖,10萬元就能建起來
閱讀次數:1852637次
這11個一層農村自建房別墅火爆了朋友圈!我最喜歡戶型十!你呢
閱讀次數:750268次
農村6萬元建一層小別墅圖,你敢相信嗎
閱讀次數:567686次
農村5萬塊就能自建房,6套普通房子設計圖分享,你沒看錯!
閱讀次數:419410次
8套農村漂亮三間平房圖片,非常適合在農村修建!
閱讀次數:411197次
農村自建房化糞池怎么做?附方案及施工過程
閱讀次數:391783次
農村一層三間平房設計圖,告別土氣養老房,讓人忍不住點贊
閱讀次數:350581次
新農村二層樓房圖片造價12萬,挑一套回家建房吧!
閱讀次數:349126次
