
|
25萬140㎡2廳5室帶堂屋二層實用漂亮農村自建房施工圖水電齊
效果圖 層數:二層 開間:13.2米 進深:10.5米 首層占地面積:144.35平方米 總建筑面積:264.21平方米 結構形式:磚混結構 主體造價:25萬 功能設計
一層平面圖 一層:堂屋、客廳、廚房、餐廳、臥室×2、公衛
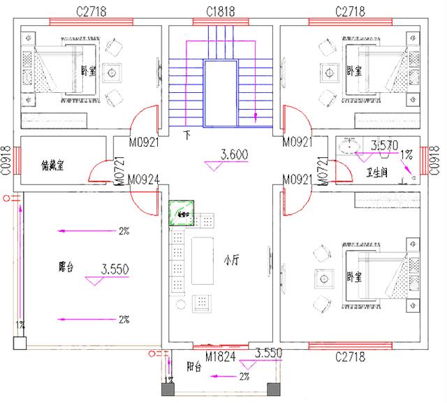
二層平面圖 二層:小廳(帶陽臺)、臥室×3、露臺、公衛、儲藏間 其他5款別墅效果圖展示:
1
2
3
4
5
圖紙之家-專注農村別墅/自建房設計18年,集合國內200余位經驗豐富的設計師,被評為口碑最好的農村建筑設計公司! |

二層樓房圖片及施工圖紙,占地160平米左右,帶車庫
占地:160平方米
農村二層小樓的設計圖紙,整體外觀凹凸有致,紅色的坡面屋頂
占地:180平方米
L“型”一層自建房小平層設計圖紙,180平方米
占地:179.355平方米
樓中樓客廳挑高二層別墅設計圖,復式別墅方案推薦
占地:122平方米
農村一層養老別墅設計圖,兩個戶型方案可選
占地:多種戶型
帶電梯農村建房三層小洋樓,樓中樓結構,帶露臺
占地:110平方米
農村二層住宅設計圖,大窗戶客廳,一起享受大面積采光的溫暖
占地:220平方米
鄉下三層大氣房子設計圖,外觀挺高大上的,主體29萬多
占地:132.48平方米
雙拼豪華高端三層別墅設計圖,外觀效果圖大氣
占地:300平方米
二層現代風格雙拼別墅設計圖,平屋頂,帶地下室設計
占地:192.47平方米
鄉村高檔四層豪華別墅自建房設計圖,一層不帶餐廳廚房戶型
占地:147平方米
最漂亮的一層平房圖片及設計圖,造價18萬左右,結構簡單易于施
占地:186平方米
帶獨立廚房的二層自建房設計圖,大戶型方案
占地:233平方米
帶堂屋二層小別墅設計圖紙帶外觀圖,13.6米x9米
占地:122.4平方米
90平農村自建房二層新款,占地不大但很實用,
占地:88平方米
100平方建房子設計圖及效果圖,簡單實用的戶型設計
占地:97.3平方米
三層小別墅40萬造價,大氣農村三層新中式自建房設計圖紙
占地:171.656平方米
新式帶挑空客廳三層鄉村別墅設計圖,占地170平左右
占地:170平方米
三間三層房子設計圖,高端三層樓房設計圖,三層兩個大露臺
占地:170平方米
140平米二層半帶露臺別墅圖片及圖紙,戶型極佳
占地:140平方米
推薦:10套新農村自建房設計圖,2026年最新設計
閱讀次數:4825737次
100套鄉村別墅圖片大全,2026年最新設計
閱讀次數:2492203次
6款農村蓋一層平房的設計圖,10萬元就能建起來
閱讀次數:1852637次
這11個一層農村自建房別墅火爆了朋友圈!我最喜歡戶型十!你呢
閱讀次數:750268次
農村6萬元建一層小別墅圖,你敢相信嗎
閱讀次數:567686次
農村5萬塊就能自建房,6套普通房子設計圖分享,你沒看錯!
閱讀次數:419410次
8套農村漂亮三間平房圖片,非常適合在農村修建!
閱讀次數:411197次
農村自建房化糞池怎么做?附方案及施工過程
閱讀次數:391783次
農村一層三間平房設計圖,告別土氣養老房,讓人忍不住點贊
閱讀次數:350581次
新農村二層樓房圖片造價12萬,挑一套回家建房吧!
閱讀次數:349126次
