
|
30萬以內300㎡2廳5室帶走廊堂屋書房二層自建房設計圖全套
正面效果圖 層數:二層 開間:14.1米 進深:12.4米 首層占地面積:149.34平方米 總建筑面積:300.02平方米 結構形式:磚混結構 主體造價:27萬
俯視圖 功能設計
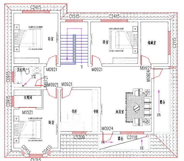
一層平面圖 一層:堂屋、客廳、廚房、餐廳、臥室×2、公衛
二層平面圖 圖紙之家-專注農村別墅/自建房設計18年,集合國內200余位經驗豐富的設計師,被評為口碑最好的農村建筑設計公司! |

農村三層樓房設計圖三層別墅圖片,占地面積135平米
占地:135平方米
造價低經濟簡單的二層農村自建房圖紙設計,簡潔實用
占地:136.08平方米
新款農村四層復式別墅設計圖紙及效果圖,外立面清新別致
占地:207平方米
帶車庫的農村四合院別墅設計圖,富貴人家的象征,日子越過越興
占地:219.24平方米
新農村三層房屋設計圖紙(含效果圖),農村小別墅圖紙推薦
占地:116.15平方米
鄉村高檔四層別墅樓設計圖,二三層復式挑空客廳
占地:148.992平方米
120平方兩層房子設計圖及圖片,外觀大方好看,內部結構合理
占地:120平方米
經濟實用二層復式樓房設計圖 ,占地150平方米,造價25萬左右
占地:150平方米
120平米農村40萬三層別墅自建房款式,簡歐風格
占地:120平方米
新中式農村50萬三層別墅款式圖,占地面積160平米左右
占地:150平方米
一層平房小面積雙拼房屋住宅設計圖,造價低,面積適中
占地:245.7平方米
中國最好看的二層農村房子圖片及施工圖紙,20萬現代風格
占地:130平方米
145平方米新農村二層別墅設計效果圖及施工圖,12.6米x11.4米
占地:147平方米
農村二層樓簡單大氣的樓房設計圖紙,帶車庫,帶露臺
占地:150平方米
農村兩間三層房屋設計圖,含外觀圖片
占地:120平方米
豪華大氣農村三層別墅圖紙,帶車庫、露臺,占地200平方米左右
占地:207平方米
雙拼小別墅設計圖紙(含效果圖),二層別墅設計方案精選
占地:130平方米
農村建房的“面子天花板”!新中式簡歐結合三層別墅,進門就被
占地:225.98平方米
260平方米兩層帶車庫四合院房屋設計圖紙及效果圖
占地:260平方米
新農村自建三層樓房設計圖紙,外觀簡單大方
占地:137平方米
推薦:10套新農村自建房設計圖,2026年最新設計
閱讀次數:4825737次
100套鄉村別墅圖片大全,2026年最新設計
閱讀次數:2492203次
6款農村蓋一層平房的設計圖,10萬元就能建起來
閱讀次數:1852637次
這11個一層農村自建房別墅火爆了朋友圈!我最喜歡戶型十!你呢
閱讀次數:750268次
農村6萬元建一層小別墅圖,你敢相信嗎
閱讀次數:567686次
農村5萬塊就能自建房,6套普通房子設計圖分享,你沒看錯!
閱讀次數:419410次
8套農村漂亮三間平房圖片,非常適合在農村修建!
閱讀次數:411197次
農村自建房化糞池怎么做?附方案及施工過程
閱讀次數:391783次
農村一層三間平房設計圖,告別土氣養老房,讓人忍不住點贊
閱讀次數:350581次
新農村二層樓房圖片造價12萬,挑一套回家建房吧!
閱讀次數:349126次
