
|
隨著新農村建房的業主越來越多,款式簡直是多樣化,各式各樣的。但是你有沒有發現,90%的房子建的都是歐式小別墅,咱們中式的很少,因為大家覺得中式占地面積大,并不適合農村建房,但是有一位湖南業主提出了蓋房新概念,他讓設計師把歐式的優點與中式的優點相結合,設計出了一款新中式別墅,這棟小別墅自從設計出圖后受到大家一致好評,得到多位業主喜愛,快來看看吧!
該款別墅為二層新中式農村別墅,造型簡潔大氣,沒有太多的外觀裝飾,干凈大方,一層獨立車庫,二層大露臺,傳統元素和現代功能需求相結合,既滿足當代的使用要求,又美觀得體,打造不一樣的審美觀,青山綠水之中,這樣的新中式別墅更顯情調,庭院,露臺,處處是景色。
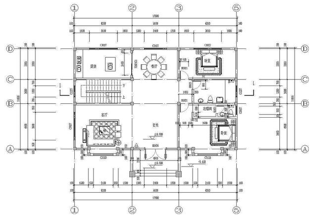
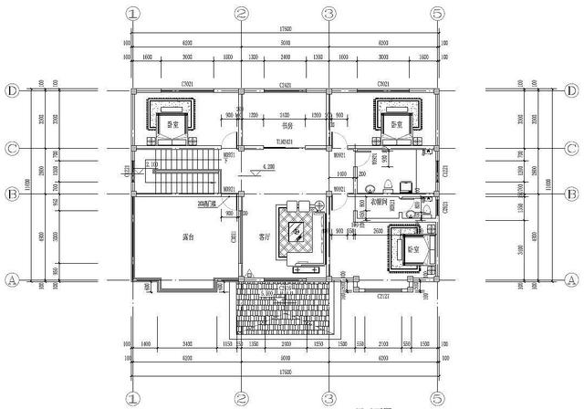
該款戶型面寬:17.6米,進深:11米,占地面積:197.68㎡,總建筑面積:364.49㎡ 結構形式:框架結構;
戶型平面介紹: 一層戶型:玄關、客廳、餐廳、廚房、臥室(含衣帽間)、臥室、衛生間; 二層戶型:客廳、書房、臥室(含衣帽間)、臥室×2、衛生間、露臺;
立面圖展示:
親們,覺得這套圖紙如何?歡迎評論。我們提供數千套自建別墅設計圖,讓您建房無憂。需要查看詳情或更多圖紙請關注【圖紙之家】或點擊下面圖片。 圖紙之家-專注農村別墅/自建房設計18年,集合國內200余位經驗豐富的設計師,被評為口碑最好的農村建筑設計公司! |

最接農村地氣的二層農村小別墅,造價30萬左右,經濟實用
占地:170平方米
120平方米農村四層別墅設計圖,含全套施工圖
占地:120平方米
農村四間房屋設計圖經典戶型,這樣設計美觀、實用
占地:169平方米
高端歐式四層別墅房屋施工圖紙及效果圖,圓弧大窗
占地:170平方米
240平農村二層自建別墅設計圖紙,帶你體驗家的溫馨
占地:240平方米
簡單實用新農村三層住宅房屋設計圖,時尚大氣,低調
占地:140平方米
帶商鋪挑高的三層別墅房屋設計圖,商鋪挑高,層高比較高
占地:118平方米
二層雙拼別墅外觀效果圖及施工圖,帶露臺,14乘12米
占地:168平方米
簡潔干練三層現代風平頂別墅設計圖,8X15米
占地:115.1平方米
新農村帶陽臺三層樓房圖紙,占地180平米左右,豪華大氣
占地:180平方米
120平米農村40萬三層別墅自建房款式,簡歐風格
占地:120平方米
90平方米農村二層房屋設計圖紙(施工圖+效果圖)
占地:90平方米
80平方米農村四層房屋設計圖紙及效果圖
占地:80平方米
人字坡房屋一層別墅設計圖,簡約低調超實用,、
占地:101.17平方米
經典二層農村自建房屋別墅設計圖紙,占地110平米左右
占地:110平方米
三層兩開間小面寬別墅設計圖紙帶外觀效果圖,95平方米
占地:94.61平方米
農村二層樓建房造型圖及全套施工圖紙,占地110平米左右,帶地下
占地:110平方米
農村四層樓房設計圖及外觀效果圖,造價60萬左右
占地:163.84平方米
廚房餐廳在配房的歐式三層農村別墅設計方案,華麗又宜居
占地:177.58平方米
回村蓋一層養老房別墅設計圖紙,面寬16米四開間戶型圖
占地:127平方米左右
推薦:10套新農村自建房設計圖,2026年最新設計
閱讀次數:4825737次
100套鄉村別墅圖片大全,2026年最新設計
閱讀次數:2492203次
6款農村蓋一層平房的設計圖,10萬元就能建起來
閱讀次數:1852637次
這11個一層農村自建房別墅火爆了朋友圈!我最喜歡戶型十!你呢
閱讀次數:750268次
農村6萬元建一層小別墅圖,你敢相信嗎
閱讀次數:567686次
農村5萬塊就能自建房,6套普通房子設計圖分享,你沒看錯!
閱讀次數:419410次
8套農村漂亮三間平房圖片,非常適合在農村修建!
閱讀次數:411197次
農村自建房化糞池怎么做?附方案及施工過程
閱讀次數:391783次
農村一層三間平房設計圖,告別土氣養老房,讓人忍不住點贊
閱讀次數:350581次
新農村二層樓房圖片造價12萬,挑一套回家建房吧!
閱讀次數:349126次
