
|
自建房第一步就是看懂建筑施工圖,沒有看懂施工圖就無法了解建筑的具體構造和施工要求,所以看懂建筑施工圖就顯得格外重要。
大體上建筑施工圖包括以下部分:圖紙目錄,門窗表,建筑設計總說明,一層~屋頂的平面圖,正立面圖,背立面圖,東立面圖,西立面圖,剖面圖(視情況,有多個),節點大樣圖及門窗大樣圖,樓梯大樣圖。下面就介紹下各類圖紙的作用: 1 圖紙目錄及門窗表 圖紙目錄是了解整個建筑設計整體情況的目錄,從其中可以明了圖紙數量及出圖大小和工程號還有建筑單位及整個建筑物的主要功能,如果圖紙目錄與實際圖紙有出入,必須與建筑核對情況。門窗表相信大家不會陌生,就是門窗編號以及門窗尺寸及做法,這對大家在結構中計算荷載是必不可少的。 2 建筑設計總說明 建筑設計總說明對結構設計是非常重要的,因為建筑設計總說明中會提到很多做法及許多結構設計中要使用的數據,比如:建筑物所處位置(結構中用以確定設防列度及風載雪載),黃海標高(用以計算基礎大小及埋深樁頂標高等,沒有黃海標高,施工中根本無法施工),墻體做法地面做法樓面做法...等等做法(用以確定各部分荷載),總之看建筑設計說明時不能草率,這是結構設計正確與否非常重要的一個環節。 3 建筑平面圖
建筑平面圖就比較直觀了,主要信息就是柱網布置及每層房間功能墻體布置門窗布置樓梯位置等。而一層平面圖在進行上部結構建模中是不需要的(有架空層及地下室等除外),一層平面圖是在做基礎時使用,至于如何真正的做結構設計本文不詳述,這里只講如何看建筑施工圖。作為結構設計師在看平面圖的同時,需要考慮建筑的柱網布置是否合理,不當之處應該講出理由說服建筑修改。看建筑平面圖,了解了各部分建筑功能,基本上結構上的活荷載取值心中就大致有值了,了解了柱網及墻體門窗的布置,柱截面大小梁高以及梁的布置也差不多有數了,反正有墻的下面一定有梁,除非是甲方自理的隔斷,輕質墻也最好是立在梁上.值得一提的是,注意看屋面平面圖,通常現代建筑為了外立面的效果,都有層面構架,通常都比較復雜,需要仔細的理解建筑的構思必要的時候咨詢建筑或索要效果圖,力求使自己明白整個構架的三維形成是什么樣子的,這樣才不會出錯..另外,層面是結構找坡還是建筑找坡也需要了解清楚. 4 建筑立面圖
建筑立面圖,是對建筑立面的描述,主要是外觀上的效果,提供給結構師的信息,主要就是門窗在立面上的標高布置及立面布置以及立面裝飾材料及凹凸變化。通常有線的地方就是有面的變化,再就是層高等等信息,這也是對結構荷載的取定起作用的數據。 5 建筑剖面圖
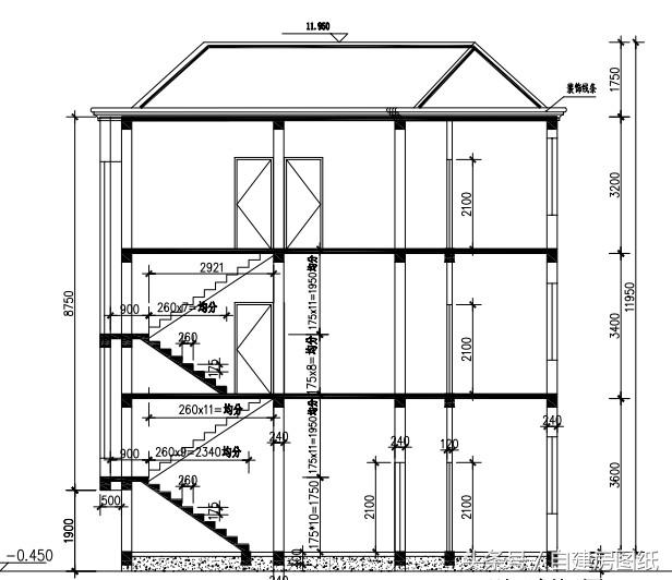
建筑部面圖的作用是對無法在平面圖及立面圖表述清楚的局部剖切以表述清建筑設計師對建筑物內部的處理,結構工程師能夠在剖面圖中得到更為準確的層高信息及局部地方的高低變化,剖面信息直接決定了剖切處梁相對于樓面標高的下沉或抬起,又或是錯層梁,或有夾層梁,短柱等。同時對窗頂是框架梁充當過梁還是需要另設過梁有一個清晰的概念。 6 節點大樣圖及門窗大樣
建筑師為了更為清晰的表述建筑物的各部分做法,以便于施工人員了解自己的設計意圖,需要對構造復雜的結點繪制大樣以說明詳細做法,不僅要通過結點圖更一步了解建筑師的構思,更要分析結點畫法是否合理,能否在結構上實現,然后通過計算驗算各構件尺寸是否足夠,配出鋼筋。當然,有些結點是不需要結構師配筋的但結構師也需要確定該結點能否在整個結構中實現。門窗大樣對于結構師作用不是太大,但個別特別的門窗,結構師須繪制立面上的過梁布置圖,以便于施工人員對此種造形特殊的門窗過梁有一個確定的做法,避免發生施工人員理解上的錯誤。 7 樓梯大樣圖
樓梯是每一個多層建筑必不可少的部分,也是非常重要的一個部分,樓梯大樣又分為樓梯各層平面及樓梯剖面圖,結構師也需要仔細分析樓梯各部分的構成,是否能夠構成一個整體,在進行樓梯計算的時候,樓梯大樣圖就是唯一的依據,所有的計算數據都是取得之樓梯大樣圖,所以在看樓梯大樣圖時也必須將梯梁,梯板厚度及樓梯結構形式考慮清晰。樓梯可是要寫計算書的哦,怎么寫看看教科書吧...基本上將建筑圖看懂了以后,荷載的取定也就不會出錯了,整體構思也就出來了,輕輕松松建好模調調柱子就可以計算然后畫施工圖了...如果不看懂建筑圖也許只是一兩個小地方,嚴重的后果也是所有的工作全部重做,白白浪費很多的精力和時間。 圖紙之家-專注農村別墅/自建房設計18年,集合國內200余位經驗豐富的設計師,被評為口碑最好的農村建筑設計公司! |

私人二層農村小樓設計圖,外觀靚麗,富有現代氣息
占地:160平方米
豪華雙拼三層別墅設計圖,在農村建一棟,將是最靚的風景!
占地:186.85平方米
備受好評二層半歐式別墅設計圖,五開間對稱設計,布局合理又實
占地:192.48平方米
100平新農村三層復式房屋別墅設計圖紙,造價30萬左右
占地:106平方米
新中式三層樓房設計圖,外觀精致布局也是相當的樸實
占地:140平方米
大戶型美觀一層平房自建房設計圖,面寬19米左右
占地:245.1平方米
農村超級好看的現代風格兩層小樓圖,清新優雅
占地:多種戶型
農村一層中式三合院太香了!白墻黛瓦,有院有景超宜居
占地:364.72平方米
100來平復式旋轉樓梯二層簡歐別墅設計圖,戶型實用
占地:101.523平方米
簡單大方四間二層小樓房設計圖,帶車庫,帶大露臺
占地:180平方米
泰式風格三層小別墅設計圖,帶車庫和大露臺
占地:120平方米
農村三層雙拼房屋建筑施工設計圖紙,帶車庫
占地:180平方米
二層新農村自建房設計圖,帶外觀效果圖
占地:140平方米
鄉村兄弟小戶型雙拼一層房屋設計圖,雙拼別墅格局精煉,實用性
占地:160平方米
二層帶車庫歐式尊貴別墅圖,客廳中空,美觀,大氣,實用
占地:300平方米
一層農村三合院別墅設計方案圖,秀氣優美,大氣又實用
占地:191.18平方米
歐式風格三層自建房設計圖,外觀高端大氣,彰顯業主的高貴品質
占地:180平方米
二層中式四合院別墅設計圖,經典、漂亮(全套施工圖)
占地:350平方米
歐式小別墅設計圖紙帶效果圖,二層歐式小別墅設計方案展示
占地:166平方米
爆款120平米三層農村別墅房屋設計圖,室內布局功能齊全,色彩搭
占地:120平方米
推薦:10套新農村自建房設計圖,2026年最新設計
閱讀次數:4825737次
100套鄉村別墅圖片大全,2026年最新設計
閱讀次數:2492203次
6款農村蓋一層平房的設計圖,10萬元就能建起來
閱讀次數:1852637次
這11個一層農村自建房別墅火爆了朋友圈!我最喜歡戶型十!你呢
閱讀次數:750268次
農村6萬元建一層小別墅圖,你敢相信嗎
閱讀次數:567686次
農村5萬塊就能自建房,6套普通房子設計圖分享,你沒看錯!
閱讀次數:419410次
8套農村漂亮三間平房圖片,非常適合在農村修建!
閱讀次數:411197次
農村自建房化糞池怎么做?附方案及施工過程
閱讀次數:391783次
農村一層三間平房設計圖,告別土氣養老房,讓人忍不住點贊
閱讀次數:350581次
新農村二層樓房圖片造價12萬,挑一套回家建房吧!
閱讀次數:349126次
