
|
很多客戶在咨詢建四合院的時候,對現代四合院的概念比較模糊,分不清現代四合院和傳統四合院有什么區別。我們一起來總結一下:現代四合院有哪些特征?與傳統四合院的主要區別在哪里?
(上圖為較傳統四合院效果圖——新民居作品“合心”)
我們從以下幾個方面說明: 一、功能布局:現代四合院功能布置上,更符合現代居住習慣。主要體現在: 1.主樓設計兩層,并且帶閣樓,提供了許多拓展空間的可能性 2.待客空間發展出了中堂、茶室、電視廳、小廳等更靈活的空間 3.臥室設計成了現代配套齊全的臥室,有衛生間、衣帽間、書房,甚至小廳 4.更注重家庭成員的居住隱私,一樓的臥室有獨立小院,二樓的臥室開窗不對視 5.廚房加配置了現代廚房,設計了專門的尺度舒適的餐廳 6.配備了車庫、健身房、娛樂棋牌等空間。 7.開門開窗有更科學的講究,不再完全拘泥于傳統的風水。開窗大小也有很大的改進,需要采光的空間開大窗,需要保溫的空間開小窗等,這些更加人性化。
(上圖為新民居原創設計現代四合院效果圖) 二、總體尺度上有優化 1.主樓與廂房之間的體量大小(面寬、進深及高度)經過慎重調整,更加協調美觀
(上圖為新民居原創設計現代四合院立面效果圖) 2.庭院縮小,檐廊寬度及高度均增加 3.電視廳根據更科學的觀看電視的距離來確定 4.餐廳尺度根據現代圓桌的直徑確定 5.臥室尺度根據現代床品家具的尺寸確定
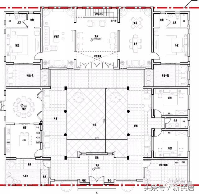
(上圖為新民居原創設計現代四合院平面布局圖) 三、建造施工方法上,更符合現代的施工工藝。 1.現代四合院的建造主要采用全框架混凝土現澆的方式(適應中國的技術現狀和材料供應現狀) 2.現代四合院的基礎經過更精確的計算 3.坡屋頂是現澆平頂后再澆坡頂,屋面瓦是貼到現澆屋面上的,這樣的構造更加牢固耐久,也不失美觀。 4.墻體不參與承重,空間多變成為可能,更利于現代的室內裝飾設計
(上圖為新民居原創設計現代四合院建成項目框架現澆主樓照片)
(上圖為新民居原創設計現代四合院堂屋室內設計效果圖)
(上圖為新民居原創設計現代四合院建成項目主樓堂屋照片) 四、裝飾細節成品化 1.坡屋頂+小青瓦(坡屋頂便于排水,以及形成具有親切感的外形,小青瓦是傳統建筑的典型符號,有記憶傳承,而且并不貴,可以繼續使用,直到被新的結構體系和審美取向取代為止。)
(上圖為新民居原創設計現代四合院建成項目小青瓦效果) 2.墻面及室內裝飾:主要以白色墻面刷涂料。(涂料效果遠遠好于瓷磚,而且隨時可以翻新,而瓷磚翻新的成本特別巨大)
(上圖為新民居原創設計現代四合院庭院效果圖) 3.傳統四合院中處處可見雕梁畫棟、亭臺樓閣諸多純手工藝造型,現代四合院則慢慢演變出更現代的審美情趣,窗花、梁面浮雕、柱墩、園林小景、影壁等等,都有專業的公司在做成品構件,我們買回來貼上即可。
(以上組圖為新民居原創設計現代四合院建成庭院現場照片) 以上即是我們總結出來的現代四合院所具有的特點,而且我們正將這些理念應用于我們的現代四合院設計中。相對于傳統四合院,這些特點具有先進性,但并不代表全部,我們會繼續保持傳統四合院的精髓,并不斷與時俱進地創新。 圖紙之家-專注農村別墅/自建房設計18年,集合國內200余位經驗豐富的設計師,被評為口碑最好的農村建筑設計公司! |

農村二層L戶型農村別墅!設計圖簡約時尚又大氣,住著超舒適
占地:170.55平方米
最新網紅二層別墅,寬敞時尚沉穩大氣,布局實用正好滿足您的需
占地:110平方米
100來平復式旋轉樓梯二層簡歐別墅設計圖,戶型實用
占地:101.523平方米
簡單漂亮實用的三層自建房設計圖,帶露臺,占地170平方米
占地:170平方米
復式挑空二層別墅設計圖,占地175平米,建好住著很舒適
占地:175.44平方米
樓中樓客廳挑高二層別墅設計圖,復式別墅方案推薦
占地:122平方米
農村現代三層建房子設計圖及圖片,平屋頂的設計
占地:150平方米
農村200平一層別墅房屋設計圖,外觀圖片時尚、漂亮
占地:200平方米
130平方米復式三層別墅房屋設計圖,含外觀效果圖
占地:130平方米
農村三層蓋房設計圖大全,最新的設計,最新的戶型
占地:150平方米
200平方米穩重大氣三層雙拼別墅建筑設計圖紙,含效果圖19.04米
占地:200平方米
中式四合院農村自建房設計圖,白墻黛瓦,四水歸堂
占地:137.72平方米
氣派的歐式風格三層房子設計圖紙,外觀圖太漂亮了
占地:132平方米
大氣自建三層雙拼別墅戶型圖方案,完美的戶型就是它
占地:287平方米
適合兄弟自建的二層雙拼別墅設計方案,帶效果圖
占地:180平方米
復式挑空現代簡約風三層別墅設計圖,簡單時尚最受年輕人最愛
占地:149.7平方米
多臥室復式二層別墅房屋設計圖,含外觀效果圖
占地:175平方米
農村簡易二層樓設計圖,外觀簡單漂亮,經典時尚
占地:140平方米
2026新款農村三層雙拼自建房設計圖,占地150平米左右
占地:150平方米
125平方米三層新農村房屋建筑施工設計圖帶外觀圖
占地:126平方米
推薦:10套新農村自建房設計圖,2026年最新設計
閱讀次數:4825737次
100套鄉村別墅圖片大全,2026年最新設計
閱讀次數:2492203次
6款農村蓋一層平房的設計圖,10萬元就能建起來
閱讀次數:1852637次
這11個一層農村自建房別墅火爆了朋友圈!我最喜歡戶型十!你呢
閱讀次數:750268次
農村6萬元建一層小別墅圖,你敢相信嗎
閱讀次數:567686次
農村5萬塊就能自建房,6套普通房子設計圖分享,你沒看錯!
閱讀次數:419410次
8套農村漂亮三間平房圖片,非常適合在農村修建!
閱讀次數:411197次
農村自建房化糞池怎么做?附方案及施工過程
閱讀次數:391783次
農村一層三間平房設計圖,告別土氣養老房,讓人忍不住點贊
閱讀次數:350581次
新農村二層樓房圖片造價12萬,挑一套回家建房吧!
閱讀次數:349126次
