
|
現在農村生活越來越好了,村里面家家戶戶小洋樓都起來了,歐式、美式建筑越來越多了,帶給我們的是審美疲倦。而我們中式的建筑越來越少,特別是四合院,幾乎村里都很難見到了,每一戶都是絕技。更甚的是,四合院是中式建筑的典型,更有中式建筑的神韻。一起來看看我們今天的主角-四合院,今天帶來9套中式四合院的戶型給大家。 四套徽派的四合院:第一套: 占地面積:18*25.5㎡ 傳統式設計設計四合院,前院是辦公室、客廳、廚房、辦公室及大內院,展廳及魚池生活樂趣多樣,內設大堂屋,東西設4臥室,頗具古范。
第二套: 占地面積:24*27.2㎡ 這套可就厲害了,看平面布局就“霸氣側漏”,多臥室專為大家庭設計,前面辦公室分開設置,“東廂房”和“西廂房”設置兩側,互不干擾。內設臥室,茶室,二樓設多臥室,適合大家庭及風景區“名宿”建筑。
第三套: 占地面積:23*32.4㎡ 同樣的徽派式四合院設計,設大門和側門,內院設置豐富除基本起居,帶佛堂,會客廳,茶室及綠化。二樓設起居室及臥室。
第四套: 占地面積:18*25.5㎡ 追求大使用面積縮小內院,設大庫房、大客廳、雙多功能間。二層設6臥室+起居室,非常方便。這是“大家”有的范。
5套北式四合院:第一套: 占地面積:25.88*3.58㎡ 整體外“大家閨秀”,大氣外表+大內院,給人大氣之感。里面設置豐富,中堂、客廳、鋼琴式、茶室,大小餐廳。還有車庫及備用房,因有盡有,頗顯大氣。
第二套: 占地面積:22*45.9㎡ 大車庫+大內池+KTV+雙餐廳+多臥室,多功能設計,生活節目豐富。
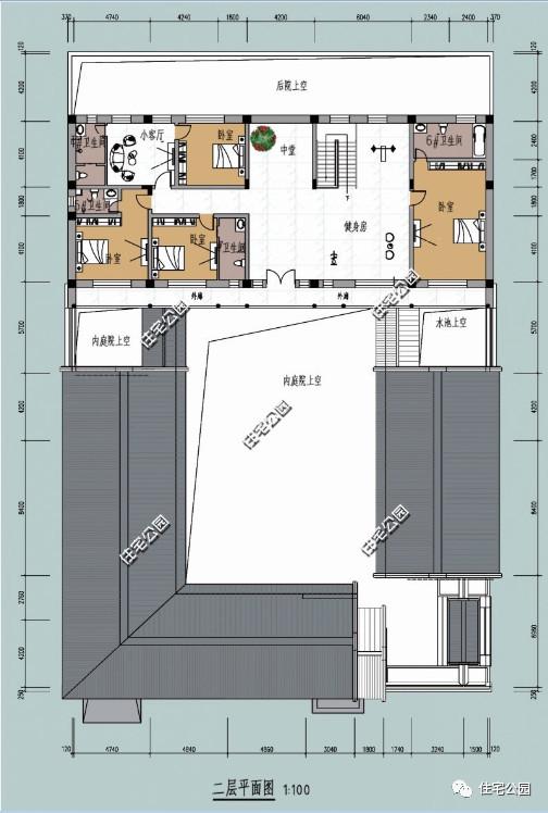
第三套: 占地面積:18*15.2㎡ 庭院式設計,大的活動空間,內院臥室設計稍緊湊。
第四套: 占地面積:22.34X28.44㎡ 兩側綠化+大門側設計吸人眼球,布局分明,前設火坑、廚房、餐廳,后設客廳臥室。這樣的設計我想換誰誰都愛。
第五套: 占地面積:23.64X20.24㎡ 左廚房,右棋牌,左主臥,右次臥,客廳和躺我并列+大庭院設計,非常合理與巧妙。
圖紙之家-專注農村別墅/自建房設計18年,集合國內200余位經驗豐富的設計師,被評為口碑最好的農村建筑設計公司! |

150平農村三層歐式別墅設計圖紙,盡顯豪華與精致,讓人羨慕不已
占地:147.62平方米
帶車庫的農村四合院別墅設計圖,富貴人家的象征,日子越過越興
占地:219.24平方米
帶小院子的鄉村一層別墅設計圖紙,120平方米
占地:多戶型
帶車庫二層別墅設計圖及效果圖,帶車庫的農村二層樓房推薦
占地:123平方米
帶地下室一層別墅設計方案,功能布局齊全實用
占地:256.5平方米
七字型設計新中式一層別墅設計圖,類合院風格
占地:267.3平方米
120平米三層小別墅設計方案和效果圖,端莊大氣很經典
占地:120平方米
150平米田園風格二層別墅設計圖紙,沉穩大氣有內涵
占地:150平方米
帶獨立堂屋的農村自建房設計,二層別墅設計方案圖
占地:109平方米左右
小型新中式二層小別墅圖紙設計方案,好看造價不高
占地:232.98平方米
小戶型經濟型三層雙拼小別墅施工設計圖紙,單戶100平內
占地:150平方米
性價比超高一層農村自建別墅設計圖,戶型耐看不用爬樓
占地:158.6平方米
歐式風二層別墅設計圖,帶陽光房設計,時尚美觀還很實用
占地:多戶型可選
帶庭院中式二層四合院別墅設計效果圖片,方方正正
占地:404平方米
帶獨立廚房的二層自建房設計圖,大戶型方案
占地:233平方米
歐式四層(三層半)獨棟別墅設計圖復式,設計豪華時尚
占地:194平方米
農村二層小樓的設計圖紙,整體外觀凹凸有致,紅色的坡面屋頂
占地:180平方米
現代風格三拼別墅設計圖紙,三兄弟回村自建房戶型
占地:324平方米
時尚四開間二層農村別墅,經典大氣,引領建房新潮流!
占地:159.6平方米
私人二層歐式別墅建筑設計圖(效果圖+全套別墅設計方案)
占地:144平方米
推薦:10套新農村自建房設計圖,2026年最新設計
閱讀次數:4825737次
100套鄉村別墅圖片大全,2026年最新設計
閱讀次數:2492203次
6款農村蓋一層平房的設計圖,10萬元就能建起來
閱讀次數:1852637次
這11個一層農村自建房別墅火爆了朋友圈!我最喜歡戶型十!你呢
閱讀次數:750268次
農村6萬元建一層小別墅圖,你敢相信嗎
閱讀次數:567686次
農村5萬塊就能自建房,6套普通房子設計圖分享,你沒看錯!
閱讀次數:419410次
8套農村漂亮三間平房圖片,非常適合在農村修建!
閱讀次數:411197次
農村自建房化糞池怎么做?附方案及施工過程
閱讀次數:391783次
農村一層三間平房設計圖,告別土氣養老房,讓人忍不住點贊
閱讀次數:350581次
新農村二層樓房圖片造價12萬,挑一套回家建房吧!
閱讀次數:349126次
