
|
宅基地面寬太小,必是給許多建房者帶來困擾。尋找合適的別墅圖紙很是不易,有些平面布置合適了,外觀造型卻不如意。更何況是面寬小,進深長,東西兩面還沒有足夠的采光宅基地,這就更不好設計了。今天給大家分享14款面寬不足10米的自建別墅圖紙,總有一款適合你。 二層帶露臺小戶型別墅
編號: DC0366 結構形式: 磚混結構 開間: 8米 進深: 12.3米 占地面積: 100.91平方米 建筑面積: 211.08平方米 主體造價: 18-22萬 首層戶型:
二層戶型:
一 層:客廳、臥室(附衛生間)、廚房、餐廳、衛生間 二 層:客廳(附露臺)、臥室(附衛生間)、臥室、衛生間 農村三層帶露臺小別墅
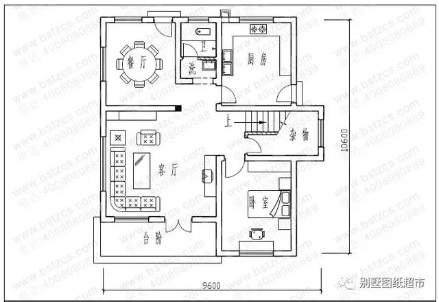
編號: DC0312 結構形式: 磚混結構 開間: 9.9米 進深: 9.6米 占地面積: 92.94平方米 建筑面積: 274.1平方米 主體造價: 22-26萬 首層戶型:
圖紙預覽:
一 層:客廳、臥室、廚房、餐廳、衛生間 二 層:休息區、臥室(附書房,衣帽間,陽臺)、臥室、儲存間、衛生間 三 層:臥室(附書房,衣帽間,陽臺)、臥室(附露臺)、衛生間 臨街四層帶商鋪自建房屋
編號: DC0231 結構形式: 框架結構 開間: 8米 進深: 12.3米 占地面積: 103.33平方米 建筑面積: 407.9平方米 主體造價: 28-32萬 首層戶型:
圖紙預覽:
一 層:商鋪、廚房、餐廳、衛生間 二 層:客廳、主臥(附陽臺,衛生間)、臥室、廚房、餐廳、衛生間 三 層:客廳、臥室(附陽臺、衛生間)、臥室(附書房)、臥室、衛生間 四 層:客廳、臥室(附書房)、臥室、衛生間、露臺 新農村三層小別墅
編號: DC0178 結構形式: 磚混結構 開間: 9米 進深: 11.6米 占地面積: 100.6平方米 建筑面積: 209.93平方米 主體造價: 24-28萬 首層戶型:
圖紙預覽:
一 層:客廳、臥室、廚房、餐廳、雜物間、衛生間 二 層:臥室(附陽臺,衣帽間,衛生間)、2臥室、衛生間 三 層:臥室(附衛生間,陽臺) 農村三層帶車庫自建房
編號: DC0174 結構形式: 磚混結構 開間: 9.2米 進深: 10.63米 占地面積: 100平方米 建筑面積: 280平方米 主體造價: 18-22萬 首層戶型:
圖紙預覽:
一 層:客廳、臥室、廚房、餐廳、衛生間、車庫 二 層:臥室(附陽臺)、3臥室、衛生間 三 層:3臥室、衛生間、露臺 新農村三層自建房
編號: DC0138 結構形式: 磚混結構 開間: 9.84米 進深: 12.54米 占地面積: 112.67平方米 建筑面積: 313.13平方米 主體造價: 22-26萬 首層戶型:
圖紙預覽:
一 層:客廳、老人房、廚房、餐廳、衛生間、車庫 二 層:主臥(附書房,衛生間,陽臺)、臥室(附陽臺)、臥室、衛生間 三 層:主臥(附書房,衛生間,陽臺)、臥室(附陽臺)、臥室、衛生間 漂亮的三層復式別墅
編號: DC0116 結構形式: 框架結構 開間: 9.3米 進深: 12米 占地面積: 102.16平方米 建筑面積: 231.01平方米 主體造價: 30-35萬 首層戶型:
圖紙預覽:
一 層:客廳(中空)、臥室(附衣帽間)、廚房、餐廳、衛生間、車庫 二 層:主人房(附衣帽間,衛生間,露臺)、臥室(附衣帽間,衛生間) 三 層:臥室(附衛生間,陽臺)、臥室(附衛生間)、露臺 三層新農村住宅
編號: DC0021 結構形式: 磚混結構 開間: 8米 進深: 10.1米 占地面積: 78.6平方米 建筑面積: 202.92平方米 主體造價: 19-22萬 首層戶型:
圖紙預覽:
一 層:客廳、臥室、廚房兼餐廳、衛生間 二 層:起居室(附陽臺)、臥室(附衣帽間)、臥室、衛生間 三 層:臥室(附露臺)、臥室(附陽臺)、衛生間 農村三層自建別墅
編號: DC0052 結構形式: 磚混結構 開間: 9.6米 進深: 10.6米 占地面積: 89.29平方米 建筑面積: 233.9平方米 主體造價: 16-20萬 首層戶型:
圖紙預覽:
一 層:客廳、臥室、雜物間、廚房、餐廳、衛生間 二 層:客廳(附陽臺)、3臥室、衛生間 三 層:臥室、儲藏室、衛生間、曬臺 三層鄉村別墅圖紙
編號: DC0045 結構形式: 磚混結構 開間: 8.55米 進深: 11.6米 占地面積: 101.99平方米 建筑面積: 274.63平方米 主體造價: 20-25萬 首層戶型:
圖紙預覽:
一 層:客廳、臥室(附衣帽間)、廚房、餐廳、洗衣間、衛生間 二 層:客廳、臥室(附陽臺)、2臥室、書房、衛生間 三 層:臥室(附陽臺)、3臥室、衛生間、露臺 農村三層別墅
編號: DC0038 結構形式: 磚混結構 開間: 7米 進深: 11.1米 占地面積: 76.53平方米 建筑面積: 219.9平方米 主體造價: 18-22萬 首層戶型:
圖紙預覽:
一 層:客廳、臥室、廚房、餐廳、衛生間、儲藏室 二 層:小客廳(附陽臺)、2臥室、書房、衛生間 三 層:多功能房、2臥室、衛生間、露臺 農村三層自建別墅
編號: DC0024 結構形式: 磚混結構 開間: 8.9米 進深: 8.4米 占地面積: 75.61平方米 建筑面積: 252.39平方米 主體造價: 18-22萬 首層戶型:
圖紙預覽:
一 層:客廳、臥室、廚房(兼餐廳)、衛生間 二 層:客廳(附陽臺)、2臥室、衛生間 三 層:臥室(附陽臺)、2臥室、衛生間 新農村二層半自建房
編號: DC0227 結構形式: 磚混結構 開間: 9米 進深: 10.6米 占地面積: 97.87平方米 建筑面積: 238.3平方米 主體造價: 15-20萬 首層戶型:
圖紙預覽:
一 層:客廳、臥室、廚房、餐廳、衛生間 二 層:臥室(附陽臺)、臥室(附衣帽間)、臥室、衛生間 三 層:娛樂室、露臺 農村二層自建別墅
編號: DC0016 結構形式: 磚混結構 開間: 8.6米 進深: 10.4米 占地面積: 87.7平方米 建筑面積: 162.8平方米 主體造價: 12-16萬 首層戶型:
圖紙預覽:
一 層:客廳、臥室、廚房、餐廳、儲藏室、衛生間 二 層:主臥(附書房,露臺)、2臥室、衛生間 宅地面積小,建高層無疑是一種有效利用面積的方法。但其實,理想的居所,不一定要很大的房子,夠住,有家的溫暖便足矣! 圖紙之家-專注農村別墅/自建房設計18年,集合國內200余位經驗豐富的設計師,被評為口碑最好的農村建筑設計公司! |

L字型自建房屋設計圖,一層別墅類型,外觀效果圖漂亮
占地:188.62平方米
帶土灶房一層四開間別墅設計方案,溫馨舒適的雅舍
占地:164.34平方米
二開間小戶型設計三層農村自建房方案,經濟型適合小宅基地建房
占地:107.02平方米
11X10米三層別墅農村自建房設計圖,復式挑空客廳
占地:119.08平方米
100平方建房子設計圖及效果圖,簡單實用的戶型設計
占地:97.3平方米
最好看大氣的豪華三層樓房設計圖,客廳中空,旋轉樓梯
占地:340平方米
200平米左右二層樓房設計圖,外觀看著舒服、布局住著坦然
占地:190平方米
大戶型高端三層別墅設計圖紙,外觀效果圖+CAD建筑圖
占地:227平方米
新農村二層帶庭院的小別墅設計圖及效果圖
占地:137平方米
農村建房兄弟雙拼三層,經典的歐式風格,大氣的外觀
占地:250平方米
新中式三層雙拼別墅設計圖及效果圖,中式大氣風格
占地:235.26平方米
130平方米湖南二層復式自建房屋設計圖紙12x11米
占地:128平方米
兩層半雙拼別墅設計方案,超大露臺+歐式風格,好設計別錯過!
占地:175.8平方米
一層半帶閣樓別墅設計圖,悠閑舒適,養老度假皆可
占地:161.94平方米
50萬以內的歐式三層房屋別墅施工設計圖紙及效果圖
占地:169平方米
歐式三層樓房設計圖,客廳中空,旋轉樓梯,帶土灶房
占地:206平方米
實用農村三層房屋設計圖紙,效果圖+全套施工圖
占地:113平方米
二層簡歐別墅設計圖挑空客廳+旋轉樓梯,看過的人都說氣派
占地:154.699平方米
面寬15米的農村三層房屋設計圖,帶別墅效果圖
占地:137平方米左右
帶堂屋二層小別墅設計圖紙帶外觀圖,13.6米x9米
占地:122.4平方米
推薦:10套新農村自建房設計圖,2026年最新設計
閱讀次數:4825737次
100套鄉村別墅圖片大全,2026年最新設計
閱讀次數:2492203次
6款農村蓋一層平房的設計圖,10萬元就能建起來
閱讀次數:1852637次
這11個一層農村自建房別墅火爆了朋友圈!我最喜歡戶型十!你呢
閱讀次數:750268次
農村6萬元建一層小別墅圖,你敢相信嗎
閱讀次數:567686次
農村5萬塊就能自建房,6套普通房子設計圖分享,你沒看錯!
閱讀次數:419410次
8套農村漂亮三間平房圖片,非常適合在農村修建!
閱讀次數:411197次
農村自建房化糞池怎么做?附方案及施工過程
閱讀次數:391783次
農村一層三間平房設計圖,告別土氣養老房,讓人忍不住點贊
閱讀次數:350581次
新農村二層樓房圖片造價12萬,挑一套回家建房吧!
閱讀次數:349126次
