
|
層數:三層 開間:12米 進深:12.1米 首層占地面積:151.44平方米 總建筑面積:454.32平方米 結構形式:框架結構 主體造價:45萬左右
效果圖
一層平面圖 一層:車庫、廚房、餐廳、客廳、臥室、衛生間
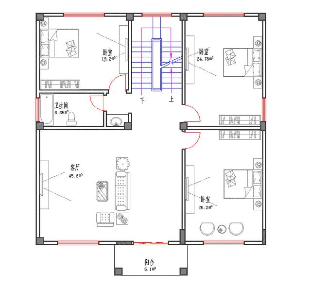
二層平面圖 二層:客廳、臥室×3、衛生間、陽臺
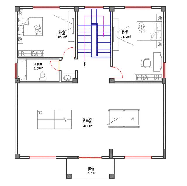
三層平面圖 三層:活動室、臥室×2、衛生間、陽臺 圖紙之家-專注農村別墅/自建房設計18年,集合國內200余位經驗豐富的設計師,被評為口碑最好的農村建筑設計公司! |

帶地下車庫的三層別墅設計圖,160平復式戶型
占地:159.03平方米
新中式農村三層樓房設計圖,帶地下室,主體建筑面積110平米
占地:110平方米
農村三層帶地下室小樓房設計圖,客廳中空,帶書房,旋轉樓梯
占地:130平方米
帶架空層的農村二層別墅設計方案,造型大氣漂亮
占地:176平方米
200平農村二層別墅設計圖,外觀現代簡約
占地:204平方米
大戶型美觀一層平房自建房設計圖,面寬19米左右
占地:245.1平方米
新農村三層帶露臺自建房設計施工圖,農村自建別墅推薦
占地:112平方米
造價40萬內三層別墅房屋設計方案,設計圖+外觀效果圖
占地:150平方米
最耐看的二層別墅設計圖,15米寬12米深,方正大氣經濟美觀!
占地:180平方米
一層帶架空層的農村別墅設計圖,防潮、停車、放農具全都滿足
占地:163.78平方米
100平方三層樓房設計圖及圖片,戶型設計簡約時尚
占地:100平方米
鄉下建房一層戶型圖及全套圖紙,養老房,還是一層好
占地:210平方米
新中式三層雙拼別墅設計圖,外觀圖片美觀、大氣
占地:176平方米
農村二層帶閣樓四間別墅設計圖,外觀美觀,戶型實用
占地:175平方米
農村四層樓房設計圖及外觀效果圖,造價60萬左右
占地:163.84平方米
13x13米簡單二層帶閣樓最新別墅設計圖,精致美觀
占地:158.5平方米
現代三層復式小別墅設計圖及外觀圖片,25萬造價
占地:105平方米
小L型新款二層別墅設計圖,復式客廳旋轉樓梯,14米乘13米
占地:182平方米
二層農村自建四合院設計圖,中式外觀古樸有質感200-300平方米
占地:270平方米左右
小占地二層徽派別墅設計圖,白墻黛瓦韻味十足,太氣派了
占地:89.6平方米
推薦:10套新農村自建房設計圖,2026年最新設計
閱讀次數:4825737次
100套鄉村別墅圖片大全,2026年最新設計
閱讀次數:2492203次
6款農村蓋一層平房的設計圖,10萬元就能建起來
閱讀次數:1852637次
這11個一層農村自建房別墅火爆了朋友圈!我最喜歡戶型十!你呢
閱讀次數:750268次
農村6萬元建一層小別墅圖,你敢相信嗎
閱讀次數:567686次
農村5萬塊就能自建房,6套普通房子設計圖分享,你沒看錯!
閱讀次數:419410次
8套農村漂亮三間平房圖片,非常適合在農村修建!
閱讀次數:411197次
農村自建房化糞池怎么做?附方案及施工過程
閱讀次數:391783次
農村一層三間平房設計圖,告別土氣養老房,讓人忍不住點贊
閱讀次數:350581次
新農村二層樓房圖片造價12萬,挑一套回家建房吧!
閱讀次數:349126次
