
|
現在的城里人對農村一直有種誤解,認為農村就是到處破破爛爛,土里土氣,要說是以前,那小編確實沒辦法反駁,但現在,今時不同往日了,現在農村是家家建起大別墅,絕對不比城里差的,不信?那給你看看我家30萬建的房,連鎮長都叫好!附上施工圖,給大家作個參考! 開挖地基,因為家里宅基地還不錯,不小,而且周圍也沒幾家連在一起,安靜!
其實我們村建房的沒有很多,看隔壁的房子還是最老式的房子,這次做的條形基礎,造價實惠又經濟!
地圈梁和構造柱是肯定要設置的,雖說我這里不是地震區,但是這基本的防震設計還是要做好的。
雖然找的是村里施工隊,但是我有個朋友是做建筑的,叫他幫忙監工,這墻砌的,馬牙槎留的,也是很棒了。
澆樓板時,用鋼管做的滿堂支架,然后在支架上安裝模板澆筑樓板及圈梁。
現在羅馬柱也是很流行了,就在網上買了兩個模板,現澆的,效果還不錯。
澆門斗。
第三層就要完工了。
毛坯建好進行墻體抹灰了。
勒腳用灰色文化石裝飾,即使弄臟了也不影響外觀,一層外墻貼橘紅色瓷磚,二層及三層樓梯間則噴涂淺黃色真石漆,門斗陽臺用的白色的耐水膩子涂料。也是講究人啊,這樣搭配氣質頓時就出來了!
裝好門窗,整棟房屋就全建好了,主體毛坯+外裝+門窗一共花了30萬,我們這邊比較便宜了,你們那邊呢?
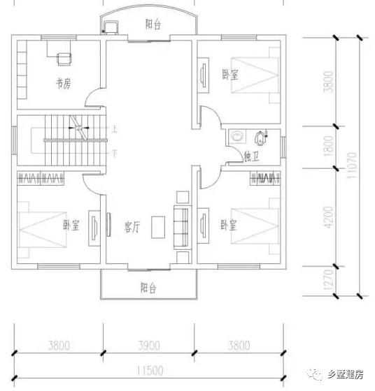
附上平面圖,給大家參考! 一層設有門廳、客廳、2臥室、雜物間、廚房、餐廳、衛生間。因為右手邊的臥室是給家里老人住的,所以衛生間離的就近,廚房開了后門,家里種的菜都在旁邊,方便摘,畢竟是血汗錢,所以樓梯下方的空間做了雜物間。
二層設有客廳、2陽臺、3臥室、書房、衛生間。三間臥室大小一致,獨立書房,要學習,還是家人一起的好。
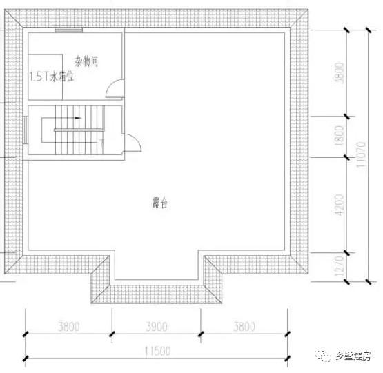
三樓主要的亮點就是露臺,因為露臺在城里是沒法想的,而在農村,不僅可以想,還可以做。
你們那邊建房子多少錢呢? 圖紙之家-專注農村別墅/自建房設計18年,集合國內200余位經驗豐富的設計師,被評為口碑最好的農村建筑設計公司! |

新農村兩層半小洋樓房設計圖,預算33萬左右
占地:多種戶型
二層新中式小別墅設計圖紙,舒適實用,16米乘12米
占地:189.88平方米
100-140平多戶型二層經典新農村小別墅設計建筑圖紙
占地:多種戶型
客廳中空三層復式別墅房屋設計圖,帶外觀效果圖
占地:145平方米
140平方米新農村三層房屋設計圖,磚混結構帶地下室
占地:138平方米左右
小面寬的農村簡單四層2建平屋頂別墅設計圖,農村自建房首選
占地:109.29平方米
帶柴火房農村一層自建房設計圖,戶型布局接地氣
占地:126.29平方米
平頂新中式三層農村別墅設計圖,最適合鄉村自建占地150平米
占地:150.35平方米
帶雙車庫的新中式二層四合院別墅設計圖,戶型布局實用
占地:321平方米
新農村二層歐式別墅設計圖,外觀漂亮,主體18萬起建
占地:115.2平方米
農村13萬元二層小樓圖,簡單易建,造價低
占地:110平方米
高端大氣三層別墅設計圖,建好就是村里最靚的
占地:120平方米
平屋頂二層自建房帶商鋪別墅設計圖紙及外觀圖
占地:225平方米
中式四合院農村自建房設計圖,白墻黛瓦,四水歸堂
占地:137.72平方米
鄉下一層自建養老平房戶型圖及全套圖紙,占地面積200左右
占地:200平方米
豪華高端三層帶地下室別墅設計圖,可帶電梯
占地:210平方米
占地130平三層現代別墅設計圖方案,帶電梯和地下室設計
占地:134.75平方米
12x13米豪華三層農村別墅設計圖,宅基地上的貴族人生
占地:156平方米
二層復式小洋樓設計圖,外觀精致,戶型合理
占地:115平方米
獨棟經濟型二層小別墅房屋設計圖,含全套施工圖效果圖
占地:多種戶型
推薦:10套新農村自建房設計圖,2026年最新設計
閱讀次數:4825737次
100套鄉村別墅圖片大全,2026年最新設計
閱讀次數:2492203次
6款農村蓋一層平房的設計圖,10萬元就能建起來
閱讀次數:1852637次
這11個一層農村自建房別墅火爆了朋友圈!我最喜歡戶型十!你呢
閱讀次數:750268次
農村6萬元建一層小別墅圖,你敢相信嗎
閱讀次數:567686次
農村5萬塊就能自建房,6套普通房子設計圖分享,你沒看錯!
閱讀次數:419410次
8套農村漂亮三間平房圖片,非常適合在農村修建!
閱讀次數:411197次
農村自建房化糞池怎么做?附方案及施工過程
閱讀次數:391783次
農村一層三間平房設計圖,告別土氣養老房,讓人忍不住點贊
閱讀次數:350581次
新農村二層樓房圖片造價12萬,挑一套回家建房吧!
閱讀次數:349126次
