
|
建房子最注重功能的實用性,接著就是外觀設計效果,兩者兼具且滿足自家的住房需求,就是好的戶型。今天要給大家介紹的這款26萬17×8二層2廳5室帶兒童房套房農村自建房設計圖(全套),外觀時尚大氣,帶有車庫、飄窗、陽臺、走廊、套房等功能,非常實用漂亮,馬上來看看!
正面效果圖 本套二層農村小別墅設計圖圖紙詳情介紹 層數:二層 開間:17米 進深:8米 首層占地面積:136平方米 總建筑面積:295平方米 結構形式:磚混結構 主體造價:26萬
背面效果圖 功能設計 一層:車庫、客廳、儲藏室、廚房、餐廳、客房、衛生間 二層:客廳(帶陽臺)、主臥(帶露臺、主衛)、臥室、客房、兒童房、衛生間
俯視圖 平面圖
一層平面圖 車庫設置在右側并帶有一個儲藏室,還有一個可以通向室內的門,停車下車即可入室,比較方便。正門入門設客廳,與餐廳并用,增大空間視覺,父母房和客房均設在南面,光線充足。
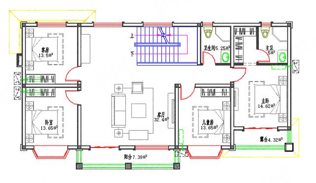
二層平面圖 二層的客廳可以通向陽臺,主臥配套帶有獨立衛生間和露臺,兒童房在主臥旁邊,左側還有兩個臥室,布局合理流暢。 其他別墅圖紙展示:
1
2
3
4
5 圖紙之家-專注農村別墅/自建房設計18年,集合國內200余位經驗豐富的設計師,被評為口碑最好的農村建筑設計公司! |

簡易農村別墅房子設計圖,好看實惠,施工也簡單
占地:200平方米
12×12米農村二層經濟型自建房設計圖,設計了6間臥室
占地:140平方米
七字型設計新中式一層別墅設計圖,類合院風格
占地:267.3平方米
14x12.5米二層農村別墅設計圖,布局完美獨立,顏值高又實用
占地:153.95平方米
農村2026新式好看又簡單的二層樓房設計圖,外形美觀,家用足夠
占地:200平方米
175平大客廳三層別墅房屋設計圖,含外觀造型現代,美觀
占地:175平方米
漂亮實用三層新農村小別墅設計圖紙,占地150平米,帶露臺,從哪
占地:150平方米
農村三層自建房子圖紙設計方案,開間11米左右
占地:151.96平方米
兩戶190平方米新農村雙拼別墅全套設計方案及效果圖
占地:191平方米
農村兄弟雙拼平房別墅設計圖,獨門獨戶,一層也能建雙拼
占地:274.18平方米
70平農村小戶型二層別墅設計圖,小宅基地的福音
占地:70平方米
帶地下室的一層別墅設計圖,農村自建房比較合適
占地:206平方米
三層新中式別墅設計圖,面寬12米經典漂亮
占地:154.93平方米
16x14米三層雙拼別墅設計圖,外觀精致大氣內里實用,兄弟建房上
占地:217.28平方米
20萬農村一層半小洋樓圖,自建別墅設計方案推薦
占地:155平方米
開間9到10米簡約別墅設計圖紙帶效果圖,全套別墅設計方案
占地:122平方米
簡單實用二層雙拼樓房設計圖,造價30萬左右
占地:180平方米
大氣的150平方米新中式三層別墅建筑圖及效果圖
占地:150平方米左右
二層中式四合院別墅設計圖,經典、漂亮(全套施工圖)
占地:350平方米
8.5×12米四層歐式房屋設計圖紙,占地100平,落地窗中嵌入了雕花
占地:100平方米
推薦:10套新農村自建房設計圖,2026年最新設計
閱讀次數:4825737次
100套鄉村別墅圖片大全,2026年最新設計
閱讀次數:2492203次
6款農村蓋一層平房的設計圖,10萬元就能建起來
閱讀次數:1852637次
這11個一層農村自建房別墅火爆了朋友圈!我最喜歡戶型十!你呢
閱讀次數:750268次
農村6萬元建一層小別墅圖,你敢相信嗎
閱讀次數:567686次
農村5萬塊就能自建房,6套普通房子設計圖分享,你沒看錯!
閱讀次數:419410次
8套農村漂亮三間平房圖片,非常適合在農村修建!
閱讀次數:411197次
農村自建房化糞池怎么做?附方案及施工過程
閱讀次數:391783次
農村一層三間平房設計圖,告別土氣養老房,讓人忍不住點贊
閱讀次數:350581次
新農村二層樓房圖片造價12萬,挑一套回家建房吧!
閱讀次數:349126次
