
|
這款三層農村自建房采用平屋頂設計,外觀簡單大方,室內布局緊湊,有健身房,每間臥室都帶有獨立衛生間,方便實用,共設有1廳5臥,是一款簡單易建的農村實用型房屋設計圖!
效果圖 層數:三層 開間:10.80米 進深:9.80米 首層占地面積:100.59平方米 總建筑面積:275.52平方米 結構形式:框架結構 建筑高度:12.5米 主體造價:25萬 功能設計
一層平面圖 一層:玄關、客廳、健身房、廚房、餐廳、公衛
二層平面圖 二層:主臥(帶衛生間、書房、陽臺)、臥室(帶陽臺、衛生間)、臥室(帶衛生間)
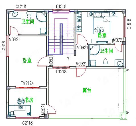
三層平面圖 三層:臥室(帶衛生間、書房、露臺)、臥室(帶衛生間)、露臺 圖紙之家-專注農村別墅/自建房設計18年,集合國內200余位經驗豐富的設計師,被評為口碑最好的農村建筑設計公司! |

一層農村小平房設計圖,功能齊全造價低,兩款戶型可選
占地:多戶型可選
簡單實用的四層農村自建房屋設計圖,占地100平米左右
占地:100平方米
占地百平三層歐式別墅設計圖,回到家鄉建一棟,大氣美觀有內涵
占地:99.94平方米
140平四層復式別墅房屋設計圖,帶外觀效果圖
占地:140平方米
農村宅基地建房二層別墅設計圖,適合回鄉自建!
占地:137.5平方米
網紅款兩層別墅圖紙設計圖,外觀簡單好看,后面不開窗
占地:171平方米左右
平頂新中式三層農村別墅設計圖,最適合鄉村自建占地150平米
占地:150.35平方米
農村二層帶車庫樓房設計圖,帶外觀效果圖片
占地:125平方米
小戶型農村三層房屋設計圖,占地120平米,布局非常合理,外表典
占地:120平方米
實用型二層別墅設計圖,簡單大方最耐看,16.5米乘11米
占地:150.94平方米
50萬左右農村三層別墅設計圖紙,帶大露臺,外觀大氣
占地:150平方米
新款農村三層雙拼聯體別墅戶型圖,客廳中空,單戶120平米左右
占地:240平方米
經典三層別墅設計圖紙(全套施工圖+效果圖),新農村自建推薦
占地:123平方米
125平兩層別墅房屋設計圖,帶普通和復式兩個戶型
占地:125平方米
140平方米農村三層復式房屋設計施工圖,開放式廚房
占地:143平方米
農村一層平房別墅設計圖,18米乘9米,實實在在的好戶型
占地:162平方米
兩層半30萬農村自建房別墅設計圖紙,客廳挑空,帶大露臺
占地:130平方米
農村200平一層別墅房屋設計圖,外觀圖片時尚、漂亮
占地:200平方米
七字型設計新中式一層別墅設計圖,類合院風格
占地:267.3平方米
豪華大氣三層農村自建房設計圖,經典大氣,百看不厭,新中式風
占地:141.75平方米
推薦:10套新農村自建房設計圖,2026年最新設計
閱讀次數:4825737次
100套鄉村別墅圖片大全,2026年最新設計
閱讀次數:2492203次
6款農村蓋一層平房的設計圖,10萬元就能建起來
閱讀次數:1852637次
這11個一層農村自建房別墅火爆了朋友圈!我最喜歡戶型十!你呢
閱讀次數:750268次
農村6萬元建一層小別墅圖,你敢相信嗎
閱讀次數:567686次
農村5萬塊就能自建房,6套普通房子設計圖分享,你沒看錯!
閱讀次數:419410次
8套農村漂亮三間平房圖片,非常適合在農村修建!
閱讀次數:411197次
農村自建房化糞池怎么做?附方案及施工過程
閱讀次數:391783次
農村一層三間平房設計圖,告別土氣養老房,讓人忍不住點贊
閱讀次數:350581次
新農村二層樓房圖片造價12萬,挑一套回家建房吧!
閱讀次數:349126次
