
|
農村自建房歷經了歲月的洗禮,從傳統中脫離,逐步走向現代化和歐式化。時代進步之后,人們又渴望走向傳統,越是陳舊的建筑,復古的風格更耐人尋味。當然現在農村自建房不僅僅是重塑傳統形式,更結合了現代建筑元素,打造適合現代生活的棲息之所。
新中式風格的別墅,保留了中式建筑中的經典元素,融入了現代建筑美學結構。簡約中追求古典美的審美追求。
中式建筑黑白搭配是最淳樸的神韻。立面的多創設計,低調中彰顯戶型的豐富性和功能性,保證了室內的采光。
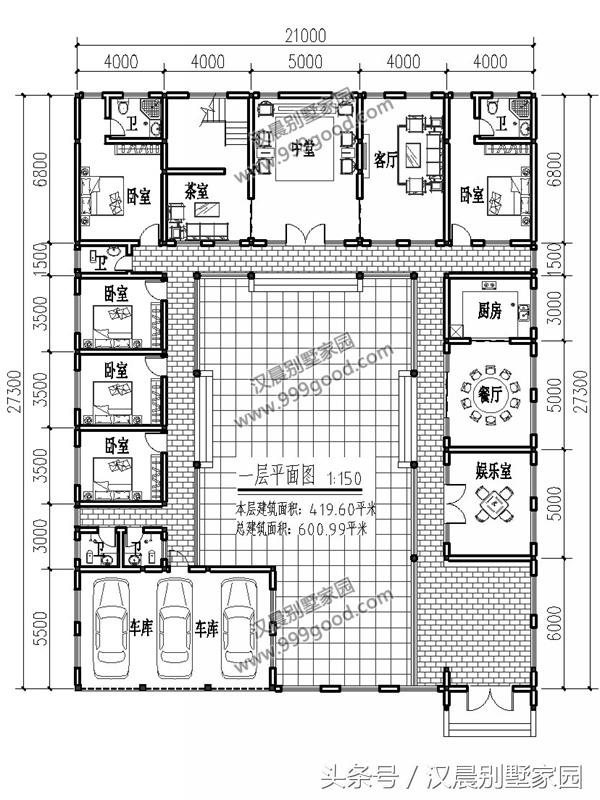
平面功能說明:
中式建筑的戶型最好是有一個院子,才比較好看。入戶有玄關,不像歐式大門比較霸氣,中式風格講究是含蓄內斂。院中有花園,園中有景。
室內的交通比較簡單,各區間靠東西兩面布置,與室外有很好的互動性,增加通風采光率。 再來一棟中式三合院別墅:
農村一般都前篇一律的坡頂設計,都產生了審美疲勞。此棟戶型用的是歇頂,非常洋氣時尚有復古!
院子外三大車庫,再也不用擔心您的愛車沒地方放了。
平面設計說 明: 超豪華的一層三合院別墅,局部二層。入戶門廳私密性超好,超大的院子成為戶型的中心,各個功能區間圍繞院子而設。
![]() 圖紙之家-專注農村別墅/自建房設計18年,集合國內200余位經驗豐富的設計師,被評為口碑最好的農村建筑設計公司! |

新農村四層獨棟復式別墅設計圖,設計豪華時尚
占地:140平方米
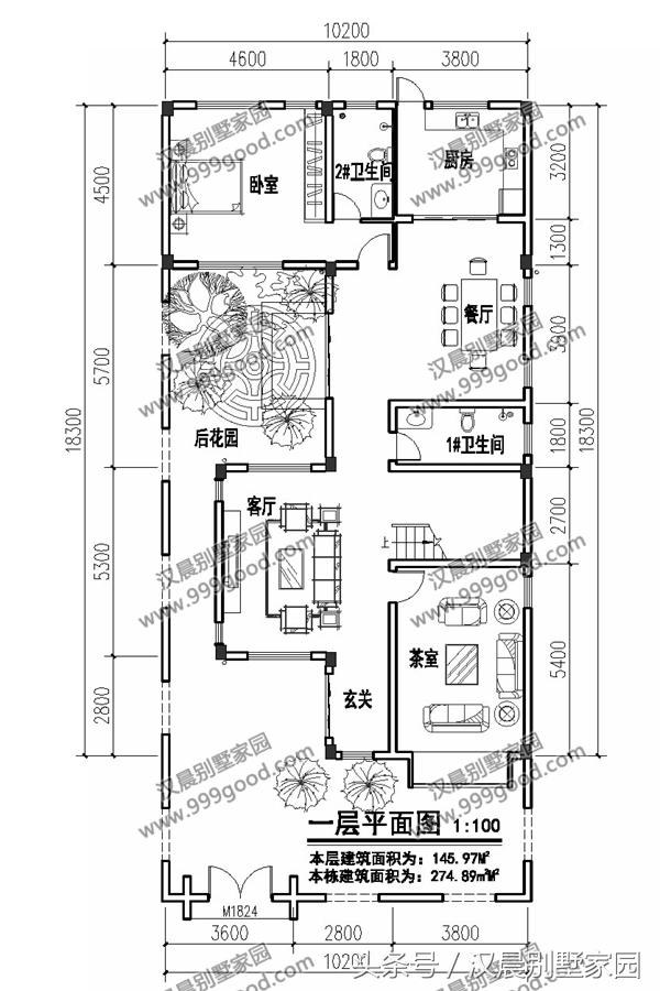
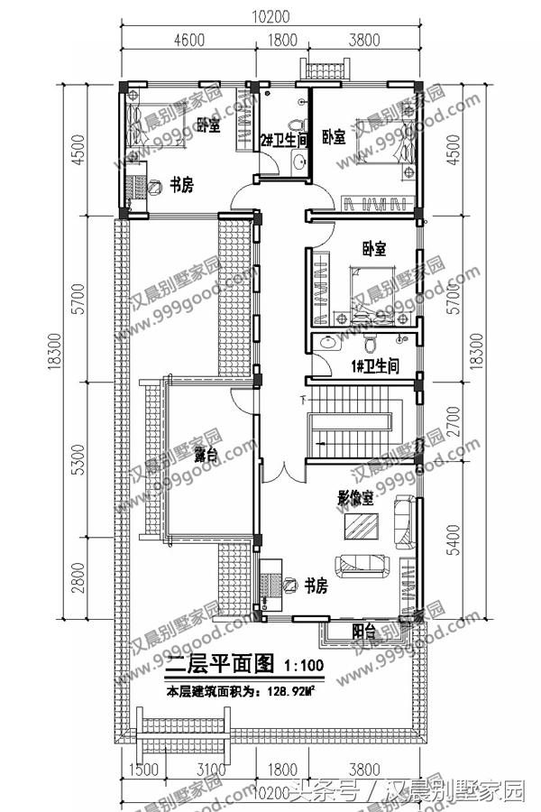
一層農村三合院別墅設計方案圖,秀氣優美,大氣又實用
占地:191.18平方米
人氣頗高的三層新中式別墅方案,五種戶型,五種尺寸
占地:120-165平方米
簡歐風格三層別墅設計圖,外觀看起來很高端、上檔次
占地:139平方米
農村三層蓋房設計圖大全,最新的設計,最新的戶型
占地:150平方米
簡單現代平屋頂兩層四間自建樓房設計圖紙施工方案,簡潔又實用
占地:192平方米
農村一層四間平房設計圖方案,含外觀圖片,預算10萬
占地:190平方米
兩層半新農村別墅設計圖紙,CAD設計圖+高清效果圖
占地:90平方米
140平二層帶閣樓別墅設計方案圖,外觀圖片色彩明快
占地:140平方米
農村15萬元二層小樓圖,經濟實用小別墅設計圖
占地:105平方米
180平方米新農村自建二層小別墅設計圖及效果圖,15X13米
占地:183平方米
新農村私人別墅建筑設計施工圖,全套別墅設計圖紙
占地:多種戶型
經典小戶型二層新農村房屋設計圖紙,客廳中空,造價20萬
占地:94平方米
14x12.5米二層農村別墅設計圖,布局完美獨立,顏值高又實用
占地:153.95平方米
新農村二層半房屋設計圖紙及效果圖,別墅設計圖精選
占地:113平方米
2026最美三層別墅設計圖紙及效果圖,十佳最美農村別墅
占地:151平方米
農村一層房屋設計圖,自建一層房子圖紙推薦
占地:200平方米
面寬20米大氣的農村二層別墅設計圖,戶型帶車庫和土灶房設計
占地:250.85平方米
三層農村自建房別墅設計圖紙,大廳中空,外觀高端大氣
占地:230平方米
20萬左右普通農村房子設計圖,二層簡約小別墅
占地:140平方米
推薦:10套新農村自建房設計圖,2026年最新設計
閱讀次數:4825737次
100套鄉村別墅圖片大全,2026年最新設計
閱讀次數:2492203次
6款農村蓋一層平房的設計圖,10萬元就能建起來
閱讀次數:1852637次
這11個一層農村自建房別墅火爆了朋友圈!我最喜歡戶型十!你呢
閱讀次數:750268次
農村6萬元建一層小別墅圖,你敢相信嗎
閱讀次數:567686次
農村5萬塊就能自建房,6套普通房子設計圖分享,你沒看錯!
閱讀次數:419410次
8套農村漂亮三間平房圖片,非常適合在農村修建!
閱讀次數:411197次
農村自建房化糞池怎么做?附方案及施工過程
閱讀次數:391783次
農村一層三間平房設計圖,告別土氣養老房,讓人忍不住點贊
閱讀次數:350581次
新農村二層樓房圖片造價12萬,挑一套回家建房吧!
閱讀次數:349126次
