
|
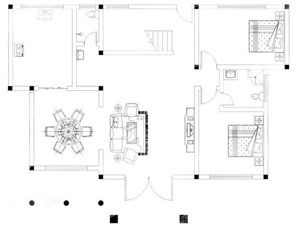
美好的東西總是讓人留戀,讓人駐足,對于漂亮而優雅的別墅,我們自然會贊賞一番,并幻想著如果是自己的房子就好了。對于農村自建房,一套完美的戶型,不僅要外觀引人注目,還要室內合理布局,住房體驗舒適才是最好的,下面給大家分享2款磚混結構三層別墅設計圖。 【戶型1】 本套三層別墅設計圖開間進深14×12米,采用磚混結構,主體造價45萬。一層設有2廳2臥2衛1廚,二層設有1廳4臥2衛1陽臺1露臺,三層設有1廳3臥2露臺2衛。
戶型1效果圖 本戶型一二層外墻采用淡黃色墻磚裝飾,三層采用白色真石漆噴涂,帶有橫線條,搭配橘紅色坡面屋頂,融入巧克力色窗套、腰線,簡潔大氣,結合拱形窗與方形窗設計方式,線條優美,棱角分明。 建筑平面圖
一層平面圖 一層布局:客廳、餐廳、臥室(帶衛生間)、臥室、廚房、公衛、樓梯間
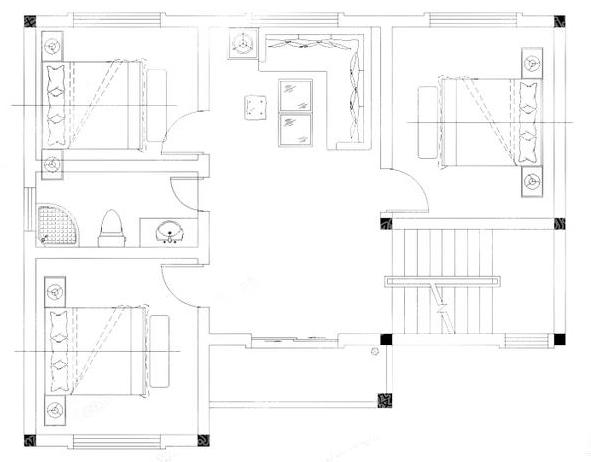
二層平面圖 二層布局:客廳(帶陽臺)、臥室(帶衛生間)、臥室(帶露臺)、臥室*2、公衛
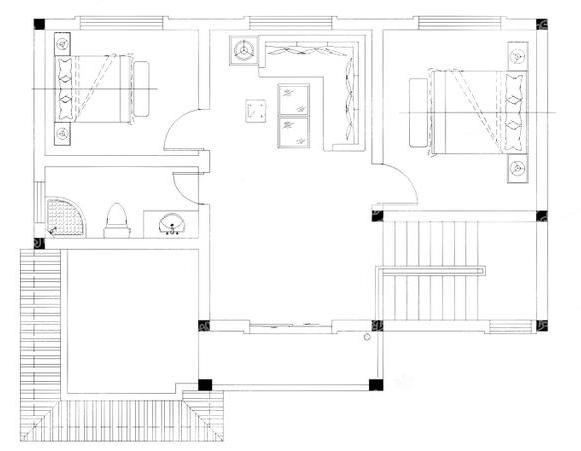
三層平面圖 三層布局:客廳(帶露臺)、露臺、臥室(帶衛生間)、臥室*2、公衛 【戶型2】
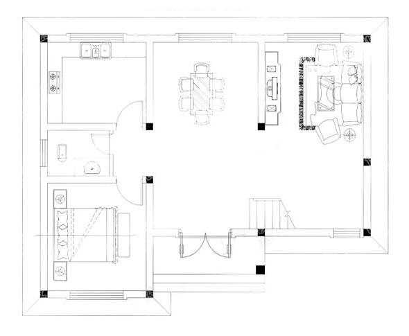
戶型2效果圖 本套三層別墅設計圖開間進深11×9米,采用磚混結構,主體造價28萬。一層設有2廳1臥1廚1衛,二層設有1廳3臥1陽臺1衛,三層設有1廳2臥1陽臺1露臺1衛。
建筑平面圖
一層平面圖 一層布局:客廳、餐廳、臥室、廚房、衛生間
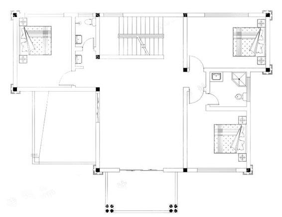
二層平面圖 二層布局:客廳(帶陽臺)、臥室*3、衛生間
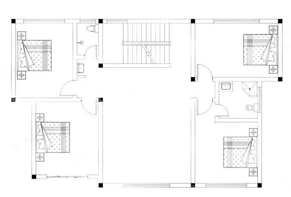
三層平面圖 三層布局:客廳(帶陽臺)、露臺、臥室*2、衛生間 圖紙之家-專注農村別墅/自建房設計18年,集合國內200余位經驗豐富的設計師,被評為口碑最好的農村建筑設計公司! |

農村二層住宅設計圖,大窗戶客廳,一起享受大面積采光的溫暖
占地:220平方米
預算30萬三層樓房設計圖含效果圖,戶型經典
占地:125平方米
經典的農村三層小樓房設計圖,外觀圖片時尚、精致
占地:100平方米
全套三層農村房屋設計圖紙,客廳中空,大大的窗戶,采光極好,
占地:160平米
120平米簡單實用型農村小別墅設計圖,二層屋頂為全露臺,小開間
占地:120平方米
時尚典雅歐式三層自建房設計圖,美觀大氣簡單舒適,好看到沒得
占地:153.12平方米
高端大氣三層別墅設計圖,建好就是村里最靚的
占地:120平方米
精致農村別墅圖,150平米一層三合院設計,四臥二廳舒適宜居
占地:149.43平方米
高顏值農村二層別墅設計圖,顏值在線造價不高,建房好選擇!
占地:216.93平方米
三層帶車庫樓中樓建房別墅圖紙,占地130平米左右,戶型室內布局
占地:130平方米
四層農村別墅設計圖,一二層都有廚房和餐廳的戶型方案
占地:128.52平方米
旋轉樓梯挑空獨棟二層簡歐小別墅設計圖,大氣時尚
占地:189.26平方米
小戶型三層別墅設計圖,戶型經典,外觀精致、美觀
占地:95平方米
160平小開間大進深農村三層別墅設計圖紙
占地:158.73平方米
210平米新農村自建二層施工圖紙,預留電梯位,美觀大氣舒適實用
占地:208.5平方米
三層新中式別墅設計圖,面寬12米經典漂亮
占地:154.93平方米
帶地下室獨棟三層高端別墅房圖紙設計圖,復式客廳旋轉樓梯
占地:146.145平方米
三層新農村住宅設計圖及效果圖,三層樓房設計圖展示
占地:140平方米
造型新穎漂亮的農村二層現代風別墅設計圖,老少皆宜的外觀
占地:144.54平方米
農村10萬自建一層平房設計圖,占地面積120平米
占地:120平方米
推薦:10套新農村自建房設計圖,2026年最新設計
閱讀次數:4825737次
100套鄉村別墅圖片大全,2026年最新設計
閱讀次數:2492203次
6款農村蓋一層平房的設計圖,10萬元就能建起來
閱讀次數:1852637次
這11個一層農村自建房別墅火爆了朋友圈!我最喜歡戶型十!你呢
閱讀次數:750268次
農村6萬元建一層小別墅圖,你敢相信嗎
閱讀次數:567686次
農村5萬塊就能自建房,6套普通房子設計圖分享,你沒看錯!
閱讀次數:419410次
8套農村漂亮三間平房圖片,非常適合在農村修建!
閱讀次數:411197次
農村自建房化糞池怎么做?附方案及施工過程
閱讀次數:391783次
農村一層三間平房設計圖,告別土氣養老房,讓人忍不住點贊
閱讀次數:350581次
新農村二層樓房圖片造價12萬,挑一套回家建房吧!
閱讀次數:349126次
