
|
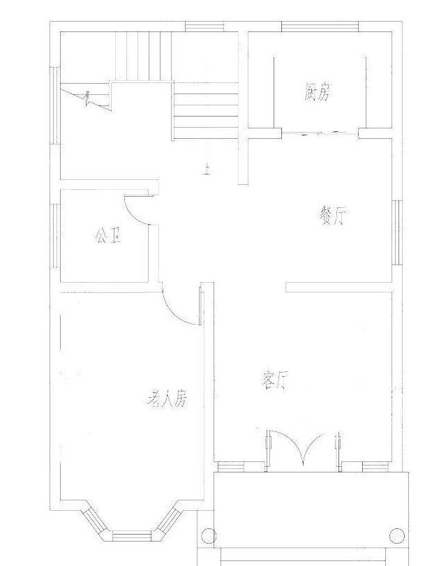
這是一款進深比開間長的戶型,這總戶型在設計的時候,采光是一大難點,如何布局并能讓室內采光明亮對設計是來說是一大挑戰。該戶型將最重要的功能區域設在采光效果最佳的角度,如老人房、客廳均設在南面,廚房設在北面利于開窗,二樓的主臥室也設在南面,采光效果最佳。
效果圖 外觀設計上,本套二層農村自建房設計圖設有大氣的門廊,架空的露臺為二樓主臥提供了活動空間。正立面左邊的一二層均設有飄窗,延伸臥室空間,一層外墻和屋頂均采用濃烈的磚紅色裝飾,二層搭配清新淡雅的黃色墻漆,色彩過渡自然。 圖紙詳情:這款農村自建房設計圖開間進深8米×11.3米,一層占地面積99.64㎡,總建筑面積203.32㎡,采用磚混結構,主體造價25萬左右。 建筑平面圖展示
一層平面圖 一層:客廳、老人房、餐廳、廚房、公衛、
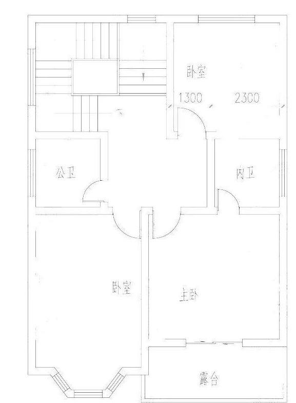
二層平面圖 二層:主臥(帶露臺、內衛)、臥室*2、公衛 圖紙之家-專注農村別墅/自建房設計18年,集合國內200余位經驗豐富的設計師,被評為口碑最好的農村建筑設計公司! |

農村三層中式仿古別墅設計圖紙,中國風自建房戶型
占地:158.64平方米
新中式三層別墅設計圖紙(含效果圖),110平農村自建房施工圖推
占地:110平方米
13.5米乘11米兩層半別墅設計圖,中式與現代相融合
占地:148.5平方米
面寬8米的新農村三層自建房設計圖平屋頂,全套cad圖紙+效果圖
占地:115平方米
歐式豪華三層別墅設計圖,占地面積170平米,高端大氣帶露臺
占地:170平方米
二層復式雙拼別墅設計圖(客廳中空),含外觀效果圖
占地:195平方米
120平方米新農村房屋設計圖紙,新中式效果圖,3層住宅設計方案
占地:120平方米
歐式風格三層自建房設計圖,外觀高端大氣,彰顯業主的高貴品質
占地:180平方米
114平方米農村四層別墅設計圖紙及效果圖,11X11米
占地:114平方米
農村兩層帶地下室別墅設計圖,還帶庭院規劃,適合農村建
占地:144.5平方米
經典三層別墅設計圖紙(全套施工圖+效果圖),新農村自建推薦
占地:123平方米
新中式三層別墅,旋轉樓梯+挑空客廳,高級感拉滿
占地:125平方米
帶小院七字形一層自建房戶型設計圖,平屋頂圖紙
占地:201.08平方米
精致時尚一層雙拼別墅設計圖,造價實惠,起居互不打擾
占地:369.54平方米
農村60萬三層別墅新款式設計圖,外觀和實用性并駕齊驅
占地:170平方米
歐式三層小洋樓設計圖,外觀氣派,典雅、高貴
占地:145平方米
大戶型高端三層別墅設計圖紙,外觀效果圖+CAD建筑圖
占地:227平方米
新農村三層帶露臺自建房設計施工圖,農村自建別墅推薦
占地:112平方米
高端豪華三層別墅住宅設計方案圖,歐式外觀風格
占地:170平方米
170平方米歐式三層雙拼別墅建筑設計圖紙及效果圖片
占地:172平方米
推薦:10套新農村自建房設計圖,2026年最新設計
閱讀次數:4825737次
100套鄉村別墅圖片大全,2026年最新設計
閱讀次數:2492203次
6款農村蓋一層平房的設計圖,10萬元就能建起來
閱讀次數:1852637次
這11個一層農村自建房別墅火爆了朋友圈!我最喜歡戶型十!你呢
閱讀次數:750268次
農村6萬元建一層小別墅圖,你敢相信嗎
閱讀次數:567686次
農村5萬塊就能自建房,6套普通房子設計圖分享,你沒看錯!
閱讀次數:419410次
8套農村漂亮三間平房圖片,非常適合在農村修建!
閱讀次數:411197次
農村自建房化糞池怎么做?附方案及施工過程
閱讀次數:391783次
農村一層三間平房設計圖,告別土氣養老房,讓人忍不住點贊
閱讀次數:350581次
新農村二層樓房圖片造價12萬,挑一套回家建房吧!
閱讀次數:349126次
