
|
雖然很多從農村出來的朋友都在城里買房了,但是更多的人還是愿意回到鄉村,方便照顧家里的同時,也能方便朋友親戚互相走動。在經濟條件允許的情況下,都愿意回家建一棟小別墅。 今天給大家推薦8棟120平米左右的農村別墅戶型,符合宅基地批準,建成之后家人喜歡鄰里夸。 第一款
清爽的二層小樓,外觀上由文化石與米白色真石漆分層裝飾,加上藍色坡屋頂,經典又耐看。 基本信息 別墅編號:MS1702127 占地尺寸:12.04X10.54米 占地面積:120平方米 建筑面積:224平方米 結構類型:磚混結構 平面布局圖
第二款
這款別墅造型、結構簡練大方,整體自然和諧,暖色的真石漆材質和深藍色坡屋頂相搭配,沉穩而大氣。 基本信息 別墅編號:MS1803029 占地尺寸:10x12米 占地面積:120平方米 建筑面積:393.43平方米 結構類型:框架結構 主體造價:38-45萬左右 平面布局圖
第三款
這款別墅外觀簡約,加入少許文化石點綴。占地方方正正,外部構件簡單,施工簡單,造價節約。 基本信息 別墅編號:MS1702151 占地尺寸:11.8X10.6米 占地面積:121.85平方米 建筑面積:298.53平方米 結構類型:框架結構 造價預算:30-36萬左右 平面布局圖
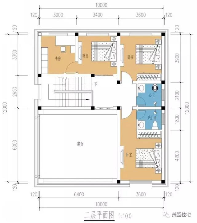
第四款
富有田園氣息的三層小樓,一層為文化石裝飾,富有韻味。內部戶型合理實用,回鄉建一棟很合適。 基本信息 別墅編號:MS1703189 占地尺寸:11.76X10.26米 占地面積:126平方米 建筑面積:322.75平方米 結構類型:磚混結構 造價預算:25萬左右 平面布局圖
第五款
暖黃色真石漆外觀,顯得溫馨舒適,正面門廊高大氣派,右側多邊形采光窗,美觀實用。 基本信息 別墅編號:MS1703201 占地尺寸:10.8X12.75米 占地面積:126平方米 建筑面積:340平方米 結構類型:磚混結構 主體造價:26-34萬左右 平面布局圖
第六款
實用的平屋頂別墅,兩層的層高布置,內部帶有五間臥室,戶型經典非常實用。 基本信息 別墅編號:MS1802011 占地尺寸:11.94X11.52米 占地面積:123.63平方米 建筑面積:229.76平方米 結構類型:磚混結構 主體造價:18-23萬左右 平面布局圖
第七款
漂亮的現代別墅,純白色外觀顯得大方十足。別墅外觀錯落有致,層層遞進,生出一種層次美。 基本信息 別墅編號:MS1803007 占地尺寸:8.3X14.8米 占地面積:122.84平方米 建筑面積:248.49平方米 結構類型:異性框架結構 主體造價:25-30萬左右 平面布局圖
第八款
回農村建一棟二層帶露臺的小別墅,正好可以方便家中晾曬。棕色真石漆外觀,低調又沉穩。 基本信息 別墅編號:MS1702129 占地尺寸:10.2X12.2米 占地面積:125平方米 建筑面積:207平方米 結構類型:磚混結構 平面布局圖
![]() 圖紙之家-專注農村別墅/自建房設計18年,集合國內200余位經驗豐富的設計師,被評為口碑最好的農村建筑設計公司! |

120平米左右農村房屋設計圖占地面積適宜,外觀舒適大氣
占地:120平方米
100平方米左右新農村二層房屋設計建筑CAD圖紙帶外觀效果圖
占地:多戶型可選
15×12米一層農村寶藏戶型,適合養老房,看完鄰居直接要圖紙!
占地:180平方米
一層農村必蓋戶型設計方案,養老自住兩相宜,經濟實惠又耐用!
占地:150.36平方米
大氣的150平方米新中式三層別墅建筑圖及效果圖
占地:150平方米左右
戳中年輕人喜好!時尚三層自建房,簡約時尚設計,住著舒適自然
占地:169.76平方米
140平方米新農村復式自建房子,三層別墅建筑圖紙及效果圖
占地:138平方米
農村中式兩層雙拼別墅房屋設計圖,含效果圖片
占地:200平方米
高端三層豪宅別墅設計方案圖,帶地下室,過悠然愜意生活
占地:127.06平方米
美爆的三層經典復式別墅設計圖紙及效果圖,建好更漂亮
占地:130平方米左右
在農村30萬可以建造的三層別墅款式,帶別墅外觀圖片
占地:138平方米
農村兄弟雙拼二層四合院別墅設計圖,戶型左右對稱
占地:430平方米
經典美式風100平米二層小別墅設計方案,鄉村建房首選
占地:100.17平方米
四開間二層別墅設計圖,造型精美經典舒適,火爆全村的戶型
占地:150.882平方米
二層農村別墅新風尚,簡約實用,性價比高,美麗又實惠
占地:126平方米
二層農村小別墅自建房設計圖,布局實用,占地150平
占地:149.05平方米
農村一層自建房子設計圖紙及效果圖,戶型方正
占地:多戶型可選
歐式大氣新農村三層別墅豪宅設計圖,外觀高端,對稱設計
占地:225平方米左右
占地200平農村二層自建房設計方案戶型,陽面臥室多
占地:208平方米
自建帶電梯的三層豪華別墅設計圖,建好有面子,面寬16米
占地:194平方米左右
推薦:10套新農村自建房設計圖,2026年最新設計
閱讀次數:4825737次
100套鄉村別墅圖片大全,2026年最新設計
閱讀次數:2492203次
6款農村蓋一層平房的設計圖,10萬元就能建起來
閱讀次數:1852637次
這11個一層農村自建房別墅火爆了朋友圈!我最喜歡戶型十!你呢
閱讀次數:750268次
農村6萬元建一層小別墅圖,你敢相信嗎
閱讀次數:567686次
農村5萬塊就能自建房,6套普通房子設計圖分享,你沒看錯!
閱讀次數:419410次
8套農村漂亮三間平房圖片,非常適合在農村修建!
閱讀次數:411197次
農村自建房化糞池怎么做?附方案及施工過程
閱讀次數:391783次
農村一層三間平房設計圖,告別土氣養老房,讓人忍不住點贊
閱讀次數:350581次
新農村二層樓房圖片造價12萬,挑一套回家建房吧!
閱讀次數:349126次
