
|
本套四層農村別墅設計亮點:
圖紙詳情 層數: 四層 結構形式: 框架結構 開間: 11.6米 進深: 15.7米 占地面積: 165平方米 建筑面積: 568平方米 主體造價: 60萬
設計功能
一層:大堂、 挑空客廳、臥室(帶衛生間)、棋牌室、廚房、餐廳、衛生間、車庫
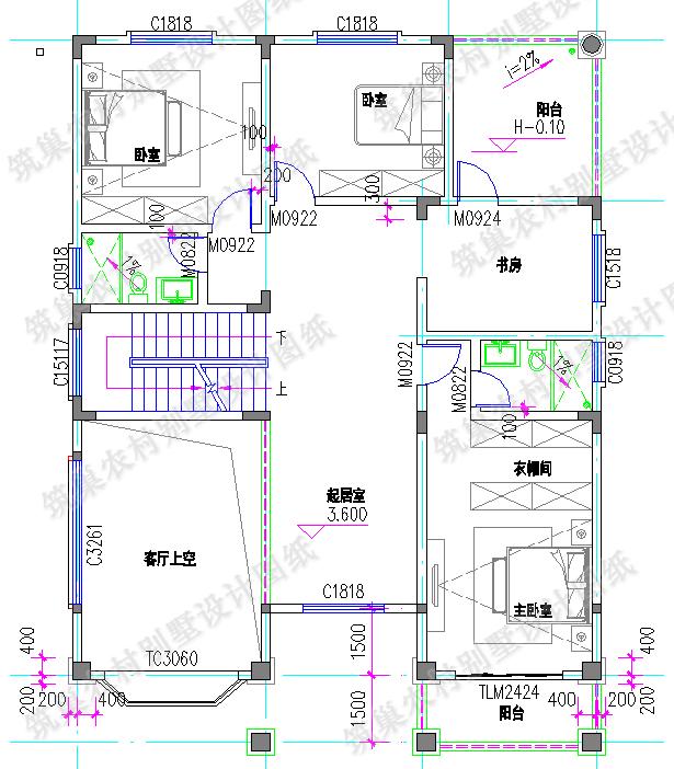
二層:起居室、主臥室(帶衛生間、陽臺)、2次臥、書房(帶陽臺)、衛生間
三層: 影音室(附帶陽臺)、臥室(帶衛生間)、2次臥室、書房(帶陽臺)、衛生間
四層: 臥室(帶衛生間)、臥室、娛樂間(帶小露臺)、公共衛生間、大露臺 圖紙之家-專注農村別墅/自建房設計18年,集合國內200余位經驗豐富的設計師,被評為口碑最好的農村建筑設計公司! |

帶架空層的兩層別墅設計圖,通透又明亮,建在農村絕對有面子
占地:106.79平方米
兄弟雙拼別墅設計戶型圖及設計方案圖,帶外觀效果圖,外觀好看
占地:185平方米(單棟)
230平方米新農村二層自建別墅設計圖紙帶外觀圖,20X11米
占地:227平方米
最漂亮的農村二層小樓圖,平屋頂的設計對于農村來說尤為便利
占地:170平方米
170平方米歐式三層雙拼別墅建筑設計圖紙及效果圖片
占地:172平方米
現代三層復式小別墅設計圖及外觀圖片,25萬造價
占地:105平方米
農村二層四合院設計圖,秒殺各種洋別墅
占地:220平方米
30萬農村小別墅設計圖片,30萬別墅設計戶型推薦
占地:130平方米
帶開放式車庫二層農村自建別墅設計方案,造價僅15萬
占地:89.412平方米
農村四間二層小洋樓設計圖,歐式別墅、現代洋氣
占地:200平方米
二層半農村小別墅設計方案圖,南方設計圖精選
占地:82平方米
農村二層樓房設計圖帶外觀圖片,造價20多萬,13.3x11
占地:146平方米
8萬元二層農村房子圖片及設計圖,簡易二層小樓,占地50平米
占地:50平方米
“L”字形二層別墅設計圖,獨立餐廚加連體露臺,太美了
占地:多戶型可選
闊氣高端的三層別墅設計圖,亮得恰到好處,永遠也住不膩
占地:160平方米
預算30萬三層樓房設計圖含效果圖,戶型經典
占地:125平方米
農村二層樓簡單大氣的樓房設計圖紙,帶車庫,帶露臺
占地:150平方米
帶架空層車庫/地下室自建一層別墅設計圖,隔潮又能儲物
占地:91.32平方米
10米×12米30萬以內農村建房三層豪華歐式別墅圖,處處顯品味
占地:120平方米
農村一層中式三合院別墅設計圖,戶型經典實用,19米乘15米
占地:243.21平方米
推薦:10套新農村自建房設計圖,2026年最新設計
閱讀次數:4825737次
100套鄉村別墅圖片大全,2026年最新設計
閱讀次數:2492203次
6款農村蓋一層平房的設計圖,10萬元就能建起來
閱讀次數:1852637次
這11個一層農村自建房別墅火爆了朋友圈!我最喜歡戶型十!你呢
閱讀次數:750268次
農村6萬元建一層小別墅圖,你敢相信嗎
閱讀次數:567686次
農村5萬塊就能自建房,6套普通房子設計圖分享,你沒看錯!
閱讀次數:419410次
8套農村漂亮三間平房圖片,非常適合在農村修建!
閱讀次數:411197次
農村自建房化糞池怎么做?附方案及施工過程
閱讀次數:391783次
農村一層三間平房設計圖,告別土氣養老房,讓人忍不住點贊
閱讀次數:350581次
新農村二層樓房圖片造價12萬,挑一套回家建房吧!
閱讀次數:349126次
