
|
農村建房形態各異,有雙拼、疊拼、獨棟等戶型,今天小編給大家分享的是2款帶商鋪門面的自建房設計圖,這種戶型一層做門面,自己經營或者出租均可,一層以上自住,是一種特別實用的戶型,馬上來看看圖紙詳情介紹。 【戶型1】
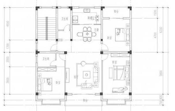
這款三層自建房設計圖開間進深13米×12米,采用框架結構,一層做商鋪使用,二三層為居住樓層,凸窗設計增加外觀立體感,三層的大露臺提供了更多的活動空間,整體外觀設計簡潔大方,施工難度不高,可自住可出租,簡單實用。 戶型1建筑平面圖展示
一層:商鋪、餐廳、廚房、臥室(帶衛生間)、公衛
二層:客廳(帶陽臺)、廚房、餐廳、臥室(帶陽臺)、臥室(帶衛生間)、臥室、公衛
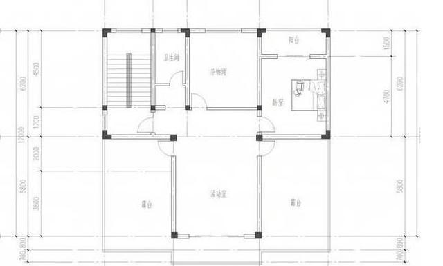
三層:雜物間、活動室(帶露臺)、臥室(帶陽臺)、公衛 【戶型2】 本套三層自建房設計圖開間進深10.2*10.7米,占地面積96平方米,建筑面積281平方米,層高為11.6米,框架結構,總設計有5室3衛。
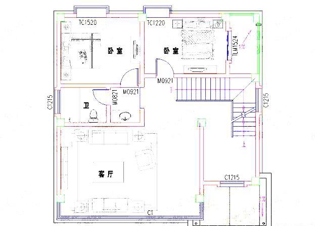
該戶型商住兩用的自建房設計圖,一層可出租,租戶還能住在一層,二三層可以自己住,也可以出租,外觀簡單大氣,二層采用大面積窗戶設計,美觀且采光,屋頂有大露臺,二三層均有陽臺,色彩搭配低調耐看,方便實用。 戶型2建筑平面圖展示
一層:商鋪、餐廳、廚房、臥室、公衛
二層:客廳、臥室(帶陽臺)、臥室、公衛
三層:臥室(帶陽臺)、臥室、公衛、儲藏室、露臺、 圖紙之家-專注農村別墅/自建房設計18年,集合國內200余位經驗豐富的設計師,被評為口碑最好的農村建筑設計公司! |

農村三層中式仿古別墅設計圖紙,中國風自建房戶型
占地:158.64平方米
私家二層農村自建房設計圖及效果圖,造價20萬左右
占地:125平方米
網紅款兩層別墅圖紙設計圖,外觀簡單好看,后面不開窗
占地:171平方米左右
農村兩層新中式仿古四合院別墅戶型圖,小型占地不到200平
占地:193平方米
經典農村三層樓房設計圖,10個不同尺寸戶型,各種戶型供您選擇
占地:多種
農村四層樓房外形設計圖,主臥配有陽臺和衣帽間還有衛生間
占地:126平方米
二層半房子設計圖及效果圖,客廳中空,南北通透
占地:160平方米
小戶型三層別墅設計圖,戶型經典,外觀精致、美觀
占地:95平方米
簡歐復式四層別墅房屋設計圖,外觀圖高端、大氣
占地:143平方米
高端農村三層歐式房屋設計圖紙,帶車庫,帶露臺
占地:163平方米
農村建房的“面子天花板”!新中式簡歐結合三層別墅,進門就被
占地:225.98平方米
120多平米三層農村別墅設計圖,把實用做到極致,造價適中
占地:126.85平方米
農村建房兄弟雙拼兩層住宅設計圖,單戶150平米左右
占地:300平方米
90平方米農村二層房屋設計施工圖紙及效果圖,11x8.5米
占地:90平方米
320平方米高端農村帶車庫四合院別墅設計圖,徽派韻味十足
占地:320.89平方米
新中式二層農村別墅設計圖紙及外觀圖,面寬15米左右
占地:148.86平方米
一層農村自建房設計圖,造型美觀大氣,占地150平
占地:153.415平方米
中式古風別墅設計圖,一層三合院設計,經濟舒適,時尚與傳統的
占地:275.7平方米
漂亮實用的新農村二層小樓圖,造價20萬左右,超大景觀露臺
占地:130平方米
新中式三層雙拼別墅設計圖及效果圖,中式大氣風格
占地:235.26平方米
推薦:10套新農村自建房設計圖,2026年最新設計
閱讀次數:4825737次
100套鄉村別墅圖片大全,2026年最新設計
閱讀次數:2492203次
6款農村蓋一層平房的設計圖,10萬元就能建起來
閱讀次數:1852637次
這11個一層農村自建房別墅火爆了朋友圈!我最喜歡戶型十!你呢
閱讀次數:750268次
農村6萬元建一層小別墅圖,你敢相信嗎
閱讀次數:567686次
農村5萬塊就能自建房,6套普通房子設計圖分享,你沒看錯!
閱讀次數:419410次
8套農村漂亮三間平房圖片,非常適合在農村修建!
閱讀次數:411197次
農村自建房化糞池怎么做?附方案及施工過程
閱讀次數:391783次
農村一層三間平房設計圖,告別土氣養老房,讓人忍不住點贊
閱讀次數:350581次
新農村二層樓房圖片造價12萬,挑一套回家建房吧!
閱讀次數:349126次
