
|
對于住房,很多人的夢想就是能夠擁有一棟屬于自己的別墅,外觀漂亮,室內舒適。現在很多農村人建房開始趨向于建造小洋樓、小別墅,日子也過得越來越滋潤,今天小編給大家分享一款12×12米40萬帶挑空客廳四層農村別墅(全套)設計施工效果圖。
圖紙詳情 層數: 四層 結構形式: 框架結構 開間: 11.55米 進深: 11.975米 占地面積: 121平方米 建筑面積: 390平方米 建筑高度11.6米 主體造價: 40萬 一層建筑面積121㎡ 二層建筑面積87㎡ 三層建筑面積118㎡ 四層建筑面積64㎡ 本套別墅設計亮點:
設計功能
一 層: 廚房、餐廳、挑空客廳、公衛、臥室
二 層: 2臥室、公衛、起居室
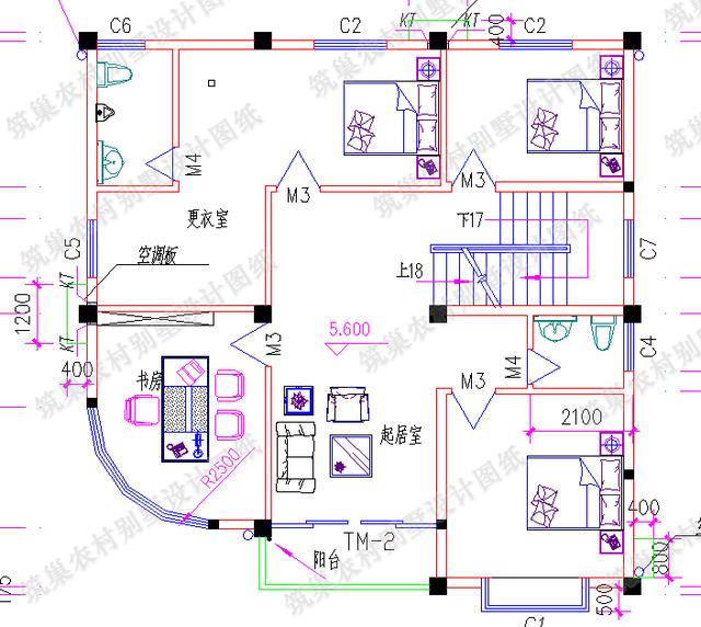
三 層: 起居室(帶陽臺)、臥室(帶衛生間、更衣室)、2次臥、書房、公衛
三層:大露臺、活動廳 圖紙之家-專注農村別墅/自建房設計18年,集合國內200余位經驗豐富的設計師,被評為口碑最好的農村建筑設計公司! |

雙戶168平方米小戶型新農村雙拼樓房設計建筑圖紙帶外觀圖
占地:168平方米
170平方米歐式三層雙拼別墅建筑設計圖紙及效果圖片
占地:172平方米
造價33萬左右超漂亮的三層別墅圖紙設計圖,旋轉樓梯戶型設計
占地:121.59平方米
10X13米新款歐式三層別墅樓房設計圖,外觀清新明亮
占地:140平方米
100平方米自建房二層設計圖紙及效果圖,12x9米
占地:100平方米
100平米左右簡單實用的二層樓房設計圖,施工簡單造價低
占地:95平方米
農村二層小洋樓設計圖,帶外觀效果圖,外觀新穎,漂亮
占地:130平方米
110平預算20萬內三層別墅設計圖,含效果圖
占地:110平方米
農村三層帶地下室住宅設計圖及圖片,房內設計了兩個套間
占地:210平方米
農村簡單雙拼小戶型,總面積190平方米,合理的利用了每一個空間
占地:190平方米
爆款二層自建房別墅設計圖,不追求奢華,建個溫馨實用的家
占地:100平方米
一層4間自建平房別墅及全套戶型圖紙,占地160平左右,簡單實用
占地:162.13平方米
新農村二層帶露臺經濟型小別墅設計圖紙,含外觀效果圖
占地:120平方米
275平方米新農村雙拼樓中樓戶型別墅設計圖紙及效果圖21X14米
占地:275平方米
小戶型現代新農村三層房屋設計建筑圖及效果圖
占地:108平方米
110平農村二層房屋設計圖,新農村自建房戶型推薦
占地:110平方米
四間兩層農村別墅戶型圖,外觀時尚色調搭配和諧,占地超200平米
占地:212.95平方米
農村2開間三層經濟別墅設計圖,9.6米面寬,實用布局
占地:127.68平方米
農村現代新中式三合院設計圖及效果圖片,外觀好看極了
占地:多戶型可選
漂亮時尚二層樓房設計圖紙,經濟實用,戶型通透
占地:150平方米
推薦:10套新農村自建房設計圖,2026年最新設計
閱讀次數:4825737次
100套鄉村別墅圖片大全,2026年最新設計
閱讀次數:2492203次
6款農村蓋一層平房的設計圖,10萬元就能建起來
閱讀次數:1852637次
這11個一層農村自建房別墅火爆了朋友圈!我最喜歡戶型十!你呢
閱讀次數:750268次
農村6萬元建一層小別墅圖,你敢相信嗎
閱讀次數:567686次
農村5萬塊就能自建房,6套普通房子設計圖分享,你沒看錯!
閱讀次數:419410次
8套農村漂亮三間平房圖片,非常適合在農村修建!
閱讀次數:411197次
農村自建房化糞池怎么做?附方案及施工過程
閱讀次數:391783次
農村一層三間平房設計圖,告別土氣養老房,讓人忍不住點贊
閱讀次數:350581次
新農村二層樓房圖片造價12萬,挑一套回家建房吧!
閱讀次數:349126次
