
|
很多農村建房對于宅基的地面積有要求,一般都在120平左右,面積太大審批不下來,所以農村別墅不僅要外觀時尚,室內布局符合農村生活城需求,在面積上也有要求。今天就給大家推薦一款兩層占地面積在120平左右的農村別墅,非常適合農村建房要求和生活需要。
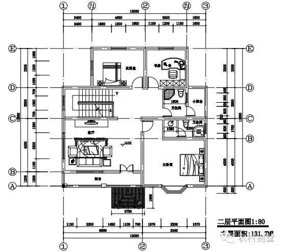
開間:12米 進深:11.6米 占地面積:119平 地面建筑面積:250.7平 建筑層數:二層 建筑高度:6.5米,坡屋頂 結構形式:磚混結構 主體造價參考:15-20萬
本戶型為二層獨棟別墅,外觀造型簡潔大氣,色彩明快,功能分區合理,房間尺度設計適宜,采光通風良好。
一層設有客廳、廚房、餐廳、麻將室、衛生間、臥室1間。
二層設有客廳、主臥室、次臥室、2個衛生間、1個書房、大小陽臺各一。
最后,附一張總平面圖,帶園林規劃。
圖紙之家-專注農村別墅/自建房設計18年,集合國內200余位經驗豐富的設計師,被評為口碑最好的農村建筑設計公司! |

3款三層農村自建別墅設計圖,氣派十足,準備建房的快快查看
占地:多戶型可選
新中式農村自建二層別墅設計圖,占地160平米左右,客廳中空
占地:160平方米
二層現代別墅設計圖及效果圖,外觀美觀,大氣
占地:195平方米
一層新中式三合院設計,建好城里大平層都不香了
占地:294.12平方米
一層農村自建房別墅設計圖,簡潔時尚的設計,給父母建養老房
占地:144平方米
簡約精致的二層房子設計圖,農村自建經濟實用
占地:89.76平方米
大氣農村三層歐式雙拼別墅全套施工圖紙,帶堂屋設計,外觀圖片
占地:196.056平方米
新中式二層農村小樓房設計圖,戶型圖方正,外觀大氣
占地:143平方米
150平米一層7字型別墅設計方案,功能齊全舒適簡約,設計感十足
占地:154.48平方米
四層雙拼豪華別墅設計圖及外觀效果圖,貴族氣質爆棚
占地:188.5平方米
復式樓房二層農村別墅圖,村里建一棟絕對人人都羨慕
占地:130.2平方米
大氣的三層鄉村別墅設計方案圖,小面積建出豪宅感
占地:104.9平方米
歐式小型二層別墅效果圖片,帶全套Cad別墅設計圖紙
占地:120平方米
農家中式小院一層三合院自建房,布局寬敞大氣又舒適
占地:186.07平方米
南方新農村三層房屋設計圖大全,預算30萬內
占地:145平方米
農村二層別墅設計圖,帶外觀效果圖,兄弟自建推薦
占地:多種戶型
爆款農村一層別墅圖紙設計,看過的都說漂亮實用
占地:144.91平方米
160平方米農村三層別墅CAD設計圖紙及效果圖,13.7x12.6米
占地:160平方米
兩層半30萬農村自建房別墅設計圖紙,客廳挑空,帶大露臺
占地:130平方米
方方正正的二層農村別墅設計圖,普通農村人都能建
占地:201.05平方米
推薦:10套新農村自建房設計圖,2026年最新設計
閱讀次數:4825737次
100套鄉村別墅圖片大全,2026年最新設計
閱讀次數:2492203次
6款農村蓋一層平房的設計圖,10萬元就能建起來
閱讀次數:1852637次
這11個一層農村自建房別墅火爆了朋友圈!我最喜歡戶型十!你呢
閱讀次數:750268次
農村6萬元建一層小別墅圖,你敢相信嗎
閱讀次數:567686次
農村5萬塊就能自建房,6套普通房子設計圖分享,你沒看錯!
閱讀次數:419410次
8套農村漂亮三間平房圖片,非常適合在農村修建!
閱讀次數:411197次
農村自建房化糞池怎么做?附方案及施工過程
閱讀次數:391783次
農村一層三間平房設計圖,告別土氣養老房,讓人忍不住點贊
閱讀次數:350581次
新農村二層樓房圖片造價12萬,挑一套回家建房吧!
閱讀次數:349126次
