
|
父母在人生尚有來處,父母去人生只剩歸途。我在外地已成家,老爸老媽在鄉下,惦記那清新的空氣,那濃厚的鄉味,不愿與同住。于是打算為父母建小別墅設計效果圖,下面就開始建房之旅。 設計圖紙
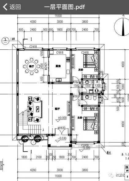
一層設有客廳、主臥帶衛生間、次臥、衛生間、廚房、餐廳。二層設有露臺、陽臺、客廳上空、家庭娛樂室、一個主臥、兩個次臥、衛生間、小孩作業室。 閱讀完整圖紙可以看【建房說】公眾號,還有500套免費圖紙等你來拿。 施工實拍
中間放地梁,兩側磚徹好,扎鋼筋籠,倒混凝土。
主體已完成,水泥,沙,石子,鋼筋,磚13萬元,人工7萬(還有部分未做完,待收尾)。
普通家庭建房的話是不用花費太多的資金,不過每個城市的價錢都是不一樣的。 圖紙之家-專注農村別墅/自建房設計18年,集合國內200余位經驗豐富的設計師,被評為口碑最好的農村建筑設計公司! |

帶閣樓的二層半別墅設計圖和效果圖,外飾簡單但不失奢華
占地:210平方米
160平方米新農村三層半別墅設計圖11X16米65萬以內
占地:160平方米
鄉下三層大氣房子設計圖,外觀挺高大上的,主體29萬多
占地:132.48平方米
30萬以下的經典二層新農村別墅設計圖紙及效果圖,簡單大氣
占地:170平方米
90平方米小戶型自建三層房屋設計圖紙及外觀效果圖
占地:91平方米左右
簡單農村二層平屋頂房屋設計圖,外觀簡潔、大方
占地:200平方米
面寬15米大氣的農村二層復式戶型別墅設計圖紙及外觀圖片
占地:173.28平方米
115平方米農村三層別墅設計圖,預算30萬左右
占地:115平方米
占地180平方米二層鄉村小洋樓設計戶型圖及圖紙,外觀華麗
占地:180平方米
帶架空層的一層自建房太香了!防潮、停車、儲物全兼顧
占地:152.06平方米
小戶型二層四合院別墅設計圖,含外觀效果圖,小宅基地選擇
占地:134平方米
歐式兩層別墅樓房設計圖紙施工方案,高端豪華外觀圖片
占地:138平方米
2026最新款獨棟中西雙餐廳三層別墅設計圖,精巧實用好看不貴
占地:226.12平方米
250平方米農村三層別墅設計圖紙及效果圖大全,18.3x15米
占地:247平方米
140平方米三層別墅設計圖紙,歐式帶外觀效果圖
占地:140平方米
大氣自建三層雙拼別墅戶型圖方案,完美的戶型就是它
占地:287平方米
最實用一層小別墅設計方案,造價不高顏值高,家家都喜歡!
占地:143.48平方米
100-140平多戶型二層經典新農村小別墅設計建筑圖紙
占地:多種戶型
農村二層樓房設計圖帶外觀圖片,造價20多萬,13.3x11
占地:146平方米
帶閣樓兩層半雙拼別墅房屋設計圖,帶外觀效果圖
占地:240平方米
推薦:10套新農村自建房設計圖,2026年最新設計
閱讀次數:4825737次
100套鄉村別墅圖片大全,2026年最新設計
閱讀次數:2492203次
6款農村蓋一層平房的設計圖,10萬元就能建起來
閱讀次數:1852637次
這11個一層農村自建房別墅火爆了朋友圈!我最喜歡戶型十!你呢
閱讀次數:750268次
農村6萬元建一層小別墅圖,你敢相信嗎
閱讀次數:567686次
農村5萬塊就能自建房,6套普通房子設計圖分享,你沒看錯!
閱讀次數:419410次
8套農村漂亮三間平房圖片,非常適合在農村修建!
閱讀次數:411197次
農村自建房化糞池怎么做?附方案及施工過程
閱讀次數:391783次
農村一層三間平房設計圖,告別土氣養老房,讓人忍不住點贊
閱讀次數:350581次
新農村二層樓房圖片造價12萬,挑一套回家建房吧!
閱讀次數:349126次
