
|
【項目名稱】:廣東8.4X11.0帶后院新款農村三層樓房圖片
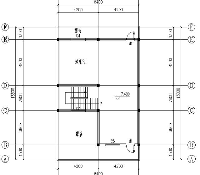
【建筑面積】:250平方米 【建筑高度】:11.390米 【功能布局】:4臥室1客廳1多功能廳2衛生間1廚房1娛樂室1露臺1后院
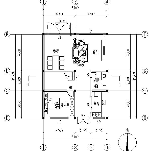
一層的老人房沒有內設衛生間,不過和衛生間的距離也不遠,問題不大(有的地區不喜臥室內設衛生間)。
因開間實在是太小所以,二樓只有一個公用衛生間,將剩余的面積充分利用到臥室上,另主臥獨享一個陽臺。
樓樓點評:當宅基地受限制,而不想房子建成窄窄地豆腐塊,那么這個設計就能更好的表現出設計后與不設計的住宅的區別了。此戶型開間僅為8.4米,整體外觀效果看起來卻不顯得小氣,三層的房子一二層均采用落地大窗,通光性很好。外觀文化石和琉璃瓦的色彩搭配,清新脫俗,有古雅之風。 圖紙之家-專注農村別墅/自建房設計18年,集合國內200余位經驗豐富的設計師,被評為口碑最好的農村建筑設計公司! |

三層現代簡約農村雙拼小別墅圖,好看精致,開間17米
占地:187平方米
歐式獨棟二層小別墅設計圖,客廳中空,占地126平米
占地:120平方米
110平左右農村復式二層小樓設計圖,外觀非常受歡迎
占地:112平方米
2026最受歡迎的三層農村小別墅設計圖紙,占地155平方米
占地:155平方米
140平米一層農村自建房設計圖,好看不貴簡約耐看
占地:141.12平方米
實用農村三層房屋設計圖紙,效果圖+全套施工圖
占地:113平方米
鄉村一層房屋設計圖,養老還是一層好,多臥室的設計
占地:195平方米
經典三層別墅設計圖,時尚典雅美觀大氣,新農村自建的理想之選
占地:119.45平方米
人氣頗高的三層新中式別墅方案,五種戶型,五種尺寸
占地:120-165平方米
戶型好的三層帶獨立車庫的樓房設計圖,含外觀效果圖
占地:148平方米
簡單大氣的農村二層樓設計圖,二層歐式農村別墅設計圖
占地:180平方米
新中式三層別墅,旋轉樓梯+挑空客廳,高級感拉滿
占地:125平方米
130平方米湖南二層復式自建房屋設計圖紙12x11米
占地:128平方米
新農村自建二層樓房戶型設計圖,簡單大氣,外觀漂亮精致
占地:多種戶型
獨棟別墅設計戶型圖帶外觀效果圖,雙向樓梯設計
占地:155平方米
160平方米新農村三層半別墅設計圖11X16米65萬以內
占地:160平方米
165平方米三層雙拼農村房屋設計圖大全14x12
占地:168平方米
新農村140平米樓房圖四層獨棟別墅設計圖,簡歐外觀風格設計
占地:141平方米
面寬10米左右的三層農村別墅設計案例,低調又奢華
占地:120平方米
新農村中式一層三合院效果圖及全套設計圖,喜歡合院的有福了
占地:118平方米
推薦:10套新農村自建房設計圖,2026年最新設計
閱讀次數:4825737次
100套鄉村別墅圖片大全,2026年最新設計
閱讀次數:2492203次
6款農村蓋一層平房的設計圖,10萬元就能建起來
閱讀次數:1852637次
這11個一層農村自建房別墅火爆了朋友圈!我最喜歡戶型十!你呢
閱讀次數:750268次
農村6萬元建一層小別墅圖,你敢相信嗎
閱讀次數:567686次
農村5萬塊就能自建房,6套普通房子設計圖分享,你沒看錯!
閱讀次數:419410次
8套農村漂亮三間平房圖片,非常適合在農村修建!
閱讀次數:411197次
農村自建房化糞池怎么做?附方案及施工過程
閱讀次數:391783次
農村一層三間平房設計圖,告別土氣養老房,讓人忍不住點贊
閱讀次數:350581次
新農村二層樓房圖片造價12萬,挑一套回家建房吧!
閱讀次數:349126次
