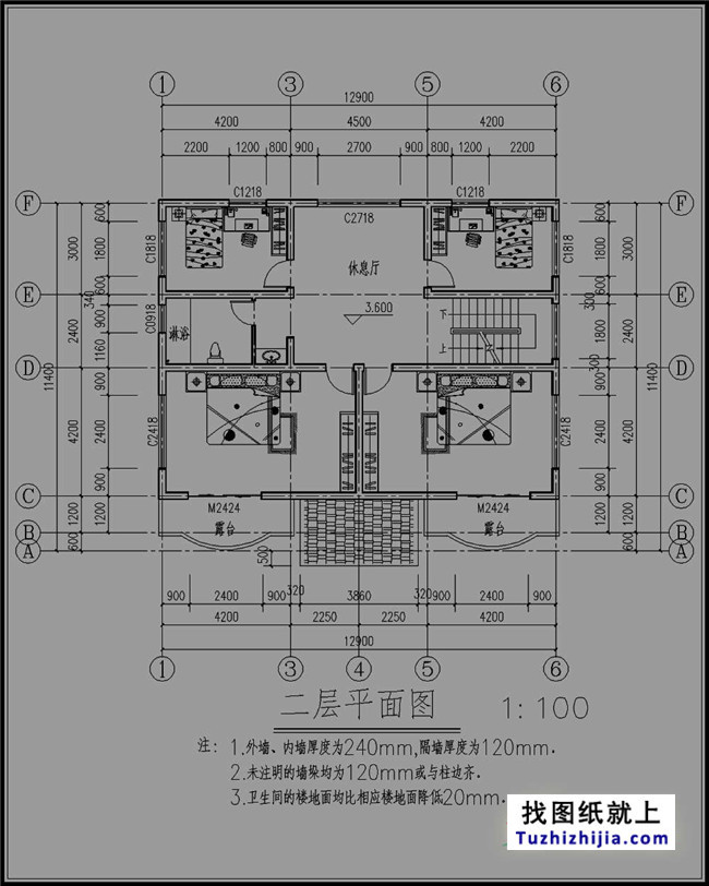
占地尺寸:面寬12.9米x進深11.4米
占地面積:140平方
建筑總面積/總層高:362平米(不含入戶平臺、陽臺、露臺)/總高12米,屋檐口高10.2米
施工圖(建施圖、結施圖、水施圖、電施圖)共41張,效果圖1張。
建施圖指(建筑說明、每層平面圖、各面立面施工圖、以及剖面圖、門窗、節點詳圖等)16張
結施圖指(結構說明、基礎圖、柱配筋、板配筋、梁配筋等與鋼筋結構有關的圖紙)14張
水施圖指(水路說明、給水系統、排水系統、給排水詳細布置等)7張
電施圖指(電路說明、電路系統、強弱電位置/線路布置、燈控照明、防雷系統等)6張






































































































