
|
如今農村建房風格越來越多樣化,什么樣的風格和功能都有,隨著我國經濟的快速發展,農村房屋功能設計也是多樣化、現代化、城市化,只有你想不到,沒有你做不到的。今天小編給大家分享3款簡單實用三層農村自建小洋樓別墅全套施工圖 ,這3套圖紙面寬都是11米,外觀造型簡約,造價經濟,施工簡單! 01
別墅介紹 層數: 三層 結構形式: 磚混結構 主體造價: 26-30萬 開間: 11米 進深:11米(含門柱、半旋轉樓梯 需要的總土地尺寸是12米X12米) 占地面積: 123.93平方米 建筑面積:297.81平方米 功能設計 一 層: 門廳、餐廳、客廳、廚房、臥室、主臥室、衛生間 二 層: 主臥室(陽臺)、2個臥室、衛生間 三 層: 露臺花園、陽臺、主臥室、2個臥室、衛生間 平面圖展示:
一層平面圖
二層平面圖
三層平面圖 02
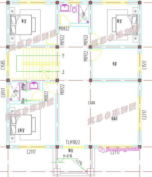
戶型基本信息 層數:三層 結構形式:磚混結構 主體造價:24-28萬 開間:11.2米 進深:13.9米(含門柱進深在內) 占地面積:140.92平方米 建筑面積:372.53平方米 設計功能 一 層:門廳、客廳、餐廳、廚房、臥室、衛生間、車庫 二 層:4間臥室、棋牌室、衛生間、露臺 三 層:2間臥室、活動室、休息區、衛生間、露臺 平面布局圖:
一層平面圖
二層平面圖
三層平面圖 03
房屋簡介 層數: 三層 結構形式: 磚混結構 主體造價: 24-28萬 開間: 10.7米 進深: 11.7米 占地面積: 130平方米 建筑面積: 349平方米 設計功能 一 層: 堂屋、客廳、臥室廚房、餐廳、儲藏室、公共衛生間、樓梯 二 層: 主臥(附衛生間)、2個次臥室、客廳帶陽臺、公共衛生間、書房。 三 層: 主臥(附衛生間)、2次臥室、書房、公共衛生間、露臺。 室內功能布局圖:
一層平面圖
二層平面圖
三層平面圖 圖紙之家-專注農村別墅/自建房設計18年,集合國內200余位經驗豐富的設計師,被評為口碑最好的農村建筑設計公司! |

田園風格別墅設計圖紙及效果圖,三層鄉村小別墅設計方案
占地:166.4平方米
高端大氣的農村四層樓房別墅設計圖,戶型真不錯,占地130多平
占地:135.31平方米
鄉村高檔四層豪華別墅自建房設計圖,一層不帶餐廳廚房戶型
占地:147平方米
新中式二層雙拼樓房設計圖,單戶面積100平米左右,實用美觀
占地:200平方米
230平方農村雙拼別墅設計圖,26x11米自建房屋戶型
占地:230平方米
帶架空層一層農村別墅設計圖,回鄉建房優選,家有豪宅幸福來敲
占地:124.76平方米
兩層中式三合院別墅設計圖紙,堂屋套臥全都有,蓋一棟面子十足
占地:181.93平方米
農村三層中式仿古別墅設計圖紙,中國風自建房戶型
占地:158.64平方米
農村三層15萬自建房圖,小戶型別墅設計方案圖
占地:60平方米
50萬以內的歐式三層房屋別墅施工設計圖紙及效果圖
占地:169平方米
2026最美三層別墅設計圖紙及效果圖,十佳最美農村別墅
占地:151平方米
農村兄弟雙拼別墅三層,美觀氣派,室內布局合理實用
占地:300平方米
2026年新款別墅外觀圖,新中式風格,比簡歐大氣,時尚
占地:135平方米
二層美式自建別墅設計圖,全套施工圖+外觀效果圖
占地:145平方米
110平方米新農村二層別墅設計圖及效果圖,12.36x9.36米
占地:115平方米
帶閣樓的二層半別墅設計圖和效果圖,外飾簡單但不失奢華
占地:210平方米
12x9米自建一層小別墅設計圖,占地不大造價低,簡單舒適人人夸
占地:108.36平方米
30萬預算三層別墅設計圖紙及效果圖,新農村自建推薦
占地:110平方米
農村兩層新中式別墅圖紙設計圖,外觀圖片大氣,21萬左右
占地:108平方米
175平大客廳三層別墅房屋設計圖,含外觀造型現代,美觀
占地:175平方米
推薦:10套新農村自建房設計圖,2026年最新設計
閱讀次數:4825737次
100套鄉村別墅圖片大全,2026年最新設計
閱讀次數:2492203次
6款農村蓋一層平房的設計圖,10萬元就能建起來
閱讀次數:1852637次
這11個一層農村自建房別墅火爆了朋友圈!我最喜歡戶型十!你呢
閱讀次數:750268次
農村6萬元建一層小別墅圖,你敢相信嗎
閱讀次數:567686次
農村5萬塊就能自建房,6套普通房子設計圖分享,你沒看錯!
閱讀次數:419410次
8套農村漂亮三間平房圖片,非常適合在農村修建!
閱讀次數:411197次
農村自建房化糞池怎么做?附方案及施工過程
閱讀次數:391783次
農村一層三間平房設計圖,告別土氣養老房,讓人忍不住點贊
閱讀次數:350581次
新農村二層樓房圖片造價12萬,挑一套回家建房吧!
閱讀次數:349126次
