
|
三層的布局設計很適合生活,外墻施工特別考驗工人師傅的手藝,不過現在看來,還是很不錯的。
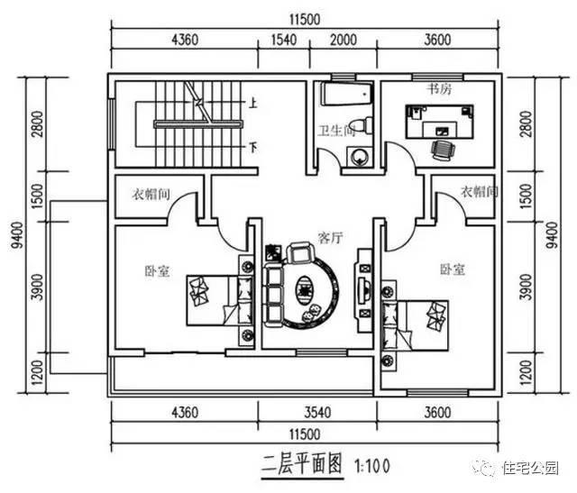
平面布局圖: 房子一共首層布局還算是中規中矩,挺穩重的,帶有神位設計,西側還有一間老人房,可供家里老人在此居住生活。
別墅只有一個客廳這哪夠,最好是在二層也同樣有一間客廳設計這才符合咱們的日常生活,主臥也必須要帶一個衣帽間,方便。
不過這三層的客廳也著實有點多,以后可以另行改造,弄成臥室也不錯。
轉載請注明出自別墅設計網:http://m.bjcyqiyejia.com/ 千套別墅設計帶別墅圖片 |

110平方米二層自建小別墅設計CAD施工圖紙帶效果圖,12x13米
占地:110平方米
農村60萬三層別墅新款式設計圖,外觀和實用性并駕齊驅
占地:170平方米
農村25萬元二層小樓圖,經典大氣建成20年不過時
占地:150平方米
農村18萬元二層小樓圖,帶開放式車庫
占地:110平方米
面寬8米多小開間三層農村別墅設計圖,占地不足百平
占地:95.21
漂亮實用三層新農村小別墅設計圖紙,占地150平米,帶露臺,從哪
占地:150平方米
歐式四層(三層半)獨棟別墅設計圖復式,設計豪華時尚
占地:194平方米
14米×10米農村二層小別墅自建房設計圖,外觀設計時尚美觀
占地:125平方米
140平方米新農村四層房屋設計圖紙,農村自建推薦
占地:140平方米
帶車庫現代三層樓房設計圖,外觀效果圖時尚、美觀
占地:160平方米
260平方米歐式四層別墅設計圖20X18米,造價108萬
占地:260平方米
農村一層四間平房設計圖方案,含外觀圖片,預算10萬
占地:190平方米
115平方米新農村三層別墅設計圖,全套cad圖紙+效果圖
占地:115平方米
時尚的農村二層別墅圖紙設計,現代風格,簡約的外觀
占地:152平方米左右
150平方米的新農村自建三層小別墅設計施工圖紙及效果圖
占地:150平方米
兩層三間農村房屋設計圖,新農村住宅方案推薦
占地:155平方米
農村二層半雙拼別墅設計圖,客廳中空,帶大露臺
占地:270平方米
帶車庫農村二層樓房設計圖,外觀漂亮,精致
占地:154平方米
二層美式花園洋房設計圖,帶堂屋戶型,外觀簡直美爆了
占地:159.32平方米
簡單二層半現代復式別墅設計圖,簡約大氣帶開放車庫
占地:174平方米左右
11×10造價25萬帶神位平頂三層自建房設計圖
閱讀次數:29678次
2021年最流行的10套經典農村別墅,最愛那一套?
閱讀次數:25940次
進深8.5米,開間12米,帶堂屋的樓房設計圖怎么做?
閱讀次數:23817次
18萬搞定的農村二層別墅,詳細施工過程實拍!含別墅設計圖!
閱讀次數:17744次
5款帶落地窗的農村別墅,大氣的別墅就應該是這個樣子
閱讀次數:17217次
15套2017年最新潮二層農村別墅,這樣蓋既實用又上檔次!
閱讀次數:12834次
2021農村建的最多的2款二層小別墅戶型,爆款是有理由的
閱讀次數:11876次
農村自建房這樣預埋水電管,老師傅說規范又實用
閱讀次數:11471次
9X12米二層農村別墅,不超過規定面積還能有小院
閱讀次數:10618次
農村自建房打地基的費用是多少,需要注意哪些問題?
閱讀次數:10549次
