
|
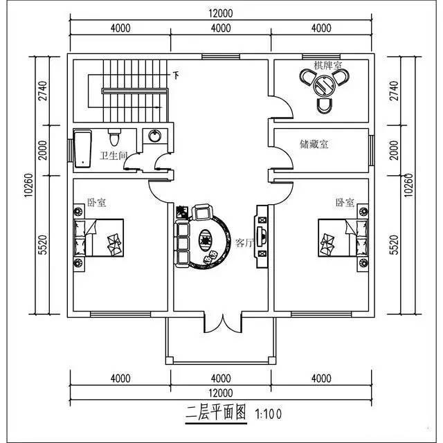
80后農村小伙去年在鄉下建了套兩層的小別墅,主體18萬,加簡單裝修一共花了25萬。
轉載請注明出自別墅設計網:http://m.bjcyqiyejia.com/ 千套別墅設計帶別墅圖片 |

鄉村兩層半150平帶閣樓別墅房屋設計圖,客廳大、臥室多
占地:150平方米
二層半房子設計圖及效果圖,客廳中空,南北通透
占地:160平方米
15x11米現代實用型新農村三層房屋設計圖
占地:142平方米
30萬左右的新農村自建三層別墅施工設計圖紙及效果圖
占地:148平方米
110平房子設計圖,經典的農村自建房屋設計圖
占地:110平方米
農村120平米兩層樓的房子設計圖,外觀新穎
占地:120平方米
帶車庫三間復式三層樓房設計圖,外觀精致、大方
占地:150平方米
簡單大氣二層兄弟雙拼樓房設計圖,外觀簡約
占地:268平方米
二層別墅設計圖紙及效果圖,占地200平米,外觀精致優雅,小有情
占地:200平方米
三層三間別墅設計圖方案,含外觀圖片,自建推薦
占地:120平方米
農村最好看18萬左右兩層小樓圖,外觀、造型簡潔大方
占地:120平方米
最漂亮的農村二層小樓圖,平屋頂的設計對于農村來說尤為便利
占地:170平方米
農村一層半房屋設計圖,帶外觀效果圖,外觀時尚
占地:155平方米
簡歐式三層半(4層)農村自建房別墅設計圖效果圖,帶車庫戶型
占地:127平方米
帶地下室獨棟三層高端別墅房圖紙設計圖,復式客廳旋轉樓梯
占地:146.145平方米
農村蓋房設計大全一層房子的設計圖紙,色調清新靚麗
占地:220平方米
室內不設廚房現代農村三層住宅設計圖,外觀時尚,個性化的生活
占地:153平方米左右
農村四間兩層別墅房屋設計圖,含外觀圖片
占地:160平方米
帶地下室設計三層自建房別墅設計圖,復式挑空客廳
占地:192平方米
200多平方米新農村雙拼別墅設計圖紙,堂屋和樓梯共用
占地:207平方米左右
11×10造價25萬帶神位平頂三層自建房設計圖
閱讀次數:29678次
2021年最流行的10套經典農村別墅,最愛那一套?
閱讀次數:25940次
進深8.5米,開間12米,帶堂屋的樓房設計圖怎么做?
閱讀次數:23817次
18萬搞定的農村二層別墅,詳細施工過程實拍!含別墅設計圖!
閱讀次數:17744次
5款帶落地窗的農村別墅,大氣的別墅就應該是這個樣子
閱讀次數:17217次
15套2017年最新潮二層農村別墅,這樣蓋既實用又上檔次!
閱讀次數:12834次
2021農村建的最多的2款二層小別墅戶型,爆款是有理由的
閱讀次數:11876次
農村自建房這樣預埋水電管,老師傅說規范又實用
閱讀次數:11471次
9X12米二層農村別墅,不超過規定面積還能有小院
閱讀次數:10618次
農村自建房打地基的費用是多少,需要注意哪些問題?
閱讀次數:10549次
